Experience architecture in person
The layout of the Variant 35-174 is not just a plan on paper: you can also experience it in person. We opened our show home in Mülheim-Kärlich in northern Rhineland-Palatinate in the summer of 2016. Convince yourself here of this house’s high-quality construction and family-friendly architecture.
Incidentally, we also built a similar house with pitched roof at our factory site in Oberleichtersbach – in the middle of Germany.
Combine your visit with a fascinating factory tour and a tour of our large Sample Centre.
| Characteristics | |
|---|---|
| Roof form | Pitched roof |
| Roof inclination | 35 ° |
| Jamb wall | 120 cm |
| Living space | 159,40 m² |
| Base area | 183,20 m² |
| Number of floors | 1,5 |
Special features & extras
Experience this house in person:
Musterhausstraße 113
56218 Mülheim-Kärlich
Telephone 02630-2641
Possible extensions:
- Conservatory with patio
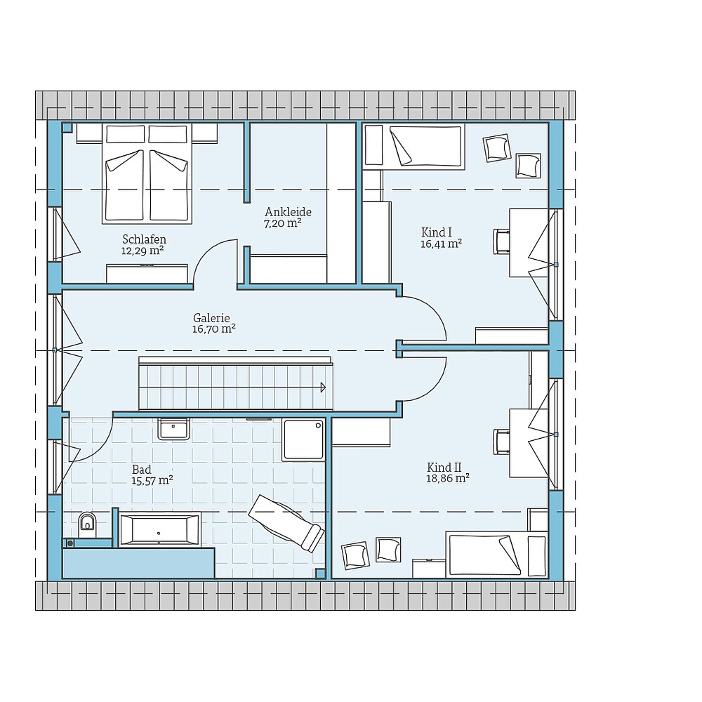
Floor plan
example
Get an impression of this house through the floor plans. We will show you our planning suggestions, which of course can be customised on request.
We have also prepared some interesting planning options for this house. Click through them and see for yourself which variants we have come up with.

What our clients say about our houses
references

Request without obligation & free of charge our prefabricated house catalog with detailed information about the company as well as all house designs or construction performance and equipment descriptions. In addition, you will find the prices for our campaign houses in our campaign brochure.
















![[Translate to Englisch:] [Translate to Englisch:]](/fileadmin/_processed_/f/0/csm_Familie_Frech_Haus_96ada4ce11.jpg)







