Make optimal use of valuable building land
Thanks to its compact external dimensions, the Variant 35-137 is ideal for smaller building plots. Thanks to a clever floor plan, the space feels considerably larger than it looks.
The functional division of the ground floor into an open living, dining and kitchen area, the spacious entrance area, a guest toilet and the practical utility room, is fully geared towards everyday life.
If the house is built with a basement, the utility room can be converted into a study or guest room.
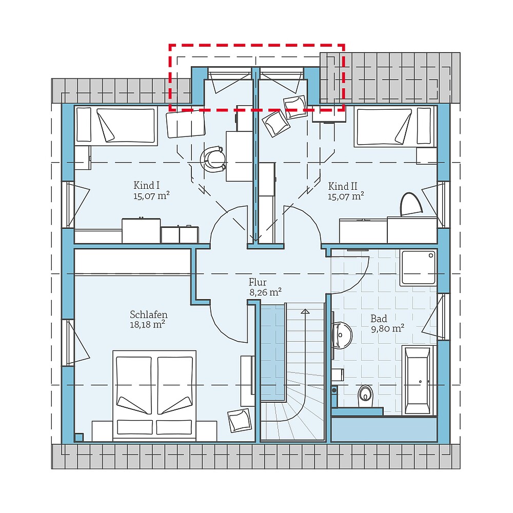
Due to the 120 cm-high jamb wall of this house from our Variant house series with pitched roof, the space in the loft can also be comfortably used. In addition to the two children’s rooms, there is also a master bedroom and bathroom here.
| Characteristics | |
|---|---|
| Roof form | Pitched roof |
| Roof inclination | 35 ° |
| Jamb wall | 120 cm |
| Living space | 120,57 m² |
| Base area | 136,54 m² |
| Number of floors | 1,5 |
Possible
extensions:
- Wall dormer with pitched roof or barrel roof
Floor plan
example
Get an impression of this house through the floor plans. We will show you our planning suggestions, which of course can be customised on request.
We have also prepared some interesting planning options for this house. Click through them and see for yourself which variants we have come up with.

What our clients say about our houses
references

Request without obligation & free of charge our prefabricated house catalog with detailed information about the company as well as all house designs or construction performance and equipment descriptions. In addition, you will find the prices for our campaign houses in our campaign brochure.






![[Translate to Englisch:] [Translate to Englisch:]](/fileadmin/_processed_/f/0/csm_Familie_Frech_Haus_96ada4ce11.jpg)







