The same room layout with less floor space
A Hanse Haus show home provides an excellent opportunity to convince yourself of a living concept in person. Where else does one have the opportunity to examine, touch and test all the details, room layouts and fixtures in advance?
As enthusiastic as you might be about one of our Hanse Haus show homes from the outset, one thing is of particular importance to us: we always fulfil your personal wishes for your home individually.
We also deal responsibly with budget specifications so that we can find the perfect solution for you and your loved ones. We also create layout options as variants of our show homes. These options are suitable for smaller construction budgets and yet promise maximum living comfort.
A good example of such options is the smaller version shown here of our show home Variant 35-161 in Mannheim.
Although the external dimensions have been scaled down, this only has limited influence on the sizes of the individual rooms. And while one or two square metres less of living space are hardly noticeable in everyday life, the redesigned house goes easy on the construction budget and adapts better to smaller plots.
Simply talk to your Hanse Haus consultant and let us show you the many possibilities in detail. Together, we’ll find the design that suits you perfectly.
| Characteristics | |
|---|---|
| Roof form | Pitched roof |
| Roof inclination | 35 ° |
| Jamb wall | 120 cm |
| Living space | 133,86 m² |
| Base area | 151,70 m² |
| Number of floors | 1,5 |
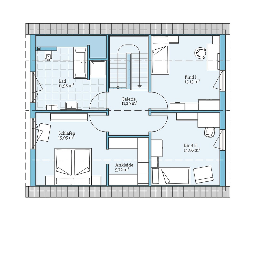
Floor plan
example
Get an impression of this house through the floor plans. We will show you our planning suggestions, which of course can be customised on request.
What our clients say about our houses
references

Request without obligation & free of charge our prefabricated house catalog with detailed information about the company as well as all house designs or construction performance and equipment descriptions. In addition, you will find the prices for our campaign houses in our campaign brochure.






![[Translate to Englisch:] [Translate to Englisch:]](/fileadmin/_processed_/f/0/csm_Familie_Frech_Haus_96ada4ce11.jpg)







