Easily customised living concepts
What do you do if you need some more space but don’t want to alter the entire floor plan right away?
With our Hanse Haus prefabricated houses, this is usually quite simple: with the many extension options, the floor plans can be easily enlarged and you can create additional space.
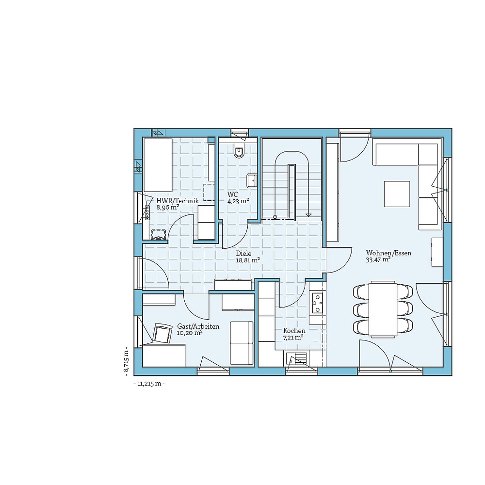
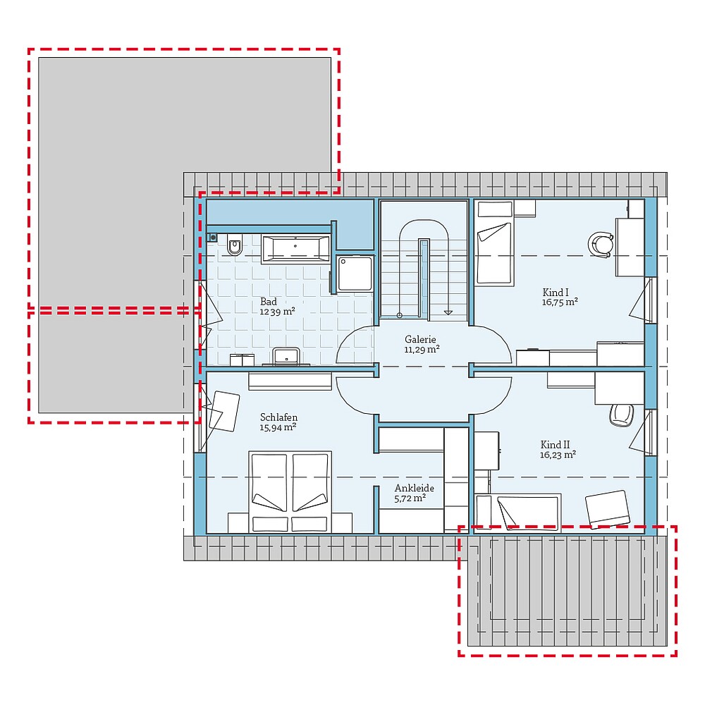
For example, the Variant 35-161 show home in Mannheim has been expanded to include a large bay window in the living area, which makes the open kitchen and dining area more spacious.
On the entrance side of the house is an extension that houses a studio/office area. If you do not require this extra space, you might consider swapping the studio for a comfortable garage with direct access to the utility room.
The possibilities are nearly infinite when it comes to house planning. At Hanse Haus, our mission is to find the perfect solution for you.
| Characteristics | |
|---|---|
| Roof form | Pitched roof |
| Roof inclination | 35 ° |
| Jamb wall | 120 cm |
| Living space | 142,78 m² |
| Base area | 161,25 m² |
| Number of floors | 1,5 |
Special features & extras
Experience this house in person:
Xaver-Fuhr-Straße 111/33
68163 Mannheim
Telephone 0621 31880940
Possible extensions:
- Conservatory
- Front door canopy
- Office extension
Floor plan
example
Get an impression of this house through the floor plans. We will show you our planning suggestions, which of course can be customised on request.
We have also prepared some interesting planning options for this house. Click through them and see for yourself which variants we have come up with.

What our clients say about our houses
references

Request without obligation & free of charge our prefabricated house catalog with detailed information about the company as well as all house designs or construction performance and equipment descriptions. In addition, you will find the prices for our campaign houses in our campaign brochure.











![[Translate to Englisch:] [Translate to Englisch:]](/fileadmin/_processed_/f/0/csm_Familie_Frech_Haus_96ada4ce11.jpg)







