Discover bungalow and angled bungalow floor plans
It's not always easy to find the perfect floor plan for yourself. That's why we have designed a variety of suggested layouts for you. But of course we plan your home according to your wishes and needs. The list of floor plans is sorted in ascending order of overall size.
Bungalow floor plans with 80 m² of floor space – planning option bay window & basement
Bungalow floor plans with 92 m² of floor space
To our Bungalow 92
Bungalow floor plans with 110 m² floor area – planning option extension with pent roof & basement
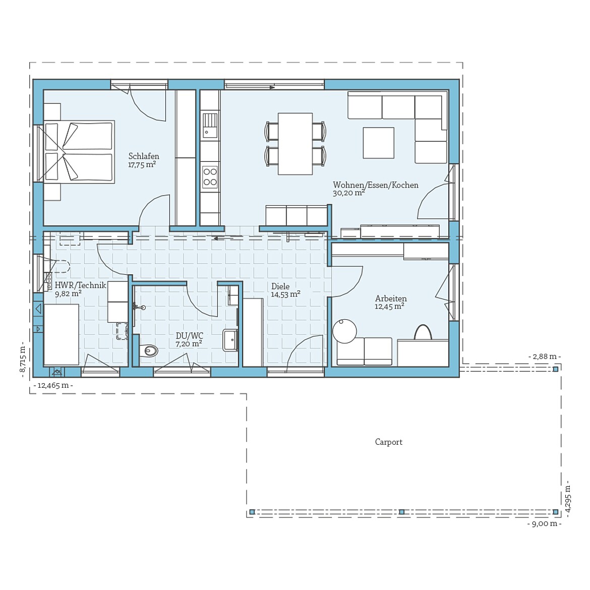
Angled bungalow floor plan with 114 m² of floor space – planning option basement & covered outdoor seating area
Bungalow floor plan with 116 m² of floor space – planning option: patio & front door canopy
Bungalow floor plan with 122 m² of floor space
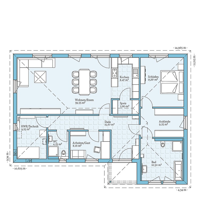
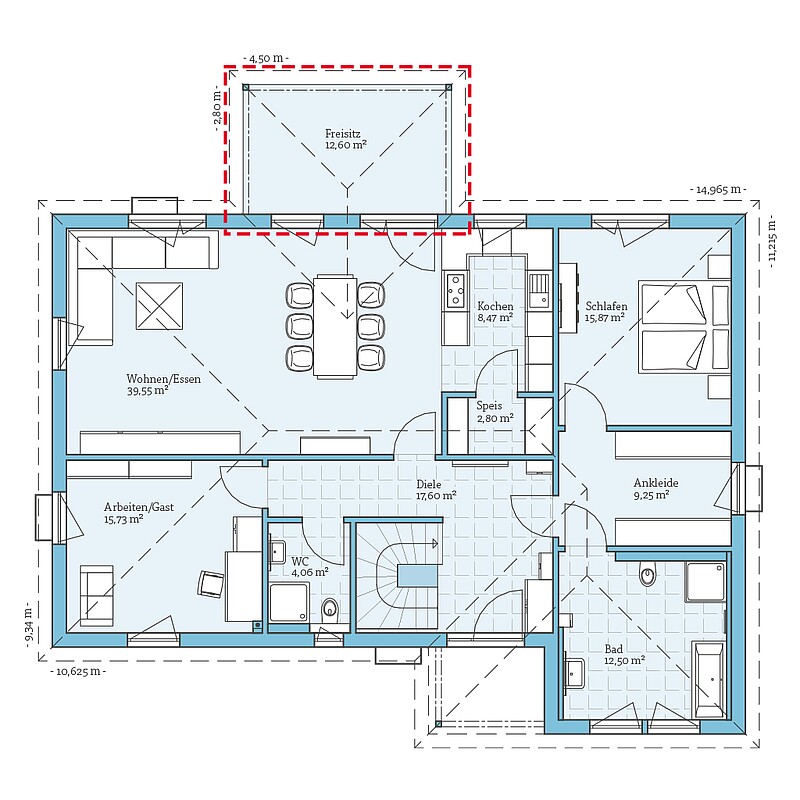
Bungalow floor plan with 124 m² of floor space
To our Bungalow 124
Bungalow layout with 126 m² of floor space – planning option with covered outdoor seating area
Bungalow floor plan with 135 m² of floor space
Bungalow floor plan with 132 m² of floor space
Bungalow floor plan with 140 m² of floor space
Bungalow floor plan with 147 m² of floor space
To our Bungalow 147
Bungalow layout with 182 m² of floor space – planning option with garage
Bungalow floor plan with 154 m² of floor space – planning options with garage
Bungalow layout with 156 m² floor area – planning options with garage
To our Bungalow 156
Bungalow floor plan with 157 m² of floor space – planning options with patio & carport
Bungalow floor plan with 160 m² of floor space
Bungalow floor plan with 170 m² of floor space


Floor plans for bungalows
In a bungalow, all rooms are located on one level, so this type of house differs from multi-storey houses in terms of the floor plan. Nevertheless, our eleven tips for the perfect floor plan also apply here.
From the optimal orientation of the bungalow to possible regulations from the development plan and planning with a basement - here you will find everything you need to know about your bungalow floor plan.
Important information about our bungalow house floor plans
- No load-bearing walls need to be taken into account, i.e. you are very flexible in terms of design and have the option of creating very open room concepts without having to take the statics of the floors above into consideration.
- Angles in the planning allow the house to be easily divided into different sections, e.g. living room and office or living area and sleeping area.
- If you are planning a bungalow with senior living in mind, remember that all rooms must be easily accessible with a wheelchair, the doors must be wide enough and patio doors must also be able to be opened without barriers.
- With the right planning, you can use the shape of the building to create a terrace that is protected from the neighbours' view and from the wind on three sides.
- Living on one level offers the unique opportunity to enjoy the proximity to nature from every room. Take advantage of this opportunity by installing floor-to-ceiling windows and creating access to the garden with patio doors.
- The costs for turnkey bungalows are generally difficult to give as a general figure as they depend on the type of fittings (which flooring, which walls, which doors, etc.).
- In our promotional brochure we have listed the price of a 126m² bungalow in the "almost finished" stage.
- In order to obtain the price for a turnkey bungalow, only the costs for floor coverings, interior doors and painting, filling and wallpapering work need to be added due to the high standard of the "Almost finished" stage.
What is the difference between a bungalow and an angled bungalow? While the floor plan of a bungalow is rectangular or square, the shape of an angled bungalow is more varied. Common house shapes for the angled bungalow include U, L, T or even a Z shape.
What are the advantages of an angled bungalow compared to a rectangular/square building?
- The angles in the house make the building appear less long or narrow and therefore often more aesthetic than a rectangular building.
- In addition, the layout of the rooms is more variable and the living areas can be better separated from each other.
- You can plan a terrace sheltered from the wind by the house.
What are the disadvantages of an angled bungalow compared to a rectangular/square building?
- The more angles are planned, the more difficult it is to find the right plot.
- There are additional costs due to larger roof areas.
You may find an alternative to our bungalow floor plans here:
Request without obligation & free of charge our prefabricated house catalog with detailed information about the company as well as all house designs or construction performance and equipment descriptions.


























