Our spacious classic with 126 m²
The angled hipped roof bungalow is the classic among the bungalows. Its 126 m² of living space on one level can be expanded on request with a covered patio – a great place for balmy summer evenings.
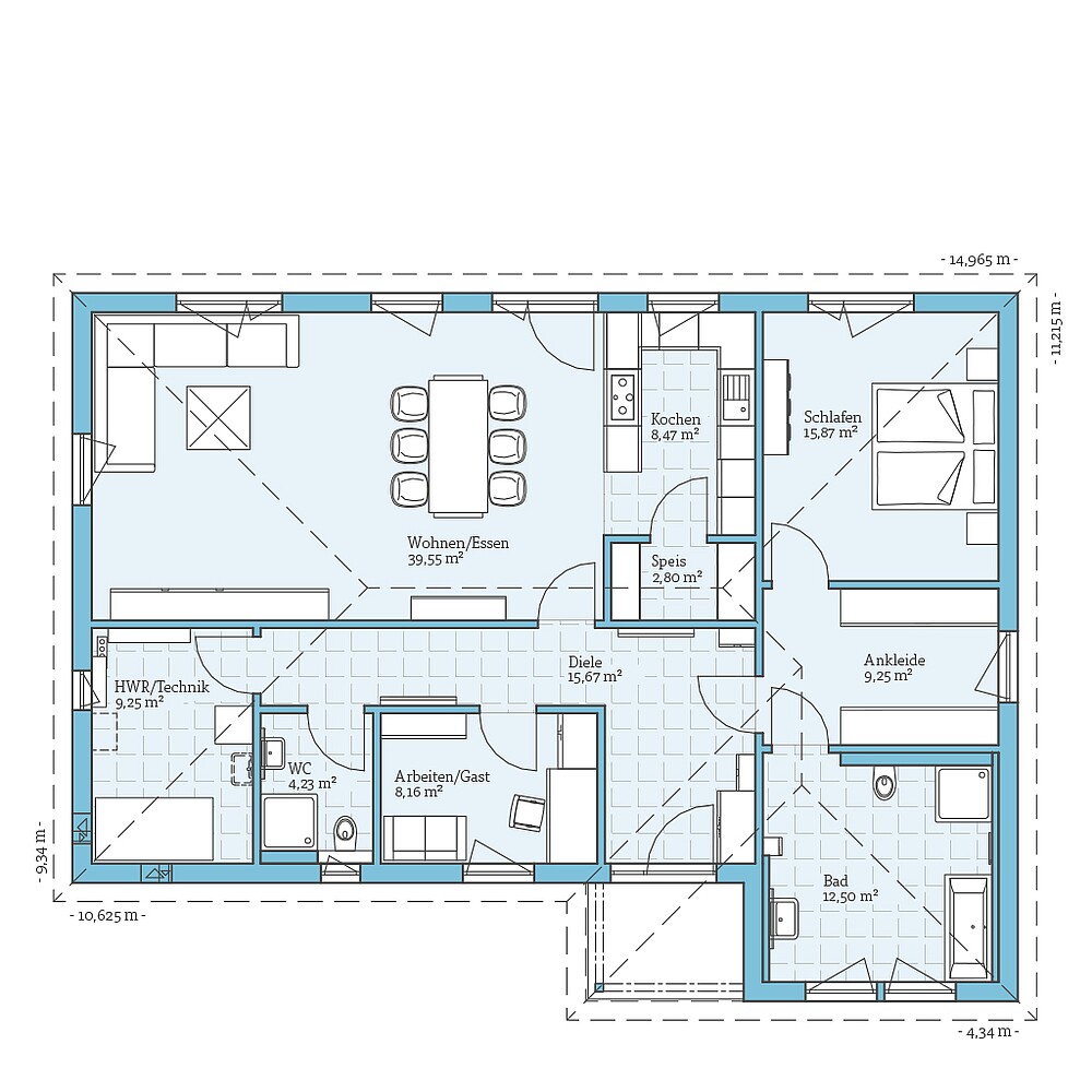
The house also has an extra study/guest room, a dressing room, a pantry and a second bathroom with a shower and toilet.
| Characteristics | |
|---|---|
| Roof form | Hipped roof |
| Roof inclination | 25 ° |
| Living space | 125,75 m² |
| Base area | 125,75 m² |
| Number of floors | 1 |
Possible
extensions:
- Covered patio
Floor plan
example
Get an impression of this house through the floor plans. We will show you our planning suggestions, which of course can be customised on request.
We have also prepared some interesting planning options for this house. Click through them and see for yourself which variants we have come up with.

What our clients say about our houses
references

Request without obligation & free of charge our prefabricated house catalog with detailed information about the company as well as all house designs or construction performance and equipment descriptions. In addition, you will find the prices for our campaign houses in our campaign brochure.













