Lots of living space even on small plots
In residential areas where land is expensive, the Villa 134 offers a cost-efficient solution for creating a family-friendly living space even on small plots.
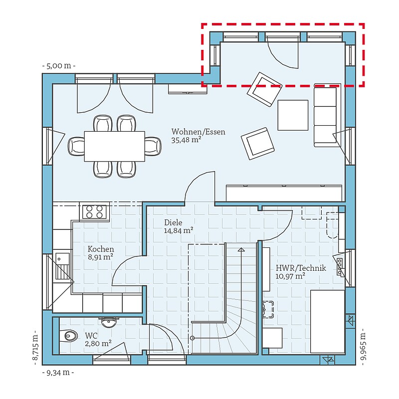
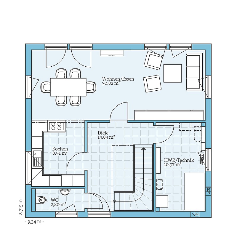
The ground floor is dominated by the open living, dining and cooking area, which creates a spacious ambience.
You can enlarge the living space with one of the extensions from the Villa series, such as the bay window with overlying loggia.
The children’s rooms and master bedroom are situated on the upper floor. The wellness bathroom ensures a fresh start to the day in the morning and restful relaxation in the evening.
| Characteristics | |
|---|---|
| Roof form | Pavilion roof |
| Roof inclination | 23.5 °/25 ° |
| Living space | 126,97 m² |
| Base area | 133,31 m² |
| Number of floors | 2 |
Possible
extensions:
- Bay window with loggia
Floor plan
example
Get an impression of this house through the floor plans. We will show you our planning suggestions, which of course can be customised on request.
We have also prepared some interesting planning options for this house. Click through them and see for yourself which variants we have come up with.

What our clients say about our houses
references

Request without obligation & free of charge our prefabricated house catalog with detailed information about the company as well as all house designs or construction performance and equipment descriptions. In addition, you will find the prices for our campaign houses in our campaign brochure.







![[Translate to Englisch:] [Translate to Englisch:]](/fileadmin/_processed_/f/0/csm_Familie_Frech_Haus_96ada4ce11.jpg)







