QNG⁺-Line: Viel Raum für Ideen
Ein komfortables Zuhause für eine vierköpfige Familie auf 109 m² Wohnfläche? Als kleinster Hausentwurf aus unserer QNG+-Line zeigt das Variant 28-123, wie das geht.
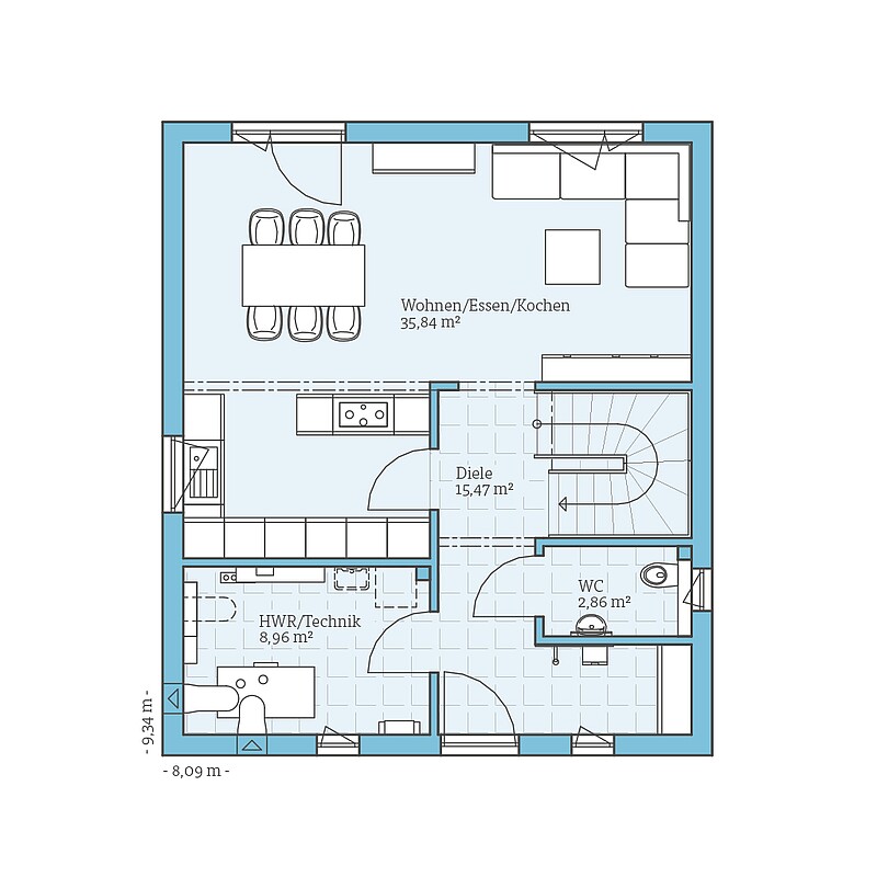
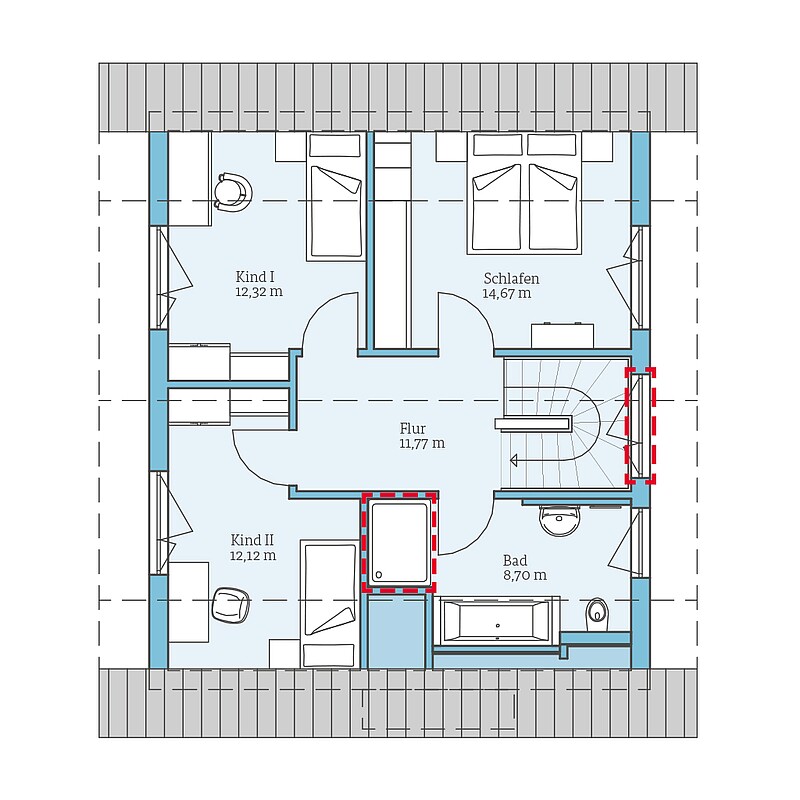
Im Erdgeschoss stehen 36 m² zum gemeinsamen Kochen, Essen und Entspannen zur Verfügung. Im Dachgeschoss sind alle Räume um einen sogenannten Verteilerflur herum angeordnet – eine besonders praktische und platzsparende Lösung mit möglichst wenig Verkehrsfläche.
Bis zu 10 % sparen dank serieller Fertigung
- Ausbauhaus: ab 239.295 €
- Technikfertig: ab 292.269 €
- Fast Fertig: ab 310.304 €
- Schlüsselfertig: ab 341.494 €
Ihr Vorteil
Wir können garantieren, dass Ihr Fertighaus aus der QNG+-Line unter Einhaltung bestimmter Vorgaben eine QNG-Zertifizierung erhält. So ist die höchste Förderstufe der KfW-Förderung Wohneigentum für Familien möglich und Sie profitieren von zinsgünstigen Krediten, die Ihnen die Finanzierung noch einmal zusätzlich erleichtern.
Info:
Abbildungen und Grundrisse enthalten Sonderausstattungen und Anbauten, die nicht im Grundpreis enthalten sind.
| Merkmale | |
|---|---|
| Dachform | Satteldach |
| Dachneigung | 42° |
| Kniestock | 120 |
| Wohnfläche | 109,00 m² |
| Grundfläche | 123,00 m² |
| Anzahl Geschosse | 1,5 |
Planungs-
möglichkeiten
Da die Häuser aus der QNG+-Line seriell gefertigt werden, ist keine individuelle Planung möglich. Trotzdem stehen Ihnen einige Planungsmöglichkeiten offen:
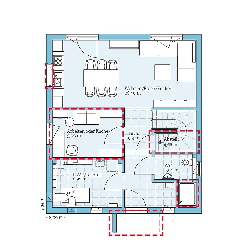
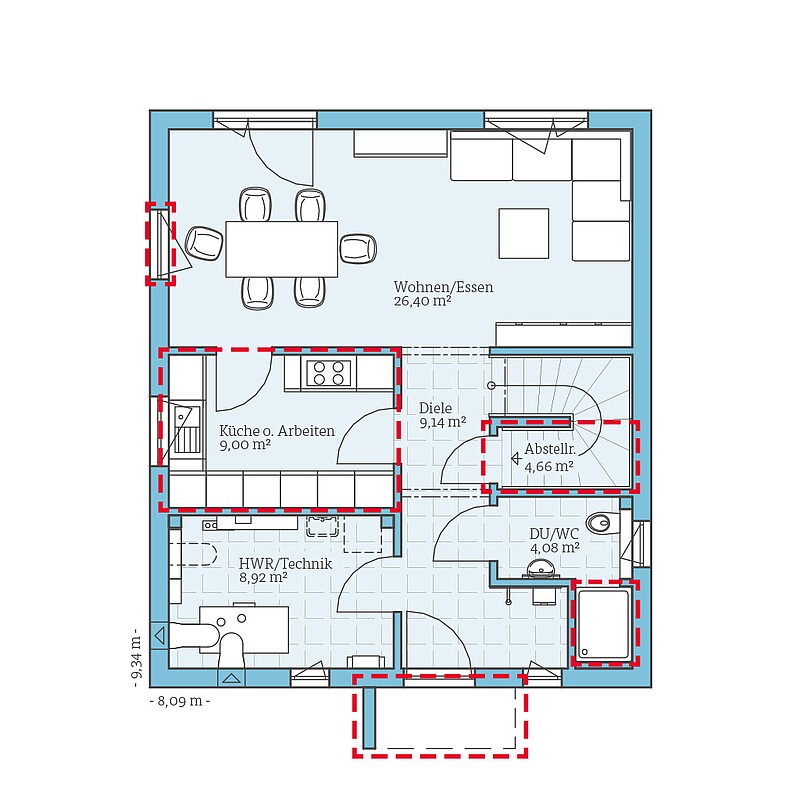
Ergeschoss
- Abstellraum unter der Treppe
- L-förmiges Haustürvordach
- Dusche im Gäste-WC
- Zusätzliches Fenster
- Geschlossene Küche oder Arbeitszimmer
Dachgeschoss
- Größerer Dachüberstand
- Größere Dusche im Badezimmer
- Zusätzliches Fenster
Grundrisse
Bekommen Sie durch die Grundrisse einen Eindruck von unserem Fertighaus aus der QNG⁺-Line.
Voraussetzung für die serielle, günstigere Fertigung ist, dass an den vordefinierten Grundrissen nur bestimmte Änderungen vorgenommen werden können. Entdecken Sie die unterschiedlichen Planungsoptionen für diesen Hausentwurf!

Fordern Sie ganz unverbindlich & kostenfrei unser Fertighaus-Katalog mit ausführlichen Hinweisen zum Unternehmen sowie alle Hausentwürfe oder Bauleistungs- und Ausstattungsbeschreibungen an. Darüber hinaus erhalten Sie in unserer Aktionsbroschüre die Preise für unsere Aktionshäuser.
















