QNG⁺-Line: Praktisch und platzsparend
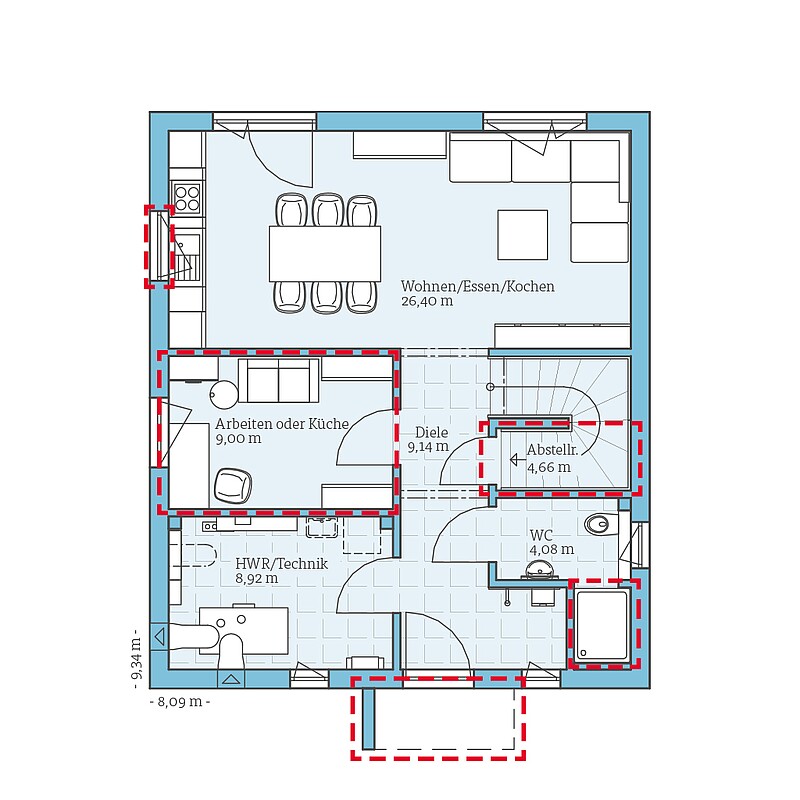
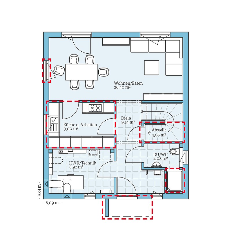
Auf den 114 m² Wohnfläche des Hausentwurfs Variant 28-123 kommt auch ausreichend Stauraum für die ganze Familie nicht zu kurz – mit einer geräumigen Garderobennische im Eingangsbereich, viel Schrankstellfläche in den Schlafräumen und einem zentral im Dachgeschoss platzierten Abstellraum, in dem zum Beispiel Handtücher oder Bettwäsche untergebracht werden können. Für noch mehr Platz lässt sich optional ein Abstellraum unter der Treppe einplanen.
Bis zu 10 % sparen dank serieller Fertigung
- Ausbauhaus: ab 241.116 €
- Technikfertig: ab 293.922 €
- Fast Fertig: ab 311.832 €
- Schlüsselfertig: ab 344.017 €
Ihr Vorteil
Wir können garantieren, dass Ihr Fertighaus aus der QNG+-Line unter Einhaltung bestimmter Vorgaben eine QNG-Zertifizierung erhält. So ist die höchste Förderstufe der KfW-Förderung Wohneigentum für Familien möglich und Sie profitieren von zinsgünstigen Krediten, die Ihnen die Finanzierung noch einmal zusätzlich erleichtern.
Info:
Abbildungen und Grundrisse enthalten Sonderausstattungen und Anbauten, die nicht im Grundpreis enthalten sind.
| Merkmale | |
|---|---|
| Dachform | Satteldach |
| Dachneigung | 28° |
| Kniestock | 200 |
| Wohnfläche | 113,00 m² |
| Grundfläche | 123,00 m² |
| Anzahl Geschosse | 1,5 |
Planungs-
möglichkeiten
Da die Häuser aus der QNG+-Line seriell gefertigt werden, ist keine individuelle Planung möglich. Trotzdem stehen Ihnen einige Planungsmöglichkeiten offen:
Ergeschoss
- Abstellraum unter der Treppe
- L-förmiges Haustürvordach
- Dusche im Gäste-WC
- Zusätzliches Fenster
- Geschlossene Küche oder Arbeitszimmer
Dachgeschoss
- Größerer Dachüberstand
- Größere Dusche im Badezimmer
- Zusätzliches Fenster an der Treppe
- Größeres Fenster im Bad
Grundrisse
Bekommen Sie durch die Grundrisse einen Eindruck von unserem Fertighaus aus der QNG⁺-Line.
Voraussetzung für die serielle, günstigere Fertigung ist, dass an den vordefinierten Grundrissen nur bestimmte Änderungen vorgenommen werden können. Entdecken Sie die unterschiedlichen Planungsoptionen für diesen Hausentwurf!

Fordern Sie ganz unverbindlich & kostenfrei unser Fertighaus-Katalog mit ausführlichen Hinweisen zum Unternehmen sowie alle Hausentwürfe oder Bauleistungs- und Ausstattungsbeschreibungen an. Darüber hinaus erhalten Sie in unserer Aktionsbroschüre die Preise für unsere Aktionshäuser.
















