QNG⁺-Line: Mehr Komfort im Alltag
Auf 151 m² Wohnfläche bietet der Hausentwurf Variant 25-162 mit seinem flachem Satteldach und dem hohen Kniestock viel Raum zum Wohlfühlen. Auch einige Extras wie eine Garderobe in der Diele oder eine Schranknische im Flur finden Platz.
Ein weiteres Highlight: Große Fensterflächen lassen viel Tageslicht in den offenen Wohn-, Ess- und Kochbereich und schaffen eine Verbindung zum Garten. Ein zusätzliches Fenster im Kniestock sorgt auch im Bereich der Treppe für genug Helligkeit.
Bis zu 10 % sparen dank serieller Fertigung
- Ausbauhaus: ab 299.406 €
- Technikfertig: ab 357.267 €
- Fast Fertig: ab 377.793 €
- Schlüsselfertig: ab 419.518 €
Ihr Vorteil
Wir können garantieren, dass Ihr Fertighaus aus der QNG+-Line unter Einhaltung bestimmter Vorgaben eine QNG-Zertifizierung erhält. So ist die höchste Förderstufe der KfW-Förderung Wohneigentum für Familien möglich und Sie profitieren von zinsgünstigen Krediten, die Ihnen die Finanzierung noch einmal zusätzlich erleichtern.
Info:
Abbildungen und Grundrisse enthalten Sonderausstattungen und Anbauten, die nicht im Grundpreis enthalten sind.
| Merkmale | |
|---|---|
| Dachform | Satteldach |
| Dachneigung | 25° |
| Kniestock | 200 |
| Wohnfläche | 151,00 m² |
| Grundfläche | 162,00 m² |
| Anzahl Geschosse | 1,5 |
Planungs-
möglichkeiten
Da die Häuser aus der QNG+-Line seriell gefertigt werden, ist keine individuelle Planung möglich. Trotzdem stehen Ihnen einige Planungsmöglichkeiten offen:
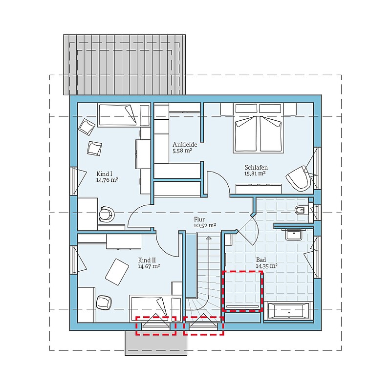
Ergeschoss
- Abstellraum unter der Treppe
- L-förmiges Haustürvordach
- Dusche im Gäste-WC
Dachgeschoss
- Größerer Dachüberstand
- Größere Dusche im Badezimmer
- Zusätzliches Fenster
Grundrisse
Bekommen Sie durch die Grundrisse einen Eindruck von unserem Fertighaus aus der QNG⁺-Line.
Voraussetzung für die serielle, günstigere Fertigung ist, dass an den vordefinierten Grundrissen nur bestimmte Änderungen vorgenommen werden können. Entdecken Sie die unterschiedlichen Planungsoptionen für diesen Hausentwurf!

Fordern Sie ganz unverbindlich & kostenfrei unser Fertighaus-Katalog mit ausführlichen Hinweisen zum Unternehmen sowie alle Hausentwürfe oder Bauleistungs- und Ausstattungsbeschreibungen an. Darüber hinaus erhalten Sie in unserer Aktionsbroschüre die Preise für unsere Aktionshäuser.















