Von der Giebelseite ins Haus
Bei diesem Hausentwurf befindet sich der Eingang giebelseitig. Das ist bei manchen Grundstücken eine praktikable Lösung, wenn zum Beispiel die Erschließung von Süden aus erfolgt.
Der Hausentwurf Variant 45-154 begeistert besonders durch die bodentiefen Fenster im Erdgeschoss: Die Verglasungen im Essbereich wirken wie ein Wintergarten und lassen einen tollen Blick in den Garten zu.
Die eingeplante Podesttreppe nimmt zwar etwas mehr Raum ein als eine halbgewendelte Treppe, hat dafür aber zwei gerade Treppenläufe. So kann man bequem die Treppe steigen und darunter steht ausreichend Platz für eine Abstellkammer zur Verfügung.
| Merkmale | |
|---|---|
| Dachform | Satteldach |
| Dachneigung | 45° |
| Kniestock | 50 cm |
| Wohnfläche | 138,49 m² |
| Grundfläche | 155,04 m² |
| Anzahl Geschosse | 1,5 |
Anbau
Möglichkeiten
- Erker
- Loggia
Beispiel
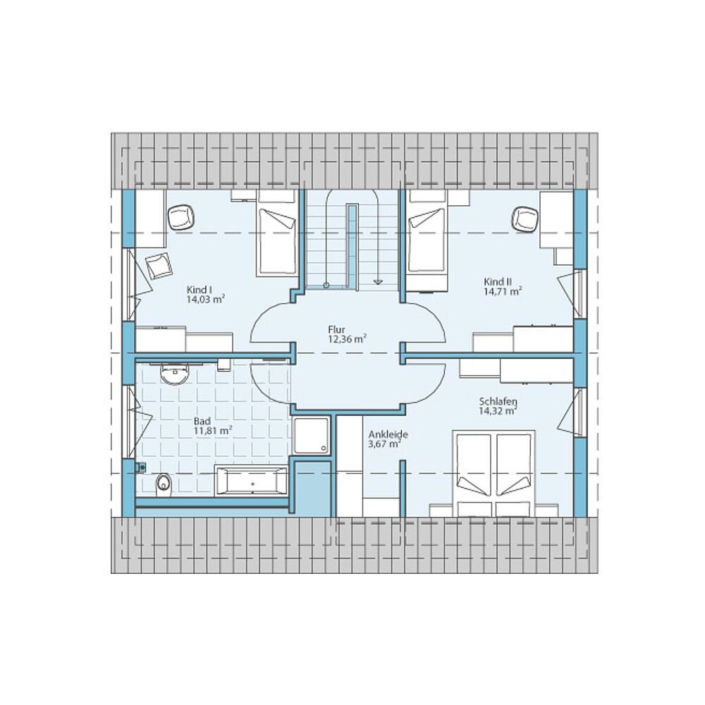
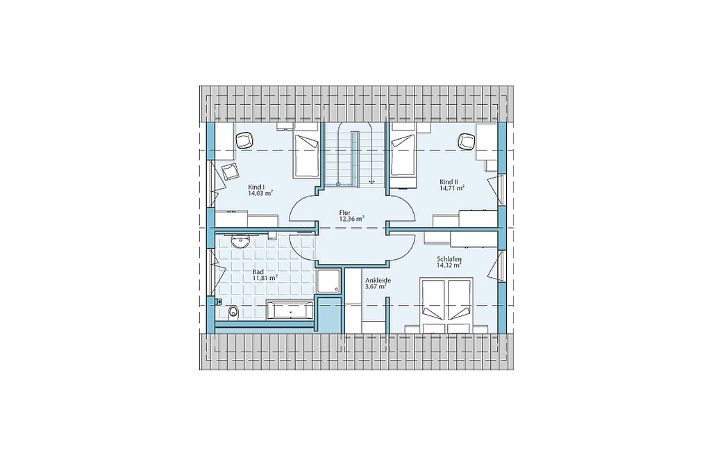
Grundrisse
Bekommen Sie durch die Grundrisse einen Eindruck von diesem Haus. Wir zeigen Ihnen unsere Planungsvorschläge, die natürlich auf Wunsch individuell umgeplant werden können.
Zusätzlich haben wir für dieses Haus interessante Planungsoptionen vorbereitet. Klicken Sie sich durch und sehen Sie selbst, welche Varianten wir uns überlegt haben.


Fordern Sie ganz unverbindlich & kostenfrei unser Fertighaus-Katalog mit ausführlichen Hinweisen zum Unternehmen sowie alle Hausentwürfe oder Bauleistungs- und Ausstattungsbeschreibungen an. Darüber hinaus erhalten Sie in unserer Aktionsbroschüre die Preise für unsere Aktionshäuser.















