Viele Anbaumöglichkeiten für Ihr Zuhause
Hier ist Ihr neuer Raum zum Leben und Rundum-Wohlfühlen.
Der Hausentwurf Variant 35-172 zeigt einmal mehr, wie sich die klassische Satteldacharchitektur modern und zeitgemäß gestalten lässt.
Reiner, weißer Putz strahlt in Kombination mit dunkel- und hellgrauen Farbflächen Stilsicherheit aus. Einen spannenden und dennoch ganz natürlichen Kontrast schafft die Sandsteinfassade am Zwerchgiebel. Große Glasflächen fangen das Tageslicht ein und lassen im Haus eine angenehme Wohlfühl-Atmosphäre entstehen.
Besonders praktisch: Dank des mit Glas überdachten Freisitzes ist die Terrasse vor Regen geschützt und auch an schlechteren Tagen nutzbar.
| Merkmale | |
|---|---|
| Dachform | Satteldach |
| Dachneigung | 35° |
| Kniestock | 120 cm |
| Wohnfläche | 154,72 m² |
| Grundfläche | 172,09 m² |
| Anzahl Geschosse | 1,5 |
Besonderheiten
& Extras
Dieses Haus live erleben:
Kimmerle-Ring 2 (Zufahrt über Legoland-Allee)
89312 Günzburg
Telefon 08221 9306235
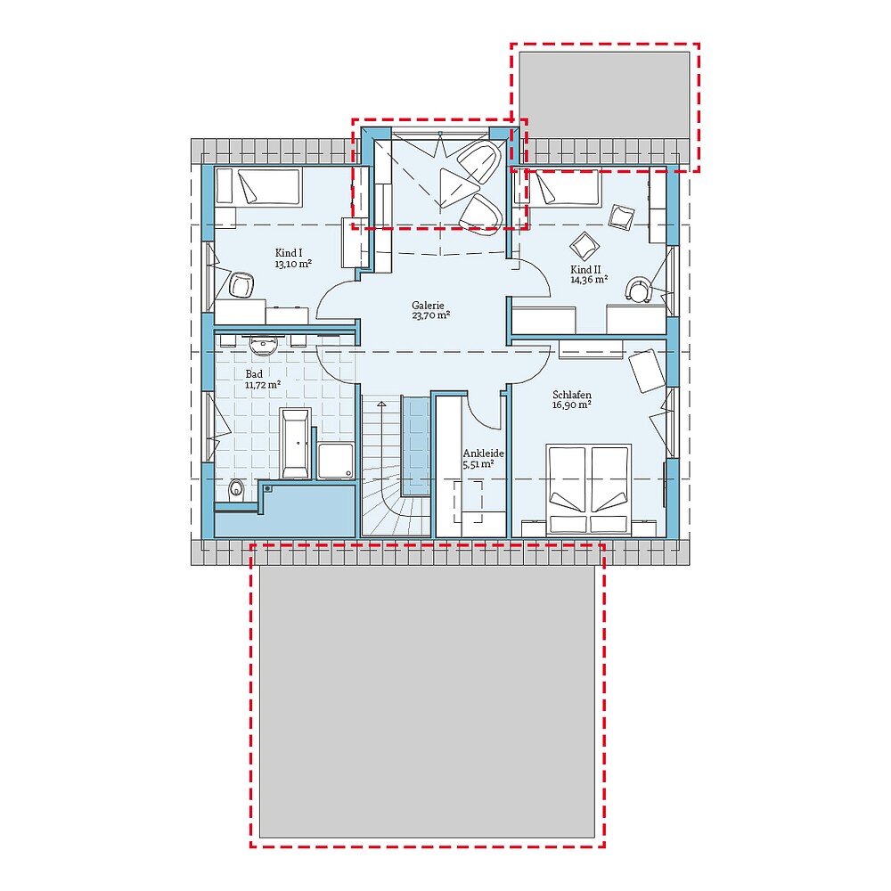
Anbaumöglichkeiten:
- Zwerchgiebel
- überdachter Freisitz
- Garage und Kellerersatzraum
Beispiel
Grundrisse
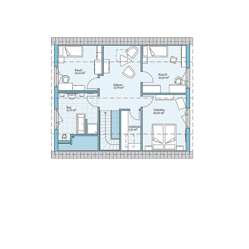
Bekommen Sie durch die Grundrisse einen Eindruck von diesem Haus. Wir zeigen Ihnen unsere Planungsvorschläge, die natürlich auf Wunsch individuell umgeplant werden können.
Zusätzlich haben wir für dieses Haus interessante Planungsoptionen vorbereitet. Klicken Sie sich durch und sehen Sie selbst, welche Varianten wir uns überlegt haben.


Fordern Sie ganz unverbindlich & kostenfrei unser Fertighaus-Katalog mit ausführlichen Hinweisen zum Unternehmen sowie alle Hausentwürfe oder Bauleistungs- und Ausstattungsbeschreibungen an. Darüber hinaus erhalten Sie in unserer Aktionsbroschüre die Preise für unsere Aktionshäuser.






















