Bauen in Hanglage: Zwei Wohnungen mit gemeinsamem Eingang
Bei einem Grundstück mit Hanglage bietet sich, um den teilweise frei liegenden Keller optimal zu nutzen, eine separate Einliegerwohnung an.
In diesem Planungsbeispiel des Variant 25-166 teilt sich die Wohneinheit im Untergeschoss den gemeinsamen Eingang mit der Hauptwohnung im Erd- und Dachgeschoss.
Durch die Hanglage kann die ca. 43 m² große Einliegerwohnung im Keller über große Fensterflächen gut belichtet werden und verfügt über einen eigenen Freibereich. Ideal geeignet zum Vermieten, für die erwachsenen Kinder oder die Großeltern.
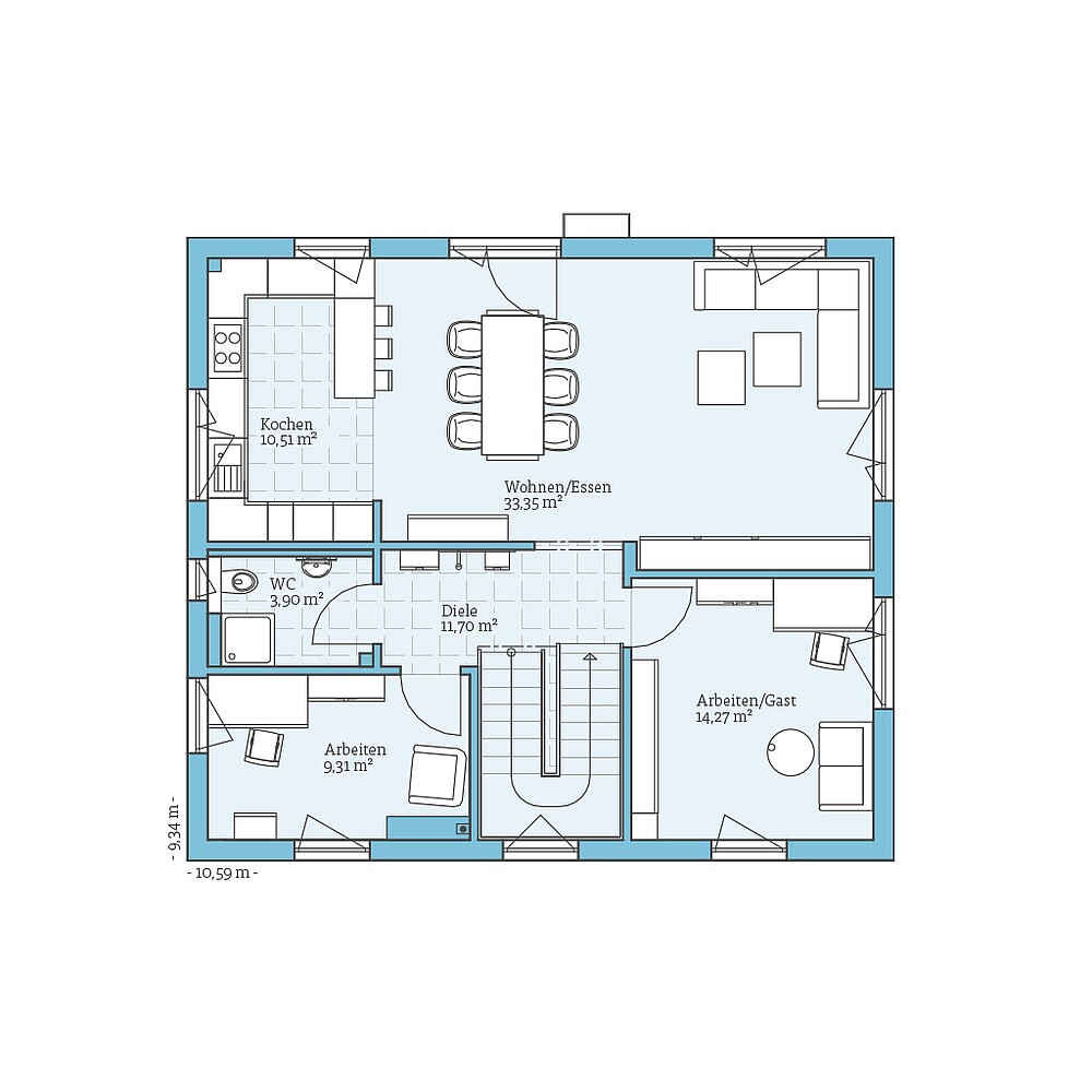
Weiterer Pluspunkt: Das Ober- und Dachgeschoss des Variant 25-166 verfügt durch die Anordnung des HWR- und Technikraumes im Keller über ein zusätzliches Arbeits- und Gästezimmer.
Für dieses Haus gibt es eine weitere Planungsvariante mit zwei getrennten Eingängen.
| Merkmale | |
|---|---|
| Dachform | Satteldach |
| Dachneigung | 25° |
| Kniestock | 200 cm |
| Wohnfläche | 215,78 m² |
| Wohnfläche Einliegerwohnung | 44,91 m² |
| Wohnfläche Hauptwohnung | 165,32 m² |
| Grundfläche | 243,47 m² |
| Anzahl Geschosse | 1,5 |
Beispiel
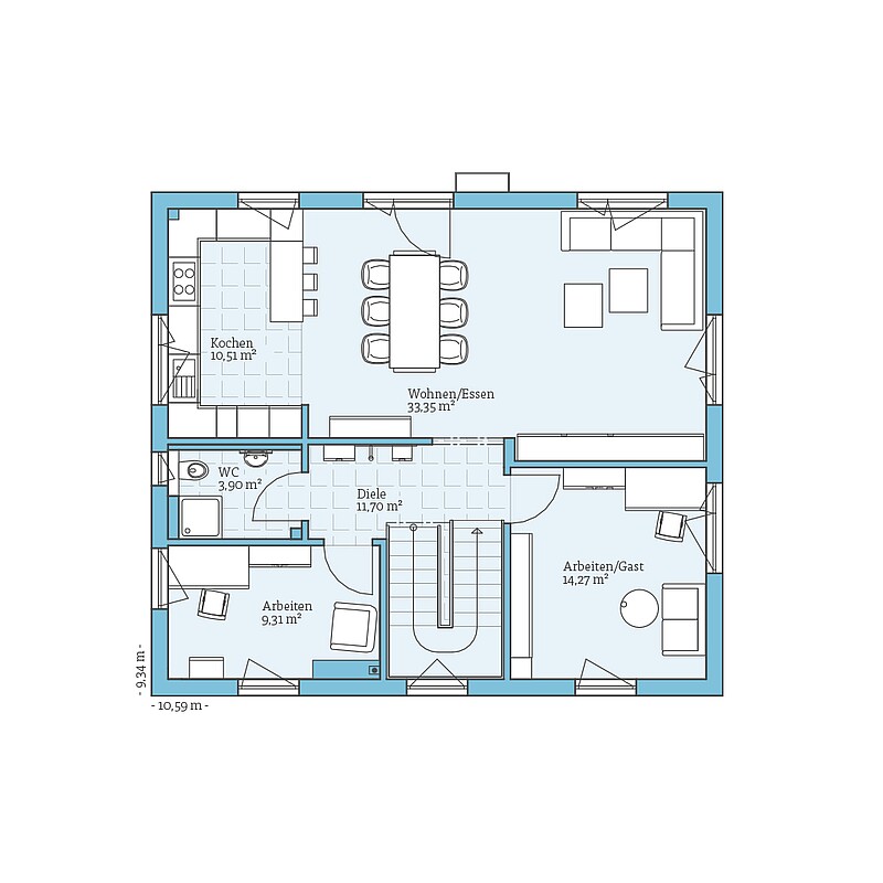
Grundrisse
Bekommen Sie durch die Grundrisse einen Eindruck von diesem Haus. Wir zeigen Ihnen unsere Planungsvorschläge, die natürlich auf Wunsch individuell umgeplant werden können.


Fordern Sie ganz unverbindlich & kostenfrei unser Fertighaus-Katalog mit ausführlichen Hinweisen zum Unternehmen sowie alle Hausentwürfe oder Bauleistungs- und Ausstattungsbeschreibungen an. Darüber hinaus erhalten Sie in unserer Aktionsbroschüre die Preise für unsere Aktionshäuser.













