Eins für zwei
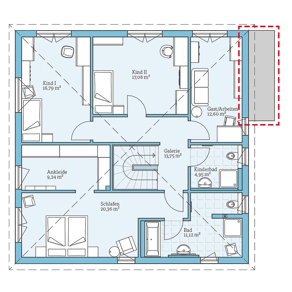
Auch dieser Hausentwurf ist eine zweigeschossige Villa mit Walmdach. Hier ist jedoch die Einliegerwohnung nicht in einem Anbau, sondern im Gesamtbaukörper untergebracht. Dies ist energetisch sinnvoll, weil dadurch Heizkosten gespart werden können. Die Hauseingänge befinden sich an zwei verschiedenen Seiten, was für mehr Privatsphäre sorgt. Im Obergeschoss ist mit drei möglichen Kinderzimmern, einem separaten Kinderbad und einem großzügigen Bereich für die Eltern viel Platz für eine größere Familie vorhanden.
| Merkmale | |
|---|---|
| Dachform | Zeltdach |
| Dachneigung | 25° |
| Wohnfläche Einliegerwohnung | 41,64 m² |
| Wohnfläche Hauptwohnung | 162,28 m² |
| Grundfläche Einliegerwohnung | 41,64 m² |
| Grundfläche Hauptwohnung | 168,82 m² |
| Anzahl Geschosse | 2 |
Anbau
Möglichkeiten
- Erker mit Flachdach
Beispiel
Grundrisse
Bekommen Sie durch die Grundrisse einen Eindruck von diesem Haus. Wir zeigen Ihnen unsere Planungsvorschläge, die natürlich auf Wunsch individuell umgeplant werden können.


Fordern Sie ganz unverbindlich & kostenfrei unser Fertighaus-Katalog mit ausführlichen Hinweisen zum Unternehmen sowie alle Hausentwürfe oder Bauleistungs- und Ausstattungsbeschreibungen an. Darüber hinaus erhalten Sie in unserer Aktionsbroschüre die Preise für unsere Aktionshäuser.















