Genügend Privatsphäre für alle
Bei diesem Hausentwurf ist die rund 44 m² große Einliegerwohnung in den Baukörper integriert. Dennoch ist aufgrund der separaten Hauseingänge für genügend Privatsphäre gesorgt: Der „Haupteingang“ befindet sich an der Traufseite, die Bewohner der Einliegerwohnung betreten das Haus an der Ortgang-Seite.
Das Erdgeschoss der Hauptwohnung überzeugt mit einem hellen Wohn-, Ess- und Kochbereich.
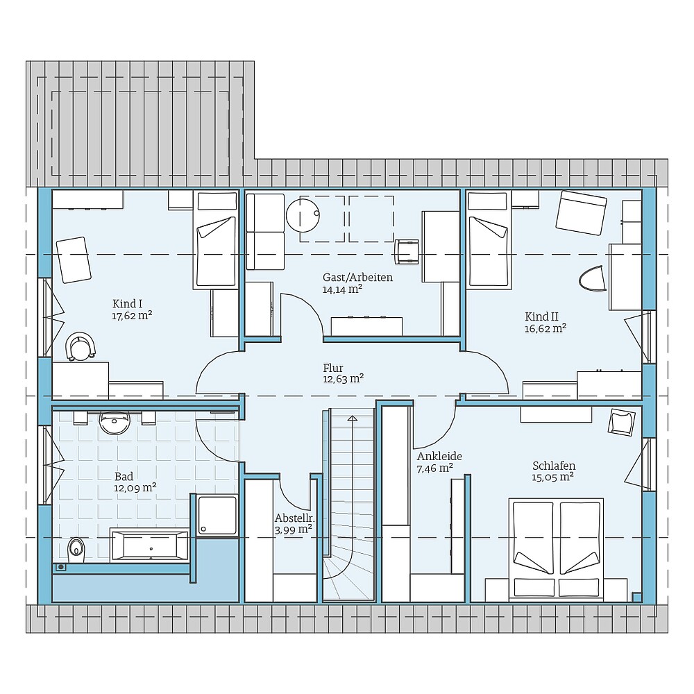
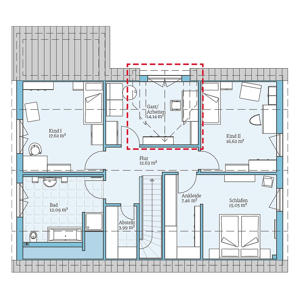
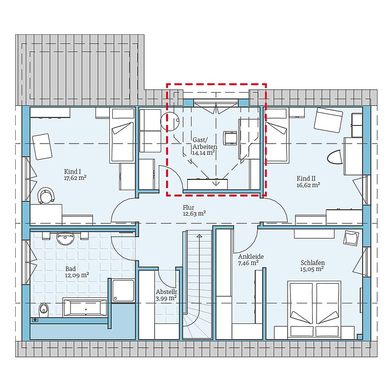
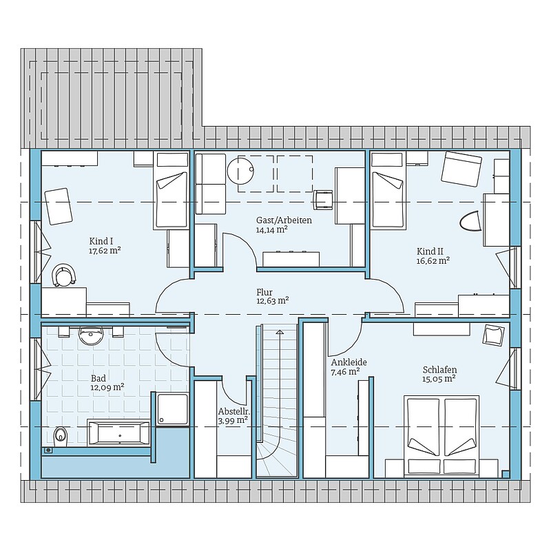
Im Dachgeschoss stehen neben dem Elternschlafzimmer mit separater Ankleide, zwei Kinderzimmern und dem Familienbad ein Gäste- und Arbeitszimmer sowie ein Abstellraum zur Verfügung.
| Merkmale | |
|---|---|
| Dachform | Satteldach |
| Dachneigung | 35° |
| Kniestock | 120 |
| Wohnfläche Einliegerwohnung | 44,39 m² |
| Wohnfläche Hauptwohnung | 144,78 m² |
| Grundfläche Einliegerwohnung | 44,39 m² |
| Grundfläche Hauptwohnung | 165,03 m² |
| Anzahl Geschosse | 1,5 |
Anbau
Möglichkeiten
- Erker mit Balkon
Beispiel
Grundrisse
Bekommen Sie durch die Grundrisse einen Eindruck von diesem Haus. Wir zeigen Ihnen unsere Planungsvorschläge, die natürlich auf Wunsch individuell umgeplant werden können.


Fordern Sie ganz unverbindlich & kostenfrei unser Fertighaus-Katalog mit ausführlichen Hinweisen zum Unternehmen sowie alle Hausentwürfe oder Bauleistungs- und Ausstattungsbeschreibungen an. Darüber hinaus erhalten Sie in unserer Aktionsbroschüre die Preise für unsere Aktionshäuser.














