Endlich die eigenen Wohnideen verwirklichen
Der größte Entwurf der Pultdachserie Vita bietet herrlich viel Raum für die Umsetzung von Wohnideen.
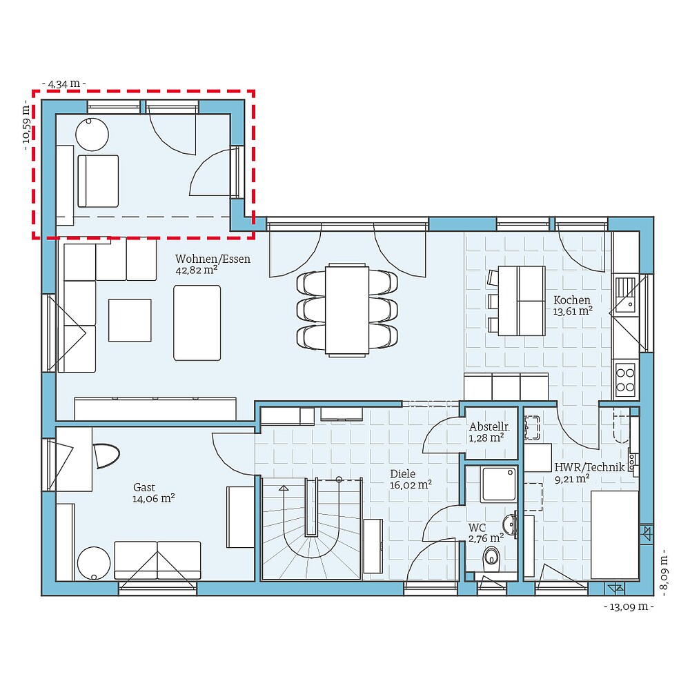
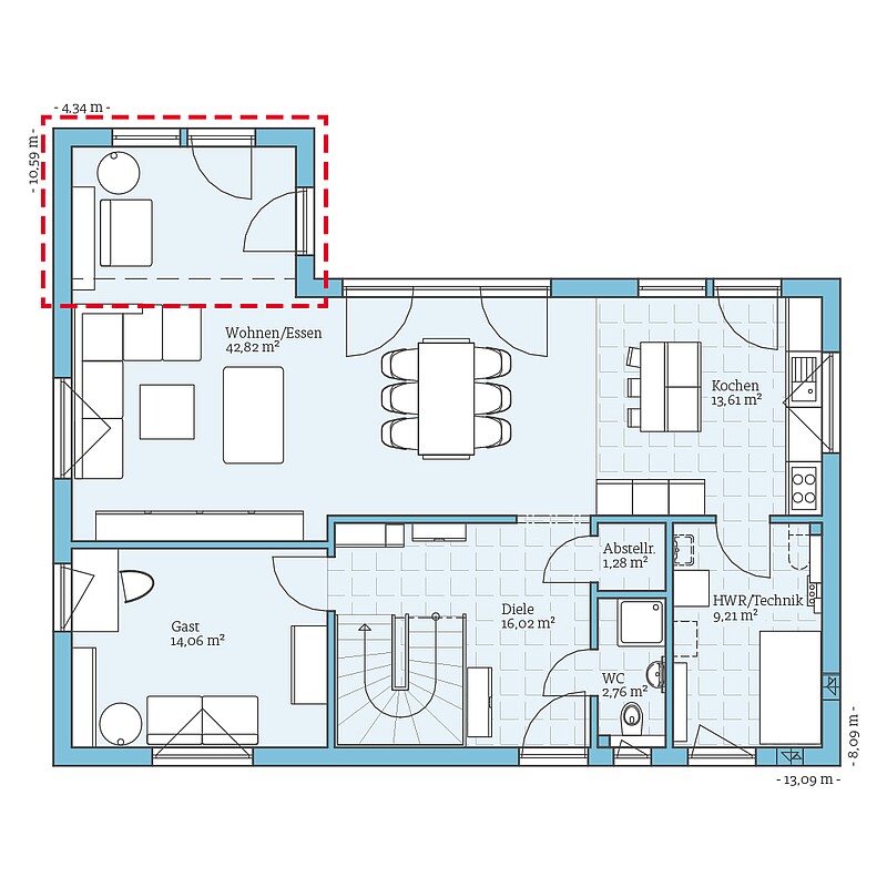
Neben dem lichtdurchfluteten Wohn-, Ess- und Kochbereich, einem Hauswirtschaftsraum und dem Gäste-WC ist im Erdgeschoss sogar noch ein als Gäste- oder Arbeitszimmer nutzbarer Raum vorhanden.
Auch im Obergeschoss ist Raum zum Arbeiten von zu Hause aus: Die große Galerie kann perfekt als heller Arbeitsplatz gestaltet werden.
| Merkmale | |
|---|---|
| Dachform | Pultdach |
| Dachneigung | 5° |
| Wohnfläche | 172,86 m² |
| Grundfläche | 179,39 m² |
| Anzahl Geschosse | 2 |
Anbau
Möglichkeiten
- Anbau mit Pultdach
Beispiel
Grundrisse
Bekommen Sie durch die Grundrisse einen Eindruck von diesem Haus. Wir zeigen Ihnen unsere Planungsvorschläge, die natürlich auf Wunsch individuell umgeplant werden können.
Zusätzlich haben wir für dieses Haus interessante Planungsoptionen vorbereitet. Klicken Sie sich durch und sehen Sie selbst, welche Varianten wir uns überlegt haben.


Fordern Sie ganz unverbindlich & kostenfrei unser Fertighaus-Katalog mit ausführlichen Hinweisen zum Unternehmen sowie alle Hausentwürfe oder Bauleistungs- und Ausstattungsbeschreibungen an. Darüber hinaus erhalten Sie in unserer Aktionsbroschüre die Preise für unsere Aktionshäuser.














