Energiesparend bauen und komfortabel wohnen im Vita 138 mit Pultdach
Energieeffizientes Bauen beginnt bereits mit der Gebäudeplanung.
Das Vita 138 mit Pultdach macht deutlich, worauf es bei der Planung ankommt: Der Grundbaukörper weist durch seine kubische Form ein sehr günstiges Verhältnis von Außenwandfläche zu Gebäudevolumen auf und die Gebäudenordseite enthält kaum Fenster, während sich die Südseite zur Sonne hin öffnet.
Die Wohnräume sind bei diesem Haus mit Pultdach nach Süden ausgerichtet, so dass das einfallende Sonnenlicht für eine angenehme Atmosphäre sorgt.
Auf Wunsch kann ein Windfang angebaut werden, der verhindert, dass kalte Außenluft beim Betreten des Hauses in die Wohnräume gelangt.
| Merkmale | |
|---|---|
| Dachform | Pultdach |
| Dachneigung | 5° |
| Wohnfläche | 132,69 m² |
| Grundfläche | 138,72 m² |
| Anzahl Geschosse | 2 |
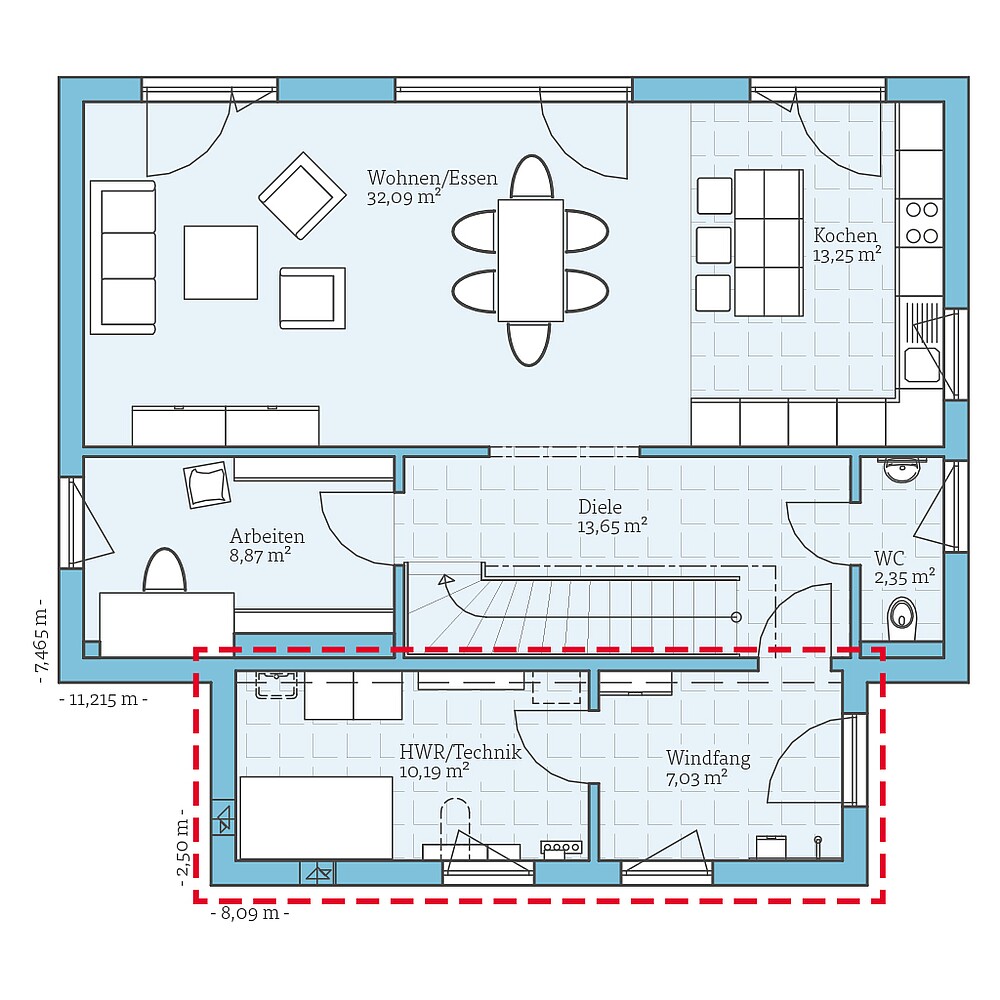
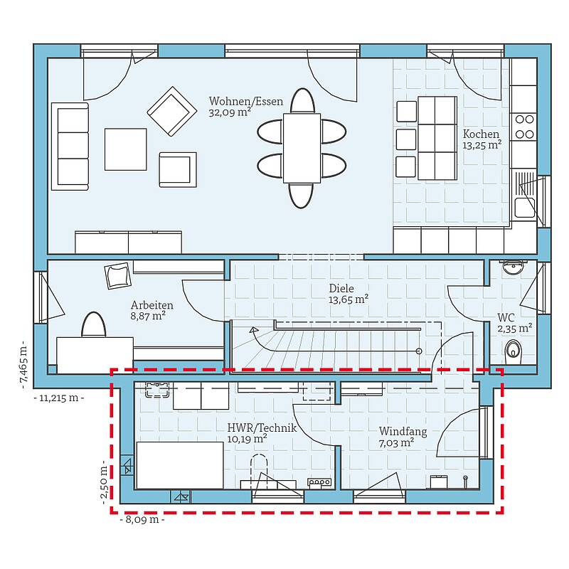
Anbau
Möglichkeiten
- Windfang
- Arbeitszimmer durch Auslagerung des Haustechnikraumes
Beispiel
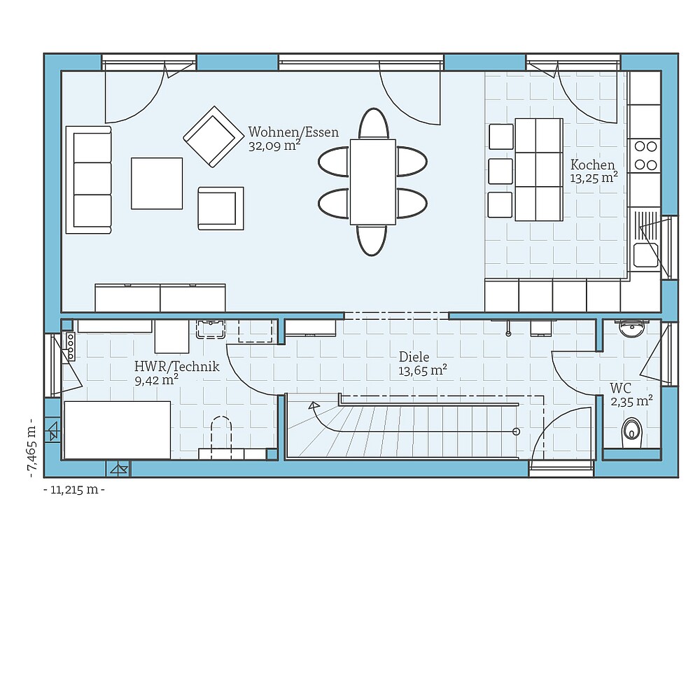
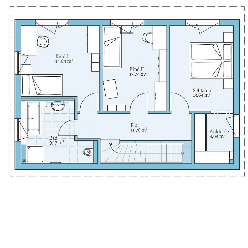
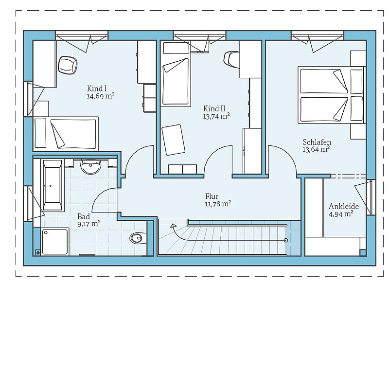
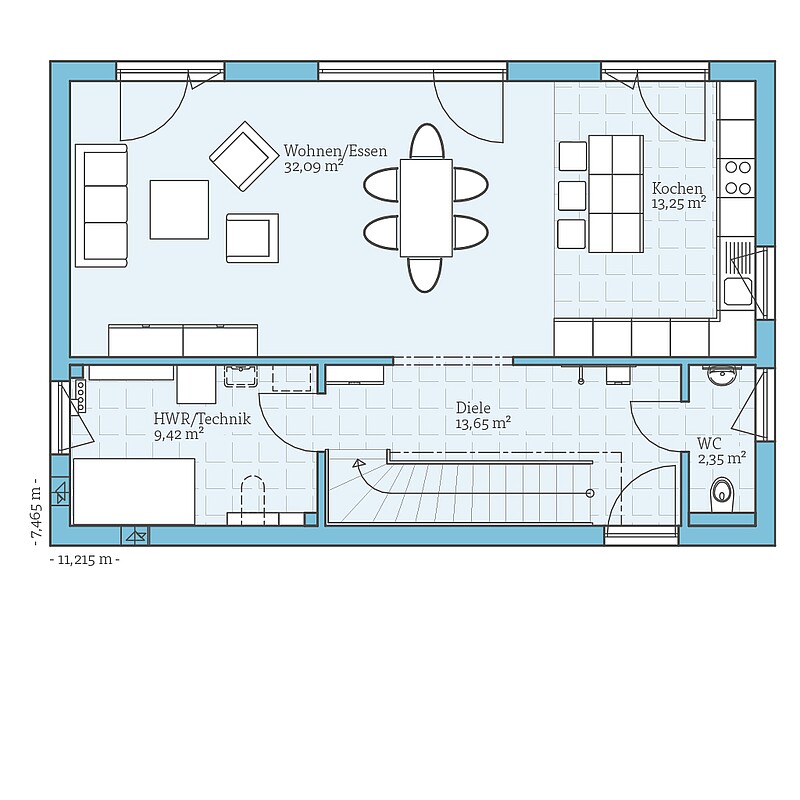
Grundrisse
Bekommen Sie durch die Grundrisse einen Eindruck von diesem Haus. Wir zeigen Ihnen unsere Planungsvorschläge, die natürlich auf Wunsch individuell umgeplant werden können.
Zusätzlich haben wir für dieses Haus interessante Planungsoptionen vorbereitet. Klicken Sie sich durch und sehen Sie selbst, welche Varianten wir uns überlegt haben.


Fordern Sie ganz unverbindlich & kostenfrei unser Fertighaus-Katalog mit ausführlichen Hinweisen zum Unternehmen sowie alle Hausentwürfe oder Bauleistungs- und Ausstattungsbeschreibungen an. Darüber hinaus erhalten Sie in unserer Aktionsbroschüre die Preise für unsere Aktionshäuser.














