Die Fertighaus Villa 178 am Buchrasen in Oberleichtersbach: unsere Hanse Haus Planungsvariante 2 für die Villa 177
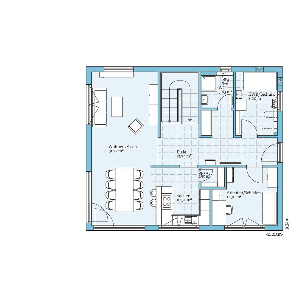
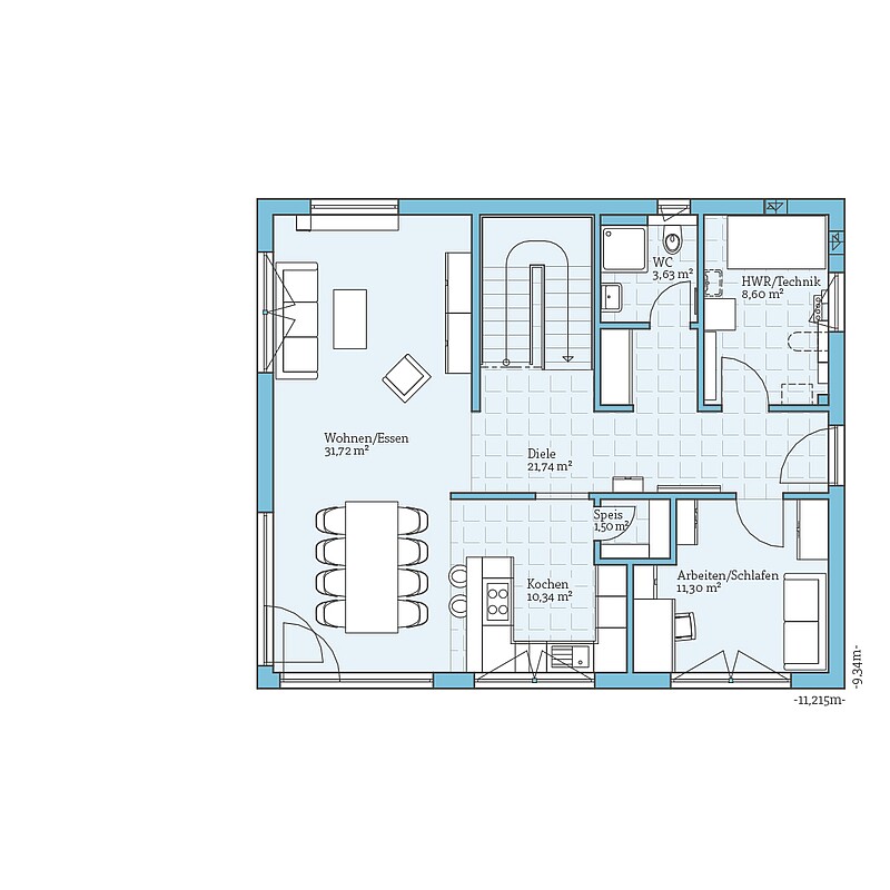
Im Vergleich zum Grundriss des Musterhauses in Villingen-Schwenningen (Villa 177) wurde bei diesem Entwurf anstelle der Küche nun der Wohnbereich im Erdgeschoss um einen Anbau erweitert. Erneut ergibt sich nicht nur mehr Wohnfläche, sondern zusätzlich ein überdachter Terrassenbereich – ideal für einen großen Essplatz im Freien.
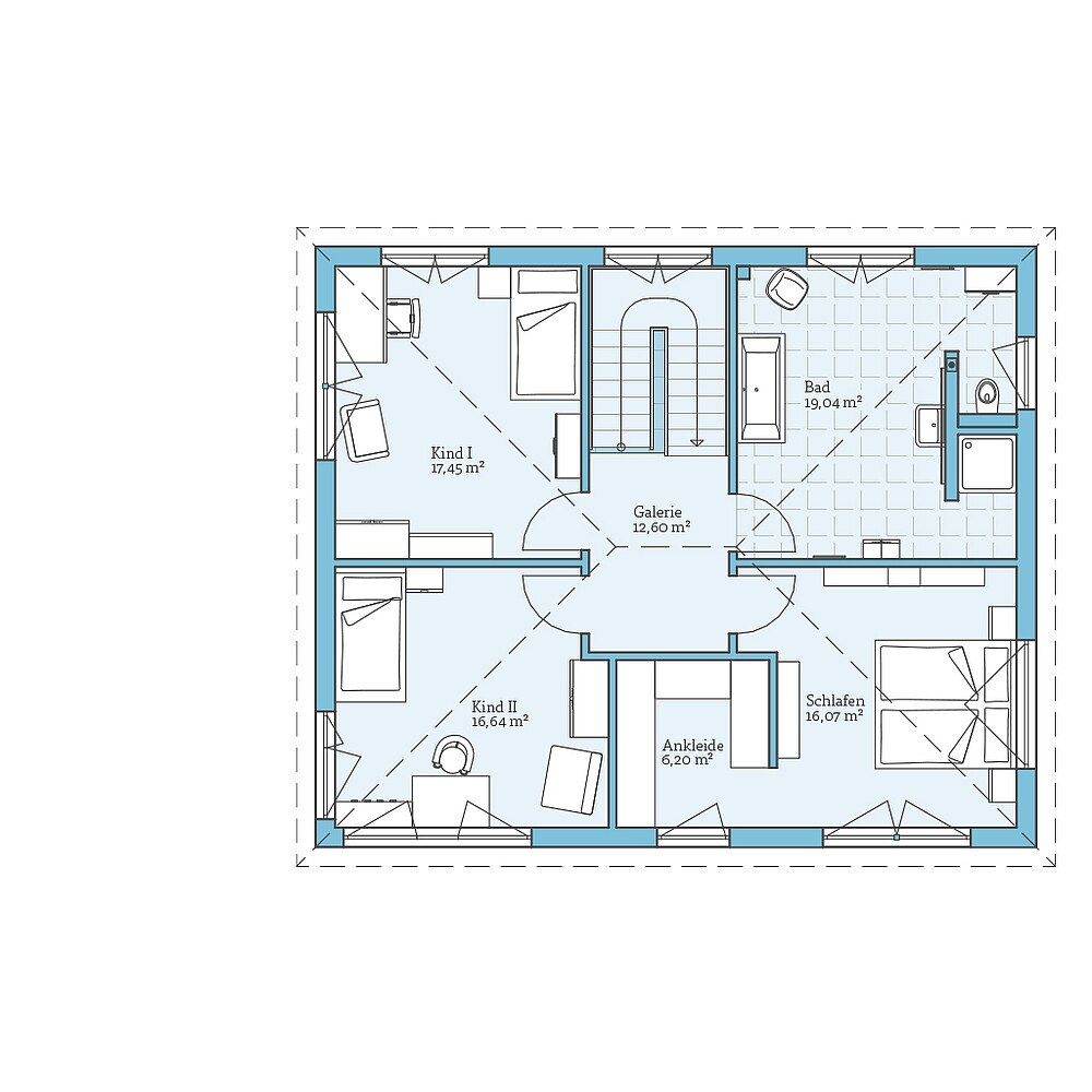
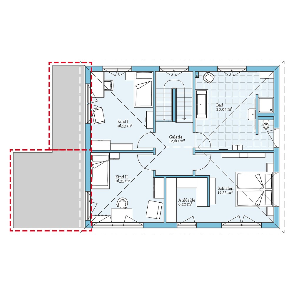
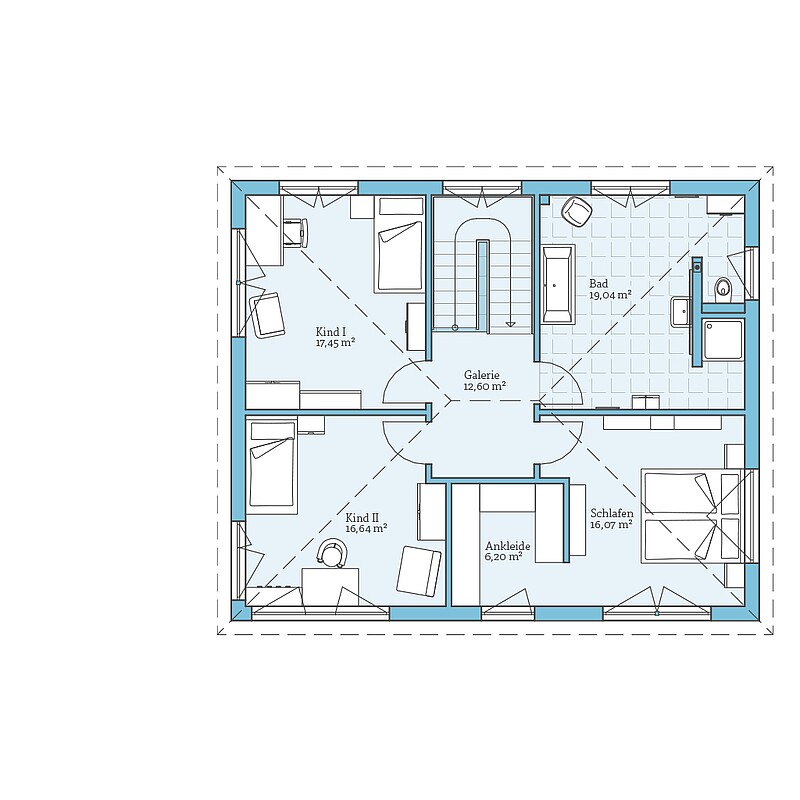
Auch im Obergeschoss sind die Änderungen zum Basisgrundriss nur geringfügig. Warum auch nicht, denn mit den beiden großen Kinderzimmern, dem Elternschlafzimmer mit Ankleide und dem äußerst geräumigen Badezimmer, das auf Wunsch sogar Platz für eine Sauna bietet, erfüllt es bereits die wichtigsten Wohnwünsche.
Mit dem Ausstellungshaus Villa 178 in Oberleichtersbach zeigen wir jetzt, welche Option es neben einer Vollunterkellerung oder einer Bodenplatte noch gibt. Wer nicht gleich das komplette Haus unterkellern möchte, aber dennoch die Haustechnik und Lagerfläche für Vorräte im Untergeschoss verstecken möchte, hat mit einem Teilkeller eine kosteneffiziente Alternative. Gerade bei Häusern mit viel Grundfläche wäre ein Vollkeller oft viel zu groß und würde Raum schaffen, der gar nicht benötigt wird.
| Merkmale | |
|---|---|
| Dachform | Walmdach |
| Dachneigung | 25° |
| Wohnfläche | 182,02 m² |
| Grundfläche | 228,46 m² |
| Anzahl Geschosse | 2 |
Besonderheiten
& Extras
Dieses Haus live erleben:
Buchstraße 3
97789 Oberleichtersbach
Telefon 09741-808-0
Anbaumöglichkeiten:
- vergrößerter Wohnbereich
- überdachte Terrasse
- Teilkeller
Beispiel
Grundrisse
Bekommen Sie durch die Grundrisse einen Eindruck von diesem Haus. Wir zeigen Ihnen unsere Planungsvorschläge, die natürlich auf Wunsch individuell umgeplant werden können.


Fordern Sie ganz unverbindlich & kostenfrei unser Fertighaus-Katalog mit ausführlichen Hinweisen zum Unternehmen sowie alle Hausentwürfe oder Bauleistungs- und Ausstattungsbeschreibungen an. Darüber hinaus erhalten Sie in unserer Aktionsbroschüre die Preise für unsere Aktionshäuser.























