QNG⁺-Line: Ein Zuhause zum Wohlfühlen
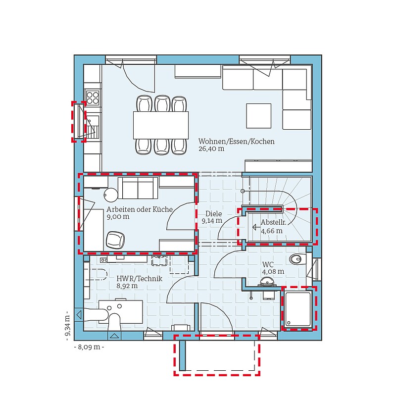
Offene oder geschlossene Küche? Bei unseren Häusern aus der QNG+-Line 124 kann der Kochbereich optional ganz einfach zu einem separaten Raum umgeplant werden. Der helle Wohn- und Essbereich ist so dimensioniert, dass sich auch dort eine Küchenzeile integrieren lässt. So wird ein Raum frei, der sich perfekt als Gäste- und Arbeitszimmer eignet.
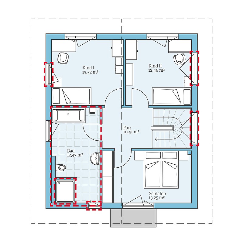
Genauso flexibel geht es im Obergeschoss weiter: Wer sich optional gegen die Ankleide entschiedet, hat Platz für ein größeres Badezimmer.
Bis zu 10 % sparen dank serieller Fertigung
- Ausbauhaus: ab 248.005 €
- Technikfertig: ab 302.942 €
- Fast Fertig: ab 316.773 €
- Schlüsselfertig: ab 348.786 €
Ihr Vorteil
Wir können garantieren, dass Ihr Fertighaus aus der QNG+-Line unter Einhaltung bestimmter Vorgaben eine QNG-Zertifizierung erhält. So ist die höchste Förderstufe der KfW-Förderung Wohneigentum für Familien möglich und Sie profitieren von zinsgünstigen Krediten, die Ihnen die Finanzierung noch einmal zusätzlich erleichtern.
Info:
Abbildungen und Grundrisse enthalten Sonderausstattungen und Anbauten, die nicht im Grundpreis enthalten sind.
| Merkmale | |
|---|---|
| Dachneigung | 25° |
| Wohnfläche | 118,00 m² |
| Grundfläche | 125,00 m² |
| Anzahl Geschosse | 2 |
Planungs-
möglichkeiten
Da die Häuser aus der QNG+-Line seriell gefertigt werden, ist keine individuelle Planung möglich. Trotzdem stehen Ihnen einige Planungsmöglichkeiten offen:
Ergeschoss
- Abstellraum unter der Treppe
- L-förmiges Haustürvordach
- Dusche im Gäste-WC
- Zusätzliches Fenster
- Arbeitszimmer oder geschlossene Küche
Obergeschoss
- Größere Dusche im Badezimmer
- Größerer Dachüberstand
- Walmdach statt Satteldach
Grundrisse
Bekommen Sie durch die Grundrisse einen Eindruck von unserem Fertighaus aus der QNG⁺-Line.
Voraussetzung für die serielle, günstigere Fertigung ist, dass an den vordefinierten Grundrissen nur bestimmte Änderungen vorgenommen werden können. Entdecken Sie die unterschiedlichen Planungsoptionen für diesen Hausentwurf!

Fordern Sie ganz unverbindlich & kostenfrei unser Fertighaus-Katalog mit ausführlichen Hinweisen zum Unternehmen sowie alle Hausentwürfe oder Bauleistungs- und Ausstattungsbeschreibungen an. Darüber hinaus erhalten Sie in unserer Aktionsbroschüre die Preise für unsere Aktionshäuser.

















