Klassische Villa, aber mit Satteldach
Bei dem Basis-Grundriss der Villa 174 handelt es sich um eine klassische Stadtvilla mit Walmdach. Für unser Musterhaus im Schwarzwald haben wir ein Satteldach gewählt und es mit teilweise begrünten Pultdachanbauten kombiniert. Eine Stadtvilla mit Satteldach hat den Vorteil, dass sie optimale Voraussetzungen für eine Photovoltaikanlage bietet.
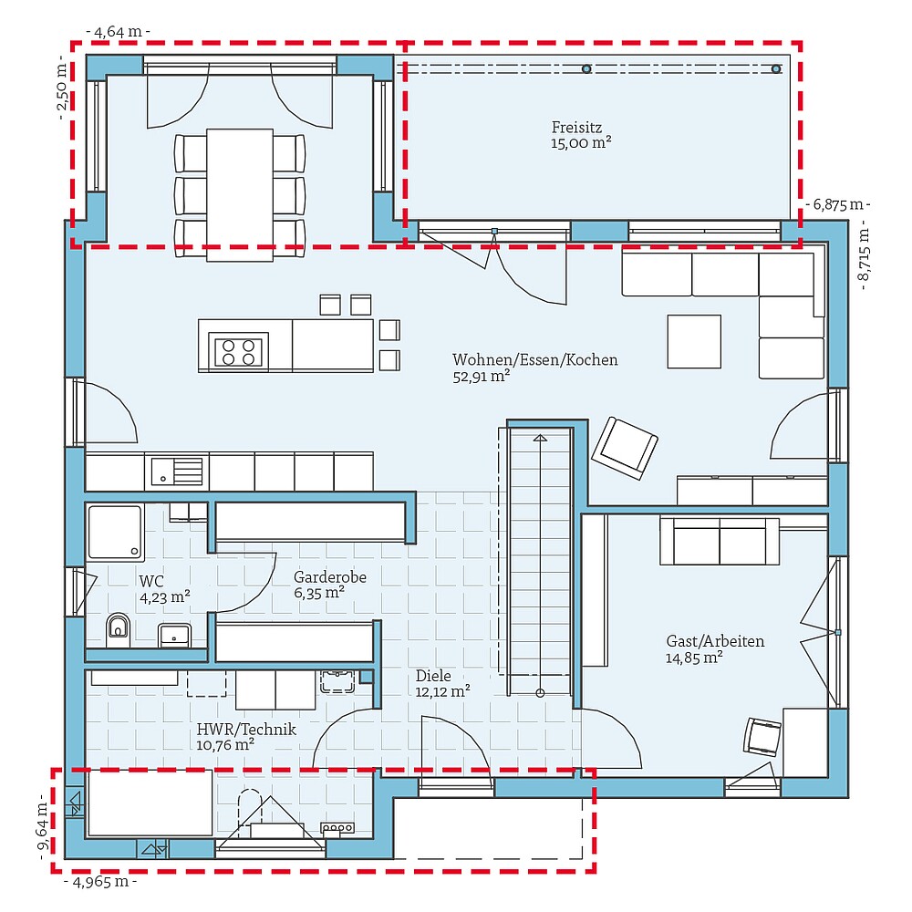
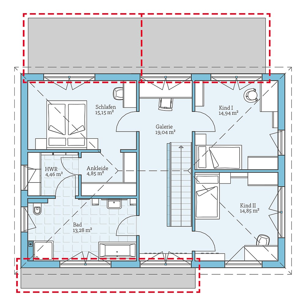
Betritt man die Villa, führt der Blick vorbei an der einläufigen, geraden Treppe bis hin zum Essbereich. In der Diele gegenüber des Gäste-WCs befindet sich eine funktionelle Garderobennische mit ausreichend Stauraum. Das Gästezimmer im Erdgeschoss kann auch als Schlafzimmer genutzt werden. Der Koch- und Essbereich ist sehr offen gestaltet, von der Küche aus gelangt man direkt in den Garten. Das Wohnzimmer ist durch die Treppe optisch etwas abgetrennt. Durch große Fenster an beiden Traufseiten fällt viel Licht in die Galerie im Obergeschoss, wo auch eine kleine Arbeitsnische Platz findet. Im Obergeschoss befinden sich zwei gleich große, lichtdurchflutete Kinderzimmer. Vom Elternschlafzimmer gelangt man durch die Ankleide in einen kleinen Hauswirtschaftsraum, von dort aus in das geräumige Badezimmer. Die Kinder können von der Diele aus das Familienbad betreten. Durch diese funktionelle Raumanordnung wird der Weg der Wäsche deutlich abgekürzt.
| Merkmale | |
|---|---|
| Dachform | Walmdach |
| Dachneigung | 25 |
| Wohnfläche | 168,17 m² |
| Grundfläche | 173,98 m² |
| Anzahl Geschosse | 2 |
Besonderheiten
& Extras
Dieses Haus live erleben:
FertighausWelt Schwarzwald
Parzelle 4
77966 Kappel-Grafenhausen
Beispiel
Grundrisse
Bekommen Sie durch die Grundrisse einen Eindruck von diesem Haus. Wir zeigen Ihnen unsere Planungs-Vorschläge, die natürlich auf Wunsch individuell umgeplant werden können.
Zusätzlich haben wir für dieses Haus interessante Planungsoptionen vorbereitet. Klicken Sie sich durch und sehen Sie selbst, welche Varianten wir uns überlegt haben.
- Durch einen Pultdachanbau im Eingangsbereich kann der Technikraum um 90° gedreht und zusätzlich ein Vordach geplant werden.
- Mit einem ca. 10 m² großen Anbau an der Küche kann der Esstisch in den Erker rücken: In der Küche ist nun Platz für eine freistehende Kochinsel.
- Verlängert man das Pultdach des Anbaus, entsteht ein ca. 15 m² großer Freisitz.


Fordern Sie ganz unverbindlich & kostenfrei unser Fertighaus-Katalog mit ausführlichen Hinweisen zum Unternehmen sowie alle Hausentwürfe oder Bauleistungs- und Ausstattungsbeschreibungen an. Darüber hinaus erhalten Sie in unserer Aktionsbroschüre die Preise für unsere Aktionshäuser.





















