Die etwas andere Stadtvilla 166
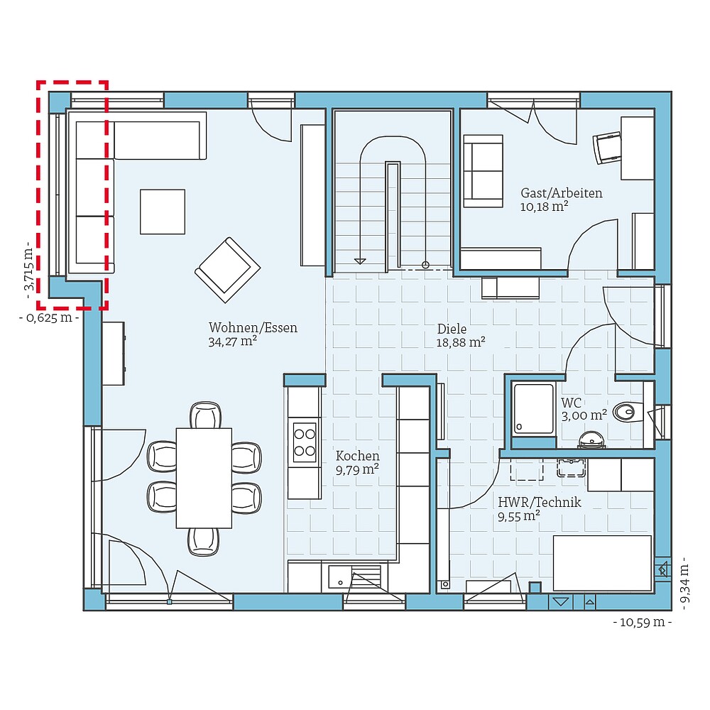
Großzügiges Wohnen auf zwei Vollgeschossen: Auch wenn der Grundriss unserer Villa 166 ca. 11 m² kleiner als der der Villa 177/178 ist, so ist hier dennoch ausreichend Platz für eine vierköpfige Familie. Der Wohn-, Ess- und Kochbereich ist genauso angeordnet wie der bei den beiden größeren Villen und ist dank der bodentiefen Fensterelemente sehr lichtdurchflutet.
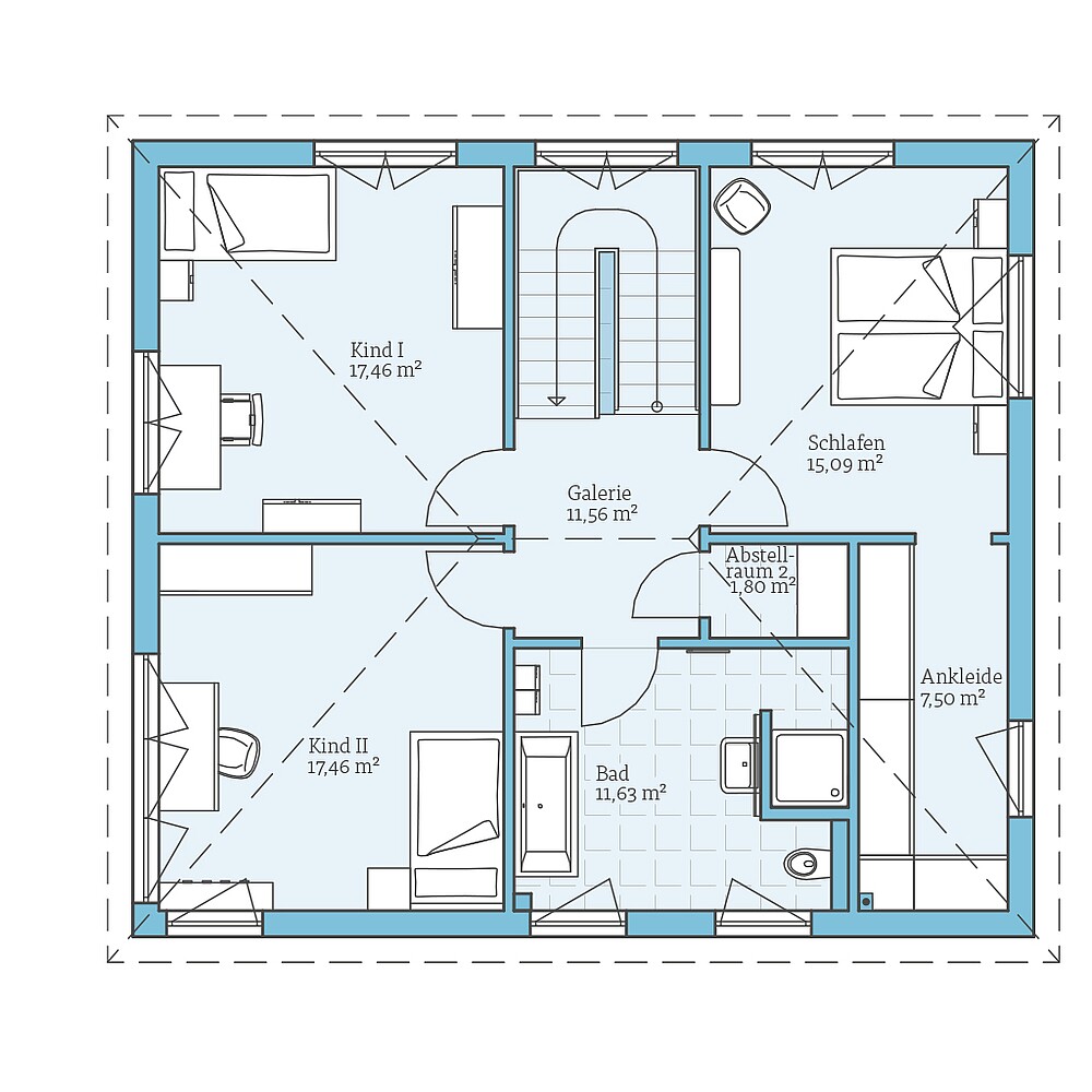
Die Podesttreppe führt ins Obergeschoss und ist perfekt geeignet, um darunter einen praktischen Abstellraum zu planen. Im Obergeschoss befinden sich zwei geräumige Kinderzimmer mit rund 17,5 m² und das Elternschlafzimmer mit einer lang gezogenen Ankleide. Im geräumigen Familienbad wurde die T-Lösung umgesetzt: So ist das WC versteckt und die Dusche kann dreiseitig gefliest werden. Im Obergeschoss ist zudem Platz für einen weiteren Abstellraum.
Die Visualisierung zeigt, wie individuell man ein Hanse-Haus gestalten kann. In der hier gezeigten Optik spiegeln sich zeitlose Modernität und stimmige Proportionen wider: Die grauen Fenster und der weiße Putz harmonieren mit dem durch die klassisch roten Klinker abgesetzten kleinen Anbau am Wohnbereich.
| Merkmale | |
|---|---|
| Dachform | Walmdach |
| Dachneigung | 25° / 28° |
| Wohnfläche | 158,53 m² |
| Grundfläche | 166,19 m² |
| Anzahl Geschosse | 2 |
Besonderheiten
& Extras
Dieses Haus live erleben:
Münchner Straße 25 S
30855 Langenhagen
Telefon 0511-7860631
Beispiel
Grundrisse
Bekommen Sie durch die Grundrisse einen Eindruck von diesem Haus. Wir zeigen Ihnen unsere Planungsvorschläge, die natürlich auf Wunsch individuell umgeplant werden können.


Fordern Sie ganz unverbindlich & kostenfrei unser Fertighaus-Katalog mit ausführlichen Hinweisen zum Unternehmen sowie alle Hausentwürfe oder Bauleistungs- und Ausstattungsbeschreibungen an. Darüber hinaus erhalten Sie in unserer Aktionsbroschüre die Preise für unsere Aktionshäuser.



















