Gerne zu Hause im Fertighaus-Klassiker mit Wohlfühlfaktor
Das Musterhaus Variant 25-192 in Poing bei München ist eine moderne Interpretation der klassischen (ober-)bayerischen Bauform. Aber nicht nur dort macht diese Architektur eine gute Figur: Mit seinem zwei Meter hohen Kniestock und dem flachen 25°-Satteldach ist der Entwurf ideal für Gegenden geeignet, in denen Baugrund teuer ist und dennoch, auch ohne Keller, viel Wohnfläche geschaffen werden soll.
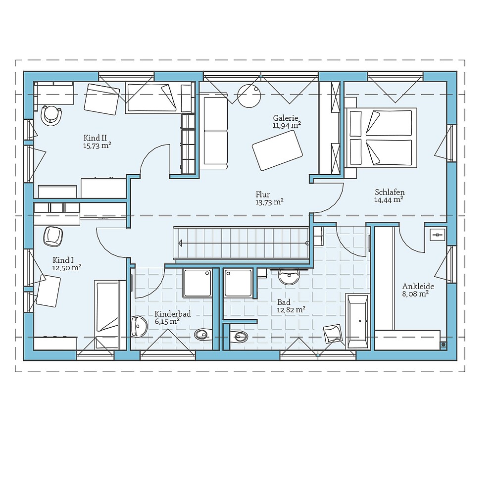
Auf mehr als 190 m² finden neben dem offenen Wohn-, Ess- und Kochbereich mit Speisekammer, einem Arbeits- oder Gästezimmer mit Duschbad auch zwei Kinderzimmer mit separatem Bad, ein Elternschlafzimmer mit eigener Ankleide und Wellnessbad ihren Platz. Und wird – jetzt oder auch erst später – ein Raum mehr benötigt, kann die Galerie im Obergeschoss zu einem weiteren Zimmer umfunktioniert werden.
| Merkmale | |
|---|---|
| Dachform | Satteldach |
| Dachneigung | 25° |
| Kniestock | 200 cm |
| Wohnfläche | 182,48 m² |
| Grundfläche | 193,01 m² |
| Anzahl Geschosse | 1,5 |
Besonderes
& Extras
Dieses Haus live erleben:
Bauzentrum Poing
Senator-Gerauer-Straße 25, Parzelle 35
85586 Poing bei München
Telefon 089-5022788
Anbaumöglichkeiten:
- Windfang
Beispiel
Grundrisse
Bekommen Sie durch die Grundrisse einen Eindruck von diesem Haus. Wir zeigen Ihnen unsere Planungsvorschläge, die natürlich auf Wunsch individuell umgeplant werden können.
Zusätzlich haben wir für dieses Haus interessante Planungsoptionen vorbereitet. Klicken Sie sich durch und sehen Sie selbst, welche Varianten wir uns überlegt haben.


Fordern Sie ganz unverbindlich & kostenfrei unser Fertighaus-Katalog mit ausführlichen Hinweisen zum Unternehmen sowie alle Hausentwürfe oder Bauleistungs- und Ausstattungsbeschreibungen an. Darüber hinaus erhalten Sie in unserer Aktionsbroschüre die Preise für unsere Aktionshäuser.






















