Modernes Wohnen unterm Satteldach
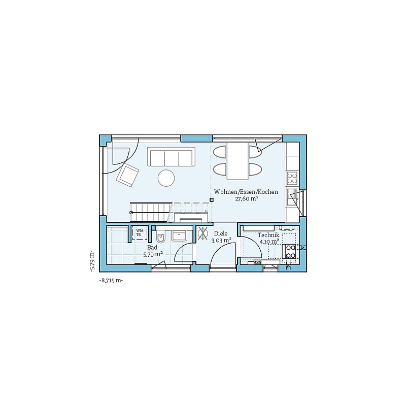
Auch im Tiny House ist Platz für eine moderne Raumaufteilung. Im Hausentwurf Tiny 59 mit 47 Quadratmetern Wohnfläche sorgt der Luftraum über dem Wohnzimmer in Kombination mit großen Fensterflächen für eine besonders angenehme, freundliche Atmosphäre im Wohn-, Ess- und Kochbereich.
Über eine gerade Treppe gelangt man zur Schlafgalerie unter dem steilen Satteldach mit 45° Dachneigung. Der Kniestock von 65 cm bietet die Möglichkeit, niedrige Möbel unter der Dachschräge zu platzieren. Der Raum zwischen Treppe und Dachschräge kann gut als zusätzlicher, von der Galerie aus zugänglicher Abstellraum genutzt werden.
| Merkmale | |
|---|---|
| Dachform | Satteldach |
| Dachneigung | 45° |
| Kniestock | 65 cm |
| Wohnfläche | 47,00 m² |
| Grundfläche | 59,70 m² |
Anbau
Möglichkeiten
- Haustürvordach
Beispiel
Grundrisse
Bekommen Sie durch die Grundrisse einen Eindruck von diesem Haus.


Fordern Sie ganz unverbindlich & kostenfrei unser Fertighaus-Katalog mit ausführlichen Hinweisen zum Unternehmen sowie alle Hausentwürfe oder Bauleistungs- und Ausstattungsbeschreibungen an. Darüber hinaus erhalten Sie in unserer Aktionsbroschüre die Preise für unsere Aktionshäuser.











