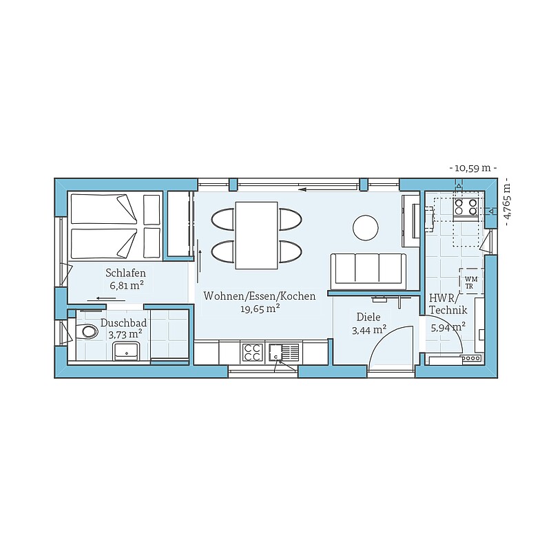
Komfortables Zuhause auf nur 39,5 m² Wohnfläche
Der clever geplante, eingeschossige Hausentwurf Tiny 39 mit flachem Pultdach zeigt, wie man auf kleinstem Raum alles unterbringen kann, was man zum Wohlfühlen braucht.
Die großflächige, bodentiefe Verglasung lässt viel Tageslicht in den offen gestalteten Wohn-, Ess- und Kochbereich, dessen Raumhöhe durch die Neigung des Pultdachs zum Garten hin zunimmt.
Die gemütliche Schlafkoje ist in einer Nische direkt neben dem Badezimmer eingeplant. Mit einer Schiebetür lässt sie sich vom Wohnbereich abtrennen und wird so zum Rückzugsort für die Hausbewohner.
| Merkmale | |
|---|---|
| Dachform | Pultdach |
| Dachneigung | 5° |
| Wohnfläche | 39,50 m² |
| Grundfläche | 39,50 m² |
| Anzahl Geschosse | 1 |
Anbau
Möglichkeiten
- Carport
Beispiel
Grundrisse
Bekommen Sie durch die Grundrisse einen Eindruck von diesem Haus.


Fordern Sie ganz unverbindlich & kostenfrei unser Fertighaus-Katalog mit ausführlichen Hinweisen zum Unternehmen sowie alle Hausentwürfe oder Bauleistungs- und Ausstattungsbeschreibungen an. Darüber hinaus erhalten Sie in unserer Aktionsbroschüre die Preise für unsere Aktionshäuser.










