Zwei Familien unter einem Dach
Ein Zweifamilienhaus wie das Hanse Haus Fertighaus Duo 315 bietet gegenüber einem Doppelhaus eine Reihe von finanziellen Vorteilen, da z. B. die Erschließungskosten für das Grundstück und die Anschaffungskosten für Haus- und Heiztechnik nur einmal anfallen.
| Merkmale | |
|---|---|
| Dachform | Satteldach |
| Dachneigung | 45° |
| Kniestock | 70 cm |
| Wohnfläche Einheit Links | 132,27 m² |
| Wohnfläche Einheit Rechts | 125,43 m² |
| Grundfläche Einheit Links | 156,41 m² |
| Grundfläche Einheit Rechts | 149,21 m² |
| Anzahl Geschosse | 1,5 |
Anbau
Möglichkeiten
- Zwerchgiebel
- Spitzböden
Beispiel
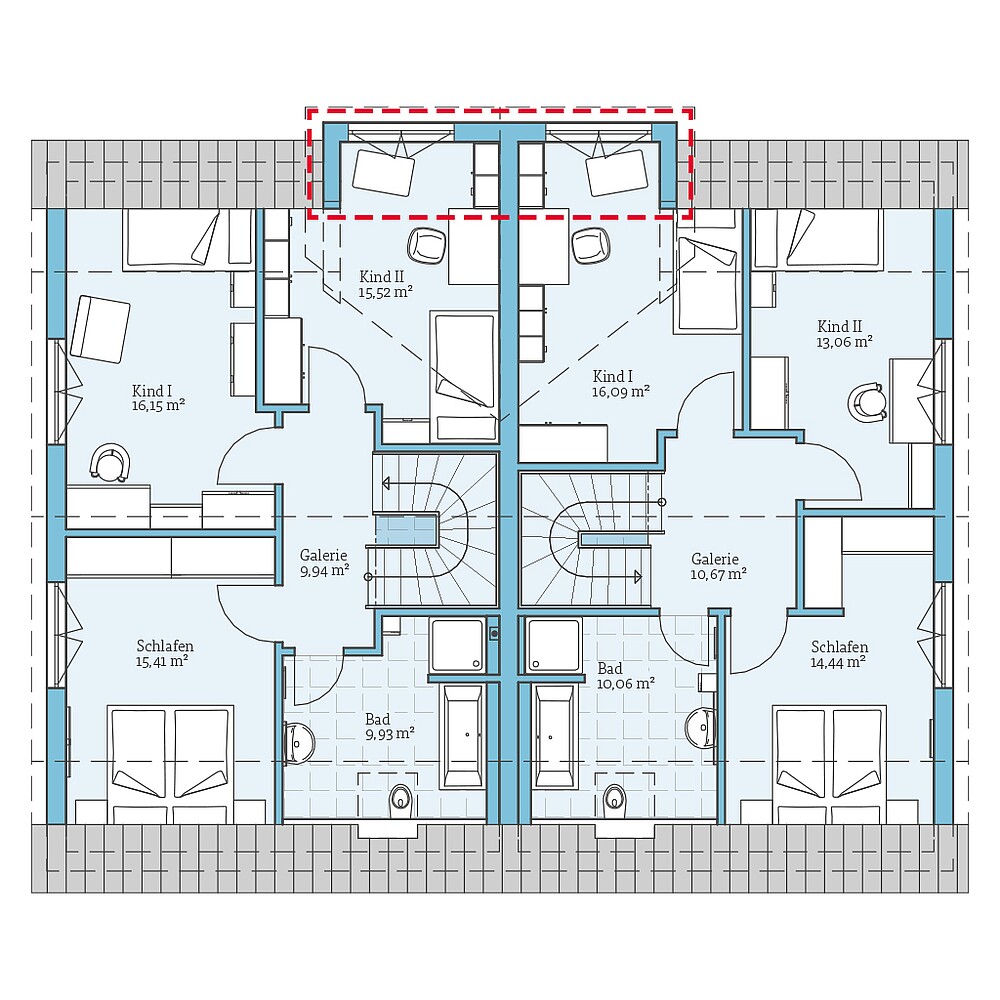
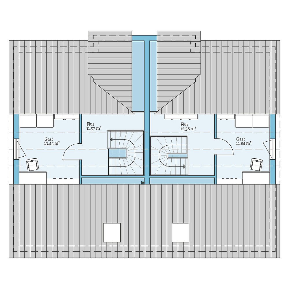
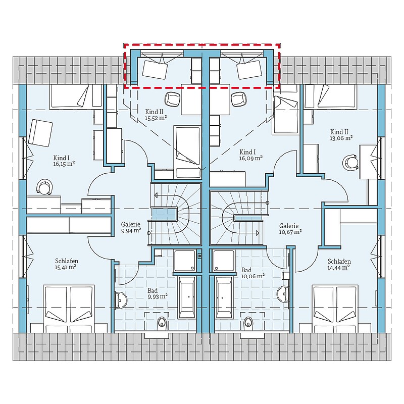
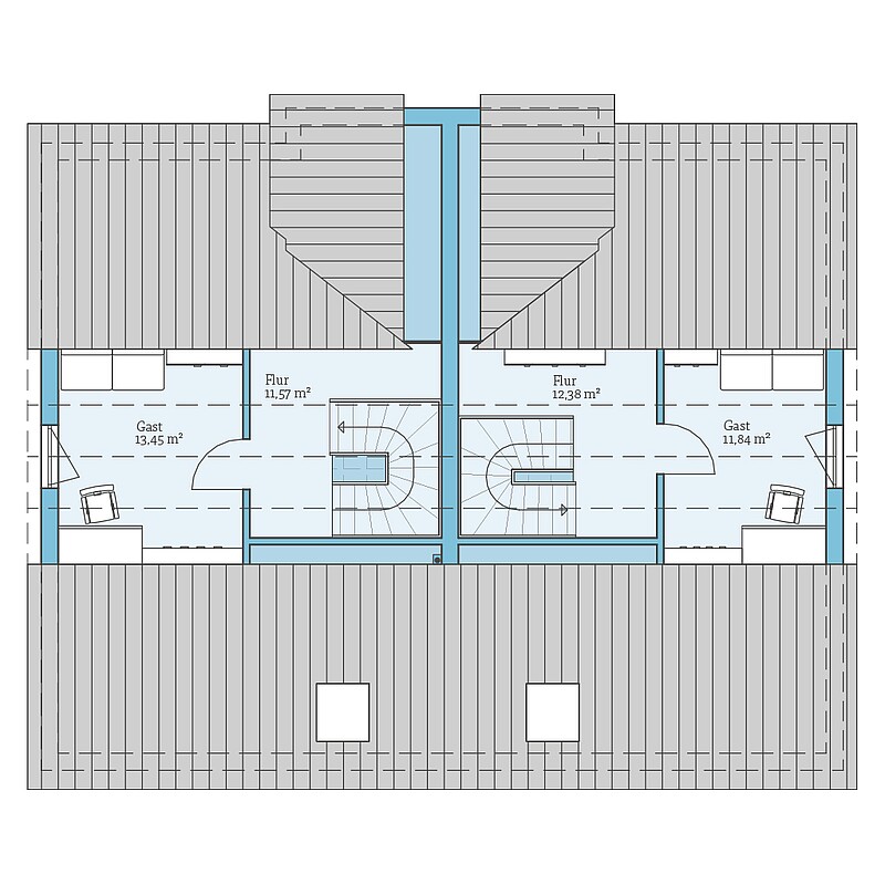
Grundrisse
Bekommen Sie durch die Grundrisse einen Eindruck von diesem Haus. Wir zeigen Ihnen unsere Planungsvorschläge, die natürlich auf Wunsch individuell umgeplant werden können.
Zusätzlich haben wir für dieses Haus interessante Planungsoptionen vorbereitet. Klicken Sie sich durch und sehen Sie selbst, welche Varianten wir uns überlegt haben.


Fordern Sie ganz unverbindlich & kostenfrei unser Fertighaus-Katalog mit ausführlichen Hinweisen zum Unternehmen sowie alle Hausentwürfe oder Bauleistungs- und Ausstattungsbeschreibungen an. Darüber hinaus erhalten Sie in unserer Aktionsbroschüre die Preise für unsere Aktionshäuser.













