Besuchen Sie uns im Musterhaus Villingen-Schwenningen im HausBauPark
Hanse Haus in Villingen-Schwenningen
Sie möchten das Projekt Hausbau in Angriff nehmen und mehr über Hanse Haus als Baupartner erfahren? Unser Musterhaus in Villingen-Schwenningen bietet Ihnen die Gelegenheit, eine moderne Stadtvilla mit Walmdach zu besichtigen: den Hausentwurf Villa 177. Vereinbaren Sie ein kostenloses, unverbindliches Beratungsgespräch oder schauen Sie sich ganz in Ruhe um und stellen uns Ihre Fragen. Wir freuen uns auf Sie!




Termine in der Nähe von Villingen-Schwenningen

Stadtvilla als Musterhaus in Villingen-Schwenningen
Heller Wohnraum ganz ohne Dachschrägen – erleben Sie in unserem Musterhaus die Vorteile eines Hauses mit zwei Vollgeschossen. Auf 179 m² Wohnfläche bietet das Einfamilienhaus mit Walmdach viel Platz zum Wohlfühlen.
Unser Musterhaus zeigt viele Anbaumöglichkeiten: Ein Erker vergrößert den Kochbereich und schafft Platz für eine Speisekammer. Durch das daran angesetzte Flachdach entsteht ein geschützter Sitzplatz im Freien. Ebenfalls praktisch ist die Erweiterung des Hauswirtschaftsraums mit anschließendem Carport.
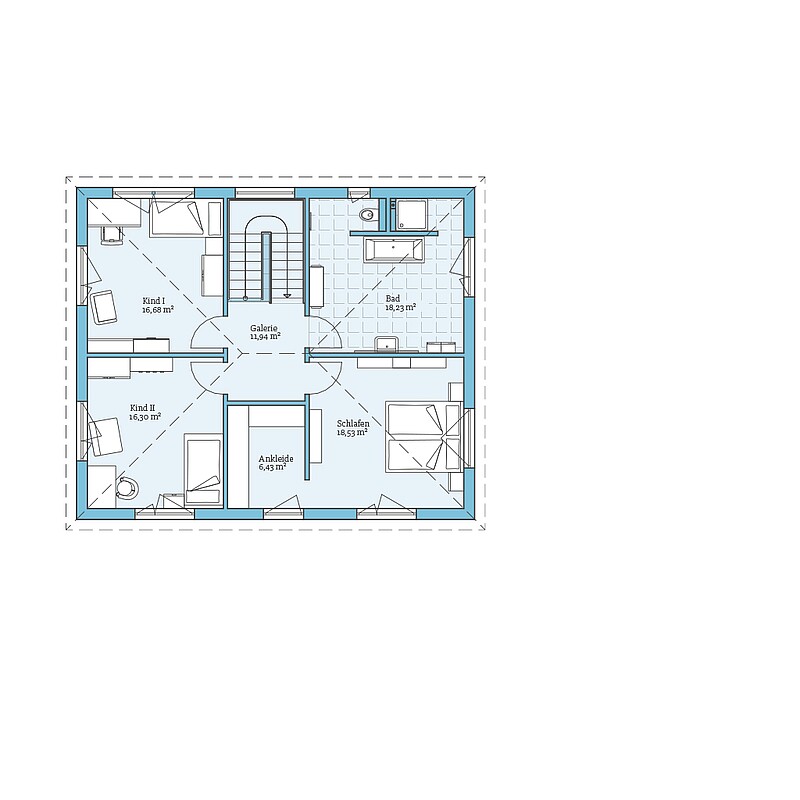
Erdgeschoss
- Geräumige Diele
- Gäste-WC mit Dusche
- Offener Wohn-, Ess- und Kochbereich
- Speisekammer
- Gäste-/Arbeitszimmer
- Hauswirtschafts- und Technikraum
- Überdachter Terrassenbereich
- Anbau mit Carport
Obergeschoss
- Galerie
- Zwei Kinderzimmer
- Elternschlafzimmer mit Ankleide
- Familienbad mit Badewanne und Dusche
Ihr Besuch in unserem Musterhaus in Villingen-Schwenningen
Moderne Fertighäuser im HausBauPark Villingen-Schwenningen
Besichtigen Sie moderne, energieeffiziente Musterhäuser namhafter Fertighaushersteller.
- Öffnungszeiten: Mittwoch bis Sonntag, 11:00 bis 17:00 Uhr
- Eintrittspreis: Eintritt frei
- Parken: direkt neben dem HausBauPark
- Parkkosten: kostenlos (außer während der Südwest Messe)
- Anzahl der Musterhäuser: 15
Warum sich ein Besuch im HausBauPark lohnt
Der Besuch im HausBauPark in Villingen-Schwennignen kann einen wichtigen Beitrag zur Entscheidung für einen Fertighausanbieter, einen Haustyp oder einen Architekturstil leisten.
Sie haben die Möglichkeit, die Wohnatmosphäre, die Raumaufteilung, die Dimensionen und die Hausausstattung in unserem Ausstellungshaus live zu erleben und Ihre Fragen einem kompetenten Fachberater vor Ort zu stellen – und so anhand von persönlichen Eindrücken herauszufinden, wie Sie sich Ihr Traumhaus vorstellen.
Tipps für den HausBauPark in Villingen-Schwenningen
Ein entspannter und gleichzeitig produktiver Besuch im HausBauPark – das gelingt mit unseren Tipps:
- Bringen Sie ausreichend Zeit mit, um entspannt durch die Musterhäuser schlendern zu können und alle Eindrücke in Ruhe auf sich wirken zu lassen.
- Machen Sie Notizen oder Fotos, wenn Ihnen etwas an einem Musterhaus besonders gut gefällt oder bei der Besichtigung Fragen aufkommen. Unsere Fachberater vor Ort stehen Ihnen gerne mit Rat und Tat zur Seite.
- Wenn Sie bereits konkrete Fragen zu unseren Fertighäusern oder rund um den Hausbau mit Hanse Haus haben, vereinbaren Sie am besten bereits im Voraus einen Beratungstermin bei einem unserer Fachberater.
Leistungen
Unser Anspruch ist es, Sie sicher und entspannt durch die gesamte Bauphase zu begleiten. Ihr Projekt beginnt für uns schon lange bevor die ersten Wände gefertigt werden.
Von den Planungsgesprächen über die Detailplanung des Hauses bis hin zur Erstellung von Ausführungsplänen, statischen Berechnungen und Wärmeschutznachweisen übernehmen wir eine Vielzahl von wertvollen Serviceleistungen für Sie. Dazu gehören unter anderem:
- Bedarfsanalyse
- Barrierefreiheit
- Vorentwurfsplanung und Angebot
- Festpreisgarantie 15 Monate
- Bauantrag
- Wärmeschutzberechnung / Energiebedarfsausweis
- Baugrundgutachten
- Werkplanung
- Deckenaussparung
- Ausstattungsberatung / Bemusterung
- Statik
- Beantragung der Hausanschlüsse
- Anlaufberatung
- Bauleitung, Überwachung und Betreuung
- Baustelleneinrichtung
- Versicherungsschutz
- Montage
- Luftdichtigkeitsprüfung (Blower-Door-Test)
- DGNB-Zertifizierung
- Garantie/Gewährleistung
- Kundendienst
Die einzelnen Leistungen können von der jeweiligen Ausbaustufe abweichen. Weitere Infos zu den Inklusivleistungen finden Sie auf unserer Website.
- > 38.600 zufriedene Hanse Haus-Bauherren
- 13. Mal in Folge: fairster Fertighausanbieter
- Ausgezeichnetes Preis-Leistungs-Verhältnis

- Blumer, Jochen
- Fasano, Michele
- Koscak, Danijela
- Marius, Mayer
Messe 1 / Hs. 35, 78056 Villingen-Schwenningen
Öffnungszeiten: Mi. - So. 11-17 Uhr
Häuser: Villa 177
- Blumer, Jochen
- Fasano, Michele
- Koscak, Danijela
- Marius, Mayer
Messe 1 / Hs. 35, 78056 Villingen-Schwenningen
Öffnungszeiten: Mi. - So. 11-17 Uhr
Häuser: Villa 177
Vereinbaren Sie einen unverbindlichen & kostenfreien Termin und erhalten Sie zusätzlich als Download oder per Post unseren Fertighaus-Katalog mit allen Hausentwürfen und ausführlichen Infos zum Hausbau mit Hanse Haus. In unserer Aktionsbroschüre finden Sie die Preise für unsere Aktionshäuser.















