Besuchen Sie uns im Musterhauspark Fellbach bei Stuttgart
Hanse Haus in Fellbach
Sie möchten das Projekt Hausbau in Angriff nehmen und mehr über Hanse Haus als Baupartner erfahren? Im Musterhaus in Fellbach bei Stuttgart (Ausstellung Eigenheim & Garten) können Sie zwei Musterhäuser besichtigen: das Variant 25-198 (Nr. 30) und das Variant 35-173 (Nr. 26). Vereinbaren Sie ein kostenloses, unverbindliches Beratungsgespräch oder schauen Sie sich ganz in Ruhe um und stellen uns Ihre Fragen. Wir freuen uns auf Sie!





Termine in der Nähe von Fellbach

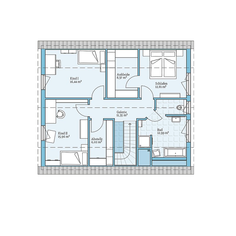
Satteldach-Musterhaus in Fellbach
Das Einfamilienhaus mit moderner Außenansicht und flachem Satteldach ermöglicht großzügiges Wohnen auf 190 m² Wohnfläche.
Highlight des Musterhauses ist der offene, lichtdurchflutete Wohn-, Ess- und Kochbereich, der mit seinen rund 55 m² zum Mittelpunkt des täglichen Familienlebens wird. Die Kinderzimmer sind so dimensioniert, dass sich der Nachwuchs bis ins Jugendalter wohlfühlt.
Erdgeschoss
- Geräumige Diele
- Gäste-WC mit Dusche
- Offener Wohn-, Ess- und Kochbereich
- Arbeits- / Gästezimmer
- Hauswirtschafts- und Technikraum
Dachgeschoss
- Galerie
- Zwei Kinderzimmer
- Elternschlafzimmer mit Ankleide
- Familienbad mit Badewanne und Dusche
- Hauswirtschaftsraum
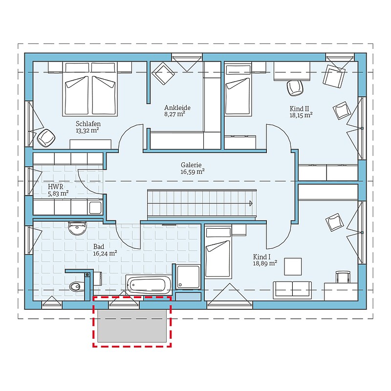
Musterhaus mit Anbau in Fellbach
Auf 174 m² Wohnfläche steht viel Raum zum Wohlfühlen zur Verfügung. Der gut durchdachte Grundriss ist optimal auf den Alltag einer vier- bis fünfköpfigen Familie zugeschnitten.
Unser Musterhaus zeigt, wie der Essbereich mit einer überdachten Terrasse erweitert werden kann. Außerdem verfügt es über einen Anbau mit Flachdach, der sich ganz flexibel als Garage, Büro oder auch als Einliegerwohnung nutzen lässt.
Erdgeschoss
- Windfang mit direktem Zugang zum Anbau
- Geräumige Diele
- Offener Wohn-, Ess- und Kochbereich
- Arbeits-/Gästezimmer
- Hauswirtschafts- und Technikraum
- Gäste-WC mit Dusche
- Überdachter Terrassenbereich
- Anbau
Dachgeschoss
- Galerie
- Zwei Kinderzimmer
- Elternschlafzimmer mit Ankleide
- Familienbad mit Badewanne und Dusche
- Abstellraum
Ihr Besuch in unseren Musterhäusern in Fellbach bei Stuttgart
Europas größte Musterhausausstellung Fellbach bei Stuttgart
Besichtigen Sie moderne, energieeffiziente Musterhäuser namhafter Fertighaushersteller.
- Eintrittspreis: 3€ | Ermäßigt: 1,50€ | Kinder bis 10 Jahre frei
- Parken: direkt neben dem Fertighauszentrum in der Erich-Herion-Straße
- Parkkosten: 2,00 EUR pro Tag
- Verpflegung: "Bistro 33 Carpe diem" inmitten der Fertighausausstellung
- Anzahl der Musterhäuser: 55
Warum sich ein Besuch in der FertighausWelt lohnt
Der Besuch im Musterhauspark in Fellbach kann einen wichtigen Beitrag zur Entscheidung für einen Fertighausanbieter, einen Haustyp oder einen Architekturstil leisten.
Sie haben die Möglichkeit, die Wohnatmosphäre, die Raumaufteilung, die Dimensionen und die Hausausstattung in unserem Ausstellungshaus live zu erleben und Ihre Fragen einem kompetenten Fachberater vor Ort zu stellen – und so anhand von persönlichen Eindrücken herauszufinden, wie Sie sich Ihr Traumhaus vorstellen.
Tipps für den Musterhauspark in Fellbach
Ein entspannter und gleichzeitig produktiver Besuch in der FertighausWelt – das gelingt mit unseren Tipps:
- Bringen Sie ausreichend Zeit mit, um entspannt durch die Musterhäuser schlendern zu können und alle Eindrücke in Ruhe auf sich wirken zu lassen.
- Machen Sie Notizen oder Fotos, wenn Ihnen etwas an einem Musterhaus besonders gut gefällt oder bei der Besichtigung Fragen aufkommen. Unsere Fachberater vor Ort stehen Ihnen gerne mit Rat und Tat zur Seite.
- Wenn Sie bereits konkrete Fragen zu unseren Fertighäusern oder rund um den Hausbau mit Hanse Haus haben, vereinbaren Sie am besten bereits im Voraus einen Beratungstermin bei einem unserer Fachberater.
Leistungen
Unser Anspruch ist es, Sie sicher und entspannt durch die gesamte Bauphase zu begleiten. Ihr Projekt beginnt für uns schon lange bevor die ersten Wände gefertigt werden.
Von den Planungsgesprächen über die Detailplanung des Hauses bis hin zur Erstellung von Ausführungsplänen, statischen Berechnungen und Wärmeschutznachweisen übernehmen wir eine Vielzahl von wertvollen Serviceleistungen für Sie. Dazu gehören unter anderem:
- Bedarfsanalyse
- Barrierefreiheit
- Vorentwurfsplanung und Angebot
- Festpreisgarantie 15 Monate
- Bauantrag
- Wärmeschutzberechnung / Energiebedarfsausweis
- Baugrundgutachten
- Werkplanung
- Deckenaussparung
- Ausstattungsberatung / Bemusterung
- Statik
- Beantragung der Hausanschlüsse
- Anlaufberatung
- Bauleitung, Überwachung und Betreuung
- Baustelleneinrichtung
- Versicherungsschutz
- Montage
- Luftdichtigkeitsprüfung (Blower-Door-Test)
- DGNB-Zertifizierung
- Garantie/Gewährleistung
- Kundendienst
Die einzelnen Leistungen können von der jeweiligen Ausbaustufe abweichen. Weitere Infos zu den Inklusivleistungen finden Sie auf unserer Website.
- > 38.600 zufriedene Hanse Haus-Bauherren
- 13. Mal in Folge: fairster Fertighausanbieter
- Ausgezeichnetes Preis-Leistungs-Verhältnis

- Mineur, Cornelia
- Mineur, Yves
- Rentsch, Holger
- Rosenberger, Michael
- Stübbe, Karl
Höhenstraße 21 / Hs. 26 und Hs. 30, 70736 Fellbach
Öffnungszeiten: Mi. - So. 11-18 Uhr
Häuser: Variant 25-198 (Nr. 30), Variant 35-173 (Nr. 26)
- Mineur, Cornelia
- Mineur, Yves
- Rentsch, Holger
- Rosenberger, Michael
- Stübbe, Karl
Höhenstraße 21 / Hs. 26 und Hs. 30, 70736 Fellbach
Öffnungszeiten: Mi. - So. 11-18 Uhr
Häuser: Variant 25-198 (Nr. 30), Variant 35-173 (Nr. 26)
Vereinbaren Sie einen unverbindlichen & kostenfreien Termin und erhalten Sie zusätzlich als Download oder per Post unseren Fertighaus-Katalog mit allen Hausentwürfen und ausführlichen Infos zum Hausbau mit Hanse Haus. In unserer Aktionsbroschüre finden Sie die Preise für unsere Aktionshäuser.
























