QNG⁺-Line: Das Leben genießen im modernen Doppelhaus
Ihnen gefällt die kompakte Planung unseres Doppelhauses 38-124 aus der QNG+-Line mit seinen praktischen Planungsdetails, Sie wünschen sich aber ein wenig mehr Wohnfläche? Dann ist unser Doppelhaus 38-136 die optimale Lösung für Sie.
Schaffen Sie auch auf kleineren Grundstücken ein Zuhause zum Wohlfühlen und Krafttanken für die ganze Familie, das gleichzeitig mit einem alltagstauglichen Grundriss und genügend Stauraum punktet.
Bis zu 10 % sparen dank serieller Fertigung
- Ausbauhaus: ab 253.326 € pro Haushälfte
- Technikfertig: ab 311.255 € pro Haushälfte
- Fast Fertig: ab 329.893 € pro Haushälfte
- Schlüsselfertig: ab 366.118 € pro Haushälfte
Ihr Vorteil
Wir können garantieren, dass Ihr Fertighaus aus der QNG+-Line unter Einhaltung bestimmter Vorgaben eine QNG-Zertifizierung erhält. So ist die höchste Förderstufe der KfW-Förderung Wohneigentum für Familien möglich und Sie profitieren von zinsgünstigen Krediten, die Ihnen die Finanzierung noch einmal zusätzlich erleichtern.
Info:
Abbildungen und Grundrisse enthalten Sonderausstattungen und Anbauten, die nicht im Grundpreis enthalten sind.
| Merkmale | |
|---|---|
| Dachform | Satteldach |
| Dachneigung | 38 |
| Kniestock | 120 cm |
| Wohnfläche je Einheit | 121,50 m² |
| Grundfläche je Einheit | 136,50 m² |
| Anzahl Geschosse | 1,5 |
Planungs-
möglichkeiten
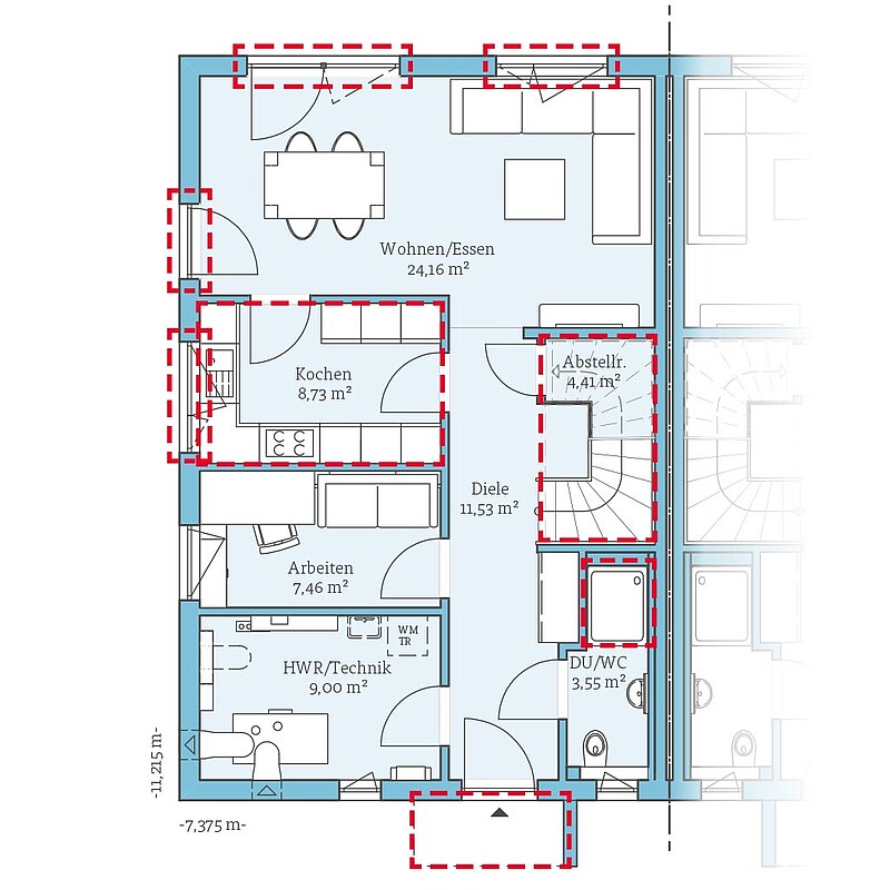
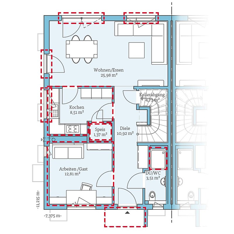
Da die Häuser aus der QNG+-Line seriell gefertigt werden, ist keine individuelle Planung möglich. Trotzdem stehen Ihnen einige Planungsmöglichkeiten offen:
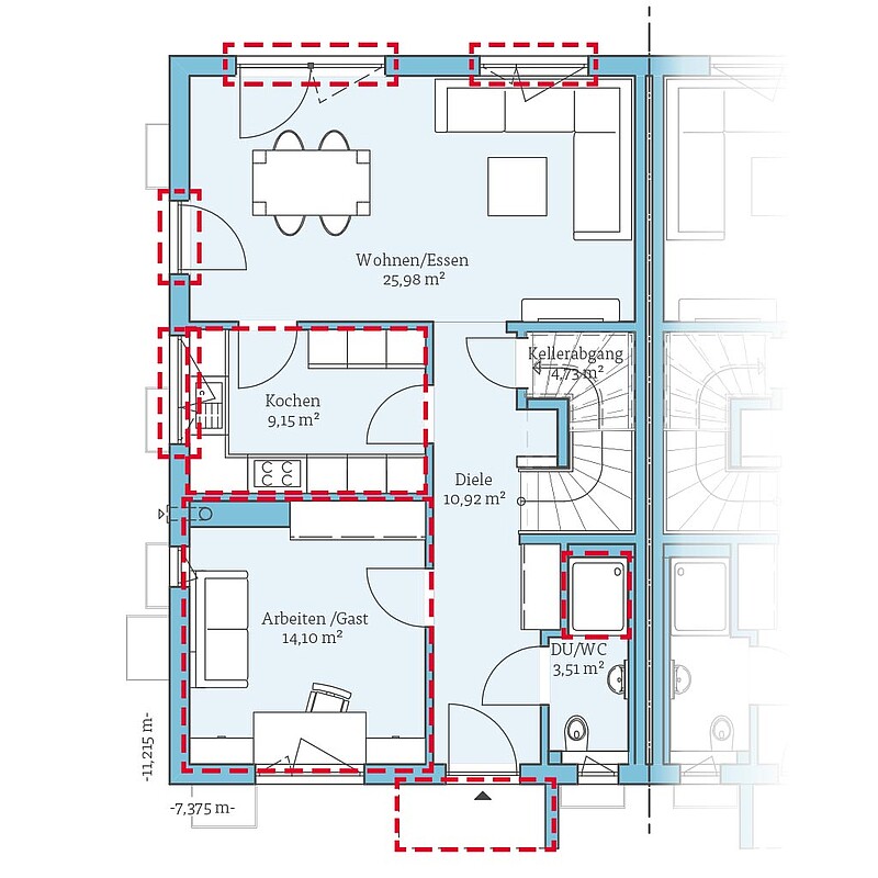
Erdgeschoss
- L-förmiges Haustürvordach
- Abstellraum unter der Treppe
- Größere Fenster
- Geschlossene Küche, optional mit Speisekammer
- Größere Dusche im Duschbad
- Mit Keller: Gäste- oder Arbeitszimmer statt Hauswirtschafts- und Technikraum
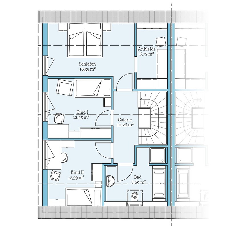
Dachgeschoss
- Terrassentür statt Fenster in den Kinderzimmern
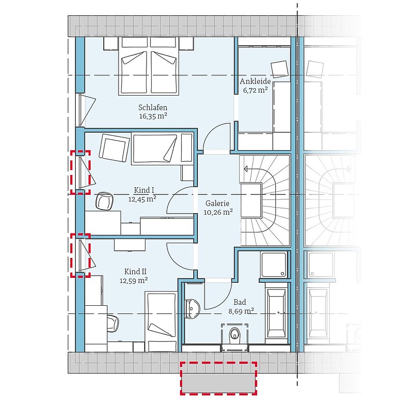
Beispiel
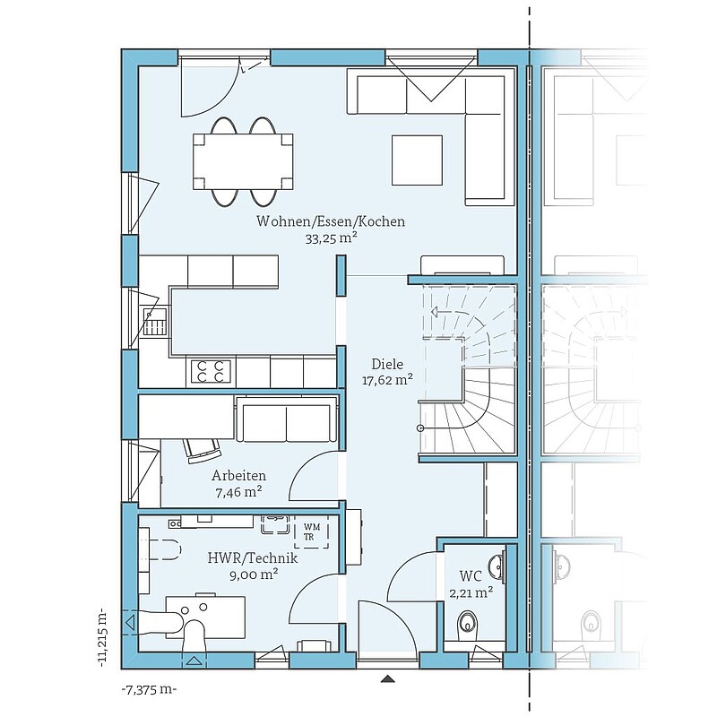
Grundrisse
Bekommen Sie durch die Grundrisse einen Eindruck von unserem Fertighaus aus der QNG⁺-Line.
Voraussetzung für die serielle, günstigere Fertigung ist, dass an den vordefinierten Grundrissen nur bestimmte Änderungen vorgenommen werden können. Entdecken Sie die unterschiedlichen Planungsoptionen für diesen Hausentwurf!

Fordern Sie ganz unverbindlich & kostenfrei unser Fertighaus-Katalog mit ausführlichen Hinweisen zum Unternehmen sowie alle Hausentwürfe oder Bauleistungs- und Ausstattungsbeschreibungen an. Darüber hinaus erhalten Sie in unserer Aktionsbroschüre die Preise für unsere Aktionshäuser.
















