Kompakt wohnen mit cleverem Lichtkonzept
Vier eigenständige Wohnungen, zwei pro Haushälfte – das QNG⁺-Line Doppelhaus 35-125 konzentriert sich auf das Wesentliche. Mit ca. 50 m² im Erdgeschoss und ca. 54 m² im Dachgeschoss ist das Raumangebot reduziert, aber hochwertig gelöst.
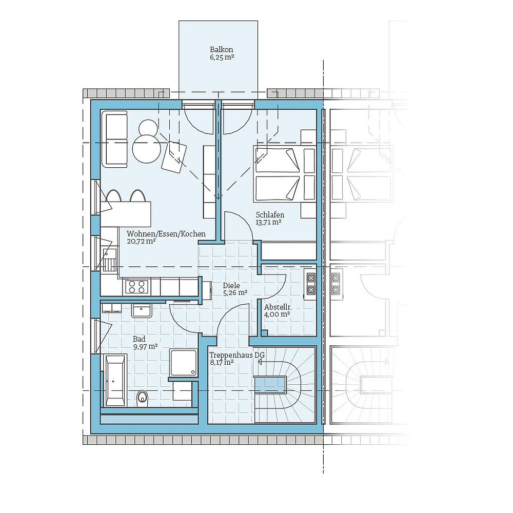
Unten sorgen ein Wohn-, Ess- und Kochbereich, Schlafzimmer, Duschbad und Technikraum für eine funktionale Basis. Oben sorgen Gauben für mehr Raum und Licht. Der Balkon ist vom Wohn- und Schlafzimmer aus erreichbar. Ein Bad mit Wanne und Dusche sowie ein Abstellraum runden die Wohnung ab.
Freisitz und Balkon erweitern den Wohnraum – ideal für alle, die kompakt leben und sich dennoch nicht einschränken wollen.
Bis zu 10 % sparen dank serieller Fertigung:
- Ausbauhaus: ab 281.365 € pro Haushälfte
- Technikfertig: ab 379.761 € pro Haushälfte
- Fast Fertig: ab 406.873 € pro Haushälfte
- Schlüsselfertig: ab 441.842 € pro Haushälfte
Ihr Vorteil:
Wir können garantieren, dass Ihr Fertighaus aus der QNG+-Line unter Einhaltung bestimmter Vorgaben eine QNG-Zertifizierung erhält. So ist die höchste Förderstufe der KfW-Förderung Wohneigentum für Familien möglich – mit zinsgünstigen Krediten für eine erleichterte Finanzierung.
Info:
Abbildungen und Grundrisse enthalten Sonderausstattungen und Anbauten, die nicht im Grundpreis enthalten sind.
| Merkmale | |
|---|---|
| Dachform | Satteldach |
| Dachneigung | 35 ° |
| Kniestock | 150 cm |
| Wohnfläche je Einheit | 113,86 m² |
| Grundfläche je Einheit | 138,22 m² |
| Anzahl Geschosse | 1,5 |
Ihr Plus an Komfort
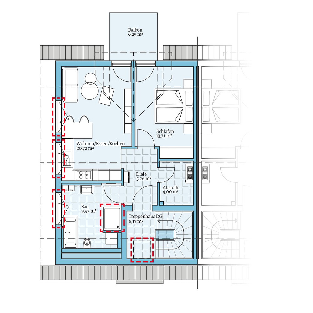
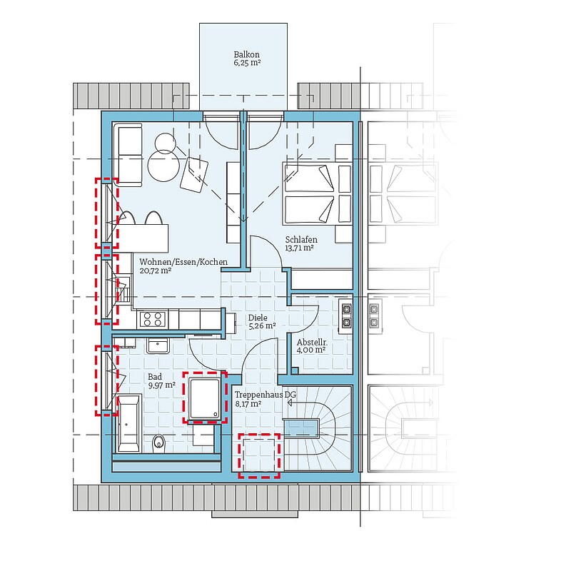
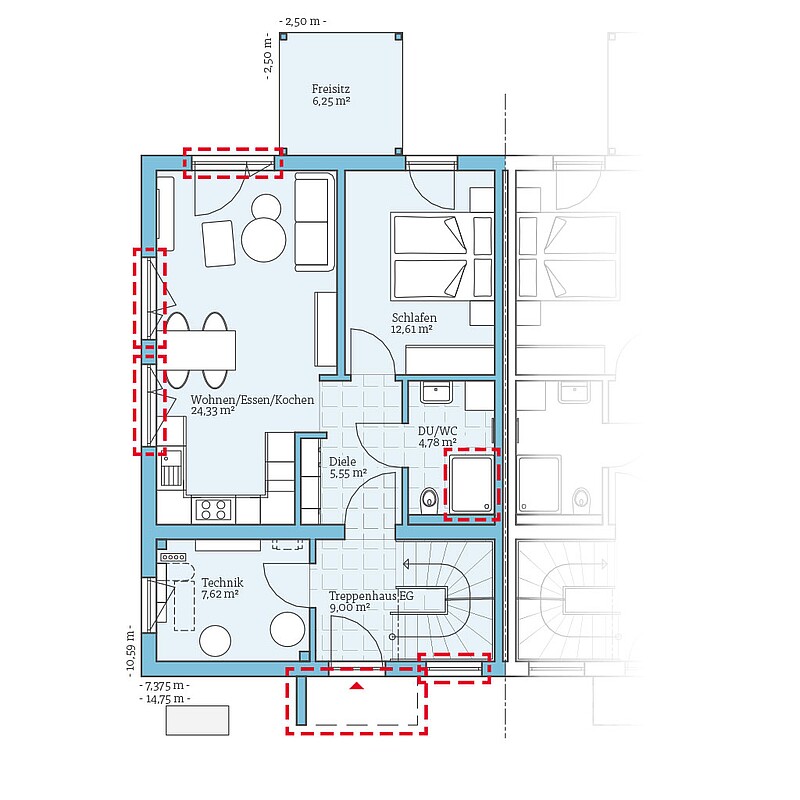
Serielle Fertigung mit Flexibilität – auch ohne individuelle Planung stehen Ihnen bei unseren Häusern aus der QNG+-Line einige Planungsoptionen offen:
Erdgeschoss
- Größere Dusche im Badezimmer
- Größere Terrassentür im Wohn-, Ess- und Kochbereich
- Größere Fenster im Wohn-, Ess- und Kochbereich
- Zusätzliches Fenster im Treppenhaus
- Haustürvordach
Dachgeschoss
- Größere Dusche im Badezimmer
- Größere Fenster im Wohn-, Ess- und Kochbereich sowie Badezimmer
- Dachflächenfenster im Treppenhaus
- Größerer Dachüberstand
Beispiel-
Grundrisse
Bekommen Sie durch die Grundrisse einen Eindruck von unserem Fertighaus aus der QNG⁺-Line.
Voraussetzung für die serielle, günstigere Fertigung ist, dass an den vordefinierten Grundrissen nur bestimmte Änderungen vorgenommen werden können. Entdecken Sie die möglichen Planungsoptionen für diesen Hausentwurf:

Fordern Sie ganz unverbindlich & kostenfrei unser Fertighaus-Katalog mit ausführlichen Hinweisen zum Unternehmen sowie alle Hausentwürfe oder Bauleistungs- und Ausstattungsbeschreibungen an. Darüber hinaus erhalten Sie in unserer Aktionsbroschüre die Preise für unsere Aktionshäuser.













