QNG⁺-Line: Das Doppelhaus, das perfekt zu Ihnen passt
Moderne Satteldacharchitektur mit hellem Dachgeschoss und viel Kopffreiheit – das ist unser Doppelhaus 25-138 aus der QNG+-Line. Weil der Fertighaus-Klassiker mit hohem Kniestock und flachem Satteldach auch als Doppelhaus rundum überzeugt, haben wir mit diesem Entwurf noch einmal eine Variante unseres Doppelhauses 25-125 entworfen, bei der noch mehr Wohnraum zur Verfügung steht.
So finden Sie sicher die passende Lösung, um sich den Traum vom Doppelhaus zu erfüllen.
Bis zu 10 % sparen dank serieller Fertigung
- Ausbauhaus: ab 255.105 € pro Haushälfte
- Technikfertig: ab 310.764 € pro Haushälfte
- Fast Fertig: ab 328.602 € pro Haushälfte
- Schlüsselfertig: ab 363.316 € pro Haushälfte
Ihr Vorteil
Wir können garantieren, dass Ihr Fertighaus aus der QNG+-Line unter Einhaltung bestimmter Vorgaben eine QNG-Zertifizierung erhält. So ist die höchste Förderstufe der KfW-Förderung Wohneigentum für Familien möglich und Sie profitieren von zinsgünstigen Krediten, die Ihnen die Finanzierung noch einmal zusätzlich erleichtern.
Info:
Abbildungen und Grundrisse enthalten Sonderausstattungen und Anbauten, die nicht im Grundpreis enthalten sind.
| Merkmale | |
|---|---|
| Dachform | Satteldach |
| Dachneigung | 25 |
| Kniestock | 200 |
| Wohnfläche je Einheit | 127,50 m² |
| Grundfläche je Einheit | 138,00 m² |
| Anzahl Geschosse | 1,5 |
Planungs-
möglichkeiten
Da die Häuser aus der QNG+-Line seriell gefertigt werden, ist keine individuelle Planung möglich. Trotzdem stehen Ihnen einige Planungsmöglichkeiten offen:
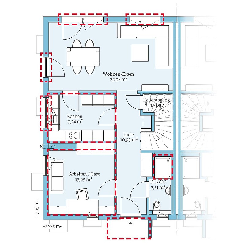
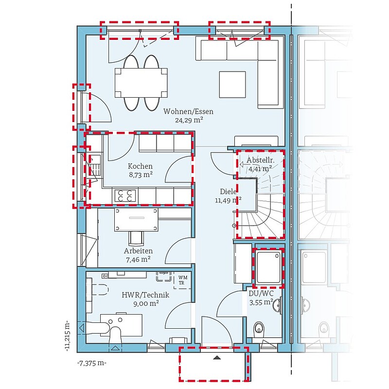
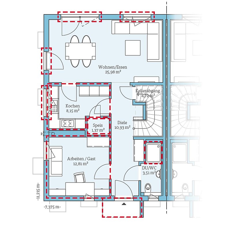
Erdgeschoss
- L-förmiges Haustürvordach
- Abstellraum unter der Treppe
- Größere Fenster
- Geschlossene Küche, optional mit Speisekammer
- Größere Dusche im Duschbad
- Mit Keller: Gäste-/Arbeitszimmer statt Hauswirtschafts- und Technikraum
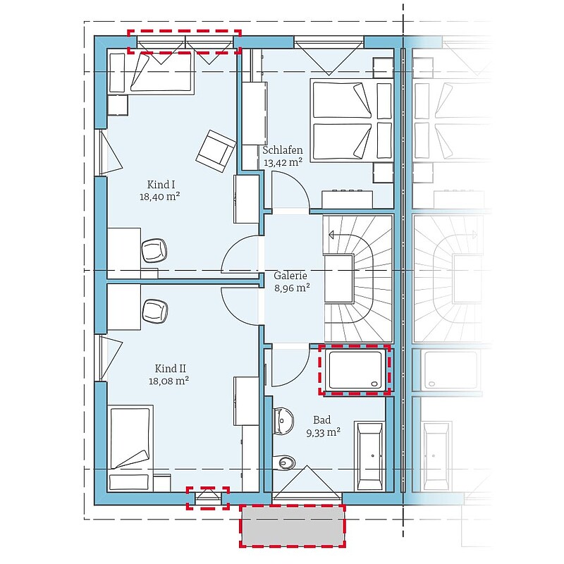
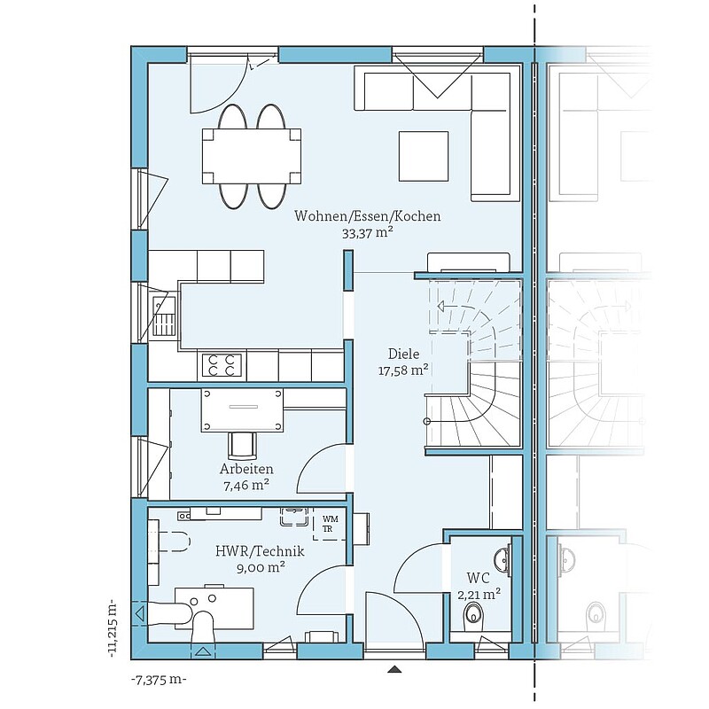
Dachgeschoss
- Größere Dusche im Badezimmer
- Zusätzliche Fenster
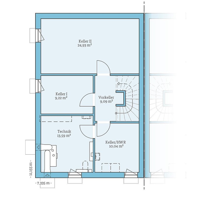
Beispiel
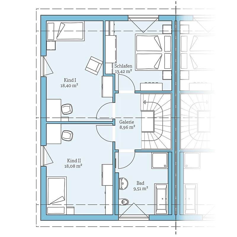
Grundrisse
Bekommen Sie durch die Grundrisse einen Eindruck von unserem Fertighaus aus der QNG⁺-Line.
Voraussetzung für die serielle, günstigere Fertigung ist, dass an den vordefinierten Grundrissen nur bestimmte Änderungen vorgenommen werden können. Entdecken Sie die unterschiedlichen Planungsoptionen für diesen Hausentwurf!

Fordern Sie ganz unverbindlich & kostenfrei unser Fertighaus-Katalog mit ausführlichen Hinweisen zum Unternehmen sowie alle Hausentwürfe oder Bauleistungs- und Ausstattungsbeschreibungen an. Darüber hinaus erhalten Sie in unserer Aktionsbroschüre die Preise für unsere Aktionshäuser.
















