QNG⁺-Line: Klassische Satteldach-Architektur zum Wohlfühlen
Unser Doppelhaus 25-125 aus der QNG+-Line ist ein gutes Beispiel dafür, wie sich mit Doppelhäusern problemlos auch auf kleinen Grundstücken viel Wohnraum für die ganze Familie schaffen lässt. Durch das flache Satteldach in Kombination mit dem hohen Kniestock entsteht ein besonders geräumiges, helles Dachgeschoss. Diese Architektur überzeugt nicht nur mit viel Kopffreiheit und einer modernen Außenansicht – sie wird auch in vielen Baugebieten genehmigt.
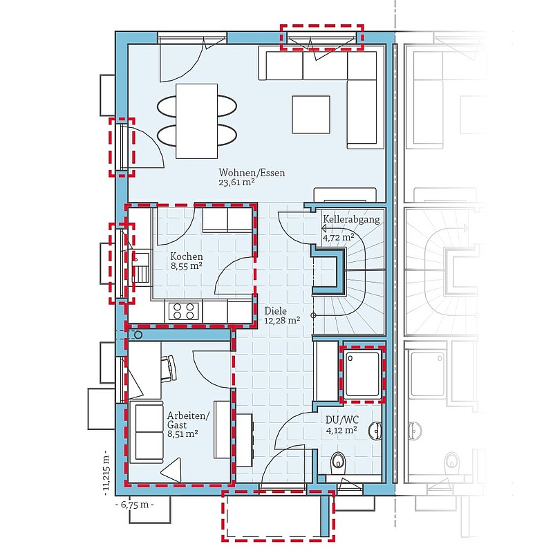
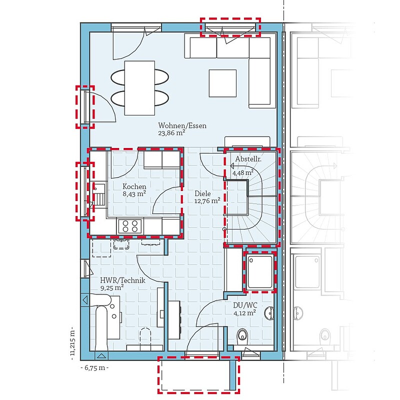
Wie die anderen Doppelhäuser aus dieser Reihe kann auch das Doppelhaus 25-125 auf Wunsch mit einem Keller erweitert werden. Dort ist unter anderem genug Platz für einen Hauswirtschaftsraum und die Haus- und Heiztechnik, sodass im Erdgeschoss ein zusätzlicher Raum frei wird – perfekt geeignet als Arbeits- oder Gästezimmer.
Bis zu 10 % sparen dank serieller Fertigung:
- Ausbauhaus: ab 243.916 € pro Haushälfte
- Technikfertig: ab 297.606 € pro Haushälfte
- Fast Fertig: ab 315.022 € pro Haushälfte
- Schlüsselfertig: ab 346.933 € pro Haushälfte
Ihr Vorteil
Wir können garantieren, dass Ihr Fertighaus aus der QNG+-Line unter Einhaltung bestimmter Vorgaben eine QNG-Zertifizierung erhält. So ist die höchste Förderstufe der KfW-Förderung Wohneigentum für Familien möglich und Sie profitieren von zinsgünstigen Krediten, die Ihnen die Finanzierung noch einmal zusätzlich erleichtern.
Info:
Abbildungen und Grundrisse enthalten Sonderausstattungen und Anbauten, die nicht im Grundpreis enthalten sind.
| Merkmale | |
|---|---|
| Dachform | Satteldach |
| Dachneigung | 25 |
| Kniestock | 200 |
| Wohnfläche je Einheit | 115,00 m² |
| Grundfläche je Einheit | 125,00 m² |
| Anzahl Geschosse | 1,5 |
Planungs-
möglichkeiten
Da die Häuser aus der QNG+-Line seriell gefertigt werden, ist keine individuelle Planung möglich. Trotzdem stehen Ihnen einige Planungsmöglichkeiten offen:
Erdgeschoss
- L-förmiges Haustürvordach
- Abstellraum unter der Treppe
- Größere Fenster
- Geschlossene Küche
- Duschbad statt Gäste-WC
- Mit Keller: Gäste- oder Arbeitszimmer statt Hauswirtschafts- und Technikraum
Dachgeschoss
- Größere Dusche im Badezimmer
- Zusätzliche Fenster
- Größerer Dachüberstand
Beispiel
Grundrisse
Bekommen Sie durch die Grundrisse einen Eindruck von unserem Fertighaus aus der QNG⁺-Line.
Voraussetzung für die serielle, günstigere Fertigung ist, dass an den vordefinierten Grundrissen nur bestimmte Änderungen vorgenommen werden können. Entdecken Sie die unterschiedlichen Planungsoptionen für diesen Hausentwurf!

Fordern Sie ganz unverbindlich & kostenfrei unser Fertighaus-Katalog mit ausführlichen Hinweisen zum Unternehmen sowie alle Hausentwürfe oder Bauleistungs- und Ausstattungsbeschreibungen an. Darüber hinaus erhalten Sie in unserer Aktionsbroschüre die Preise für unsere Aktionshäuser.















