Ganz viel Freiraum ohne Dachschrägen
Das QNG⁺-Line Doppelhaus 138 bietet helle, großzügige Wohnfläche auf zwei Vollgeschossen, ganz ohne Dachschrägen und mit flexiblen Grundrissen.
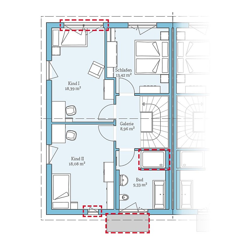
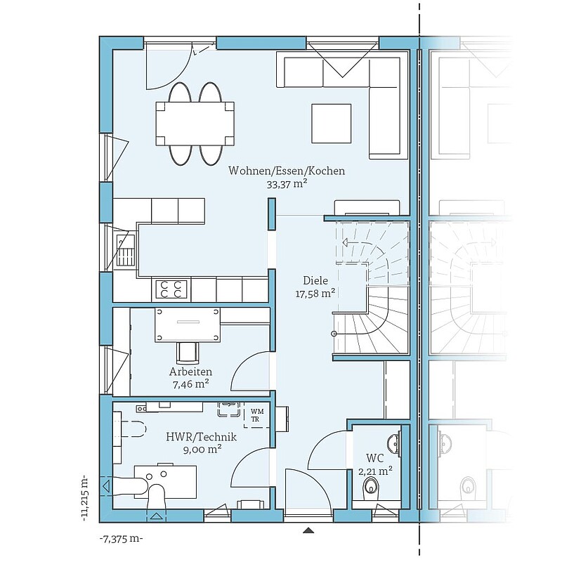
Im Erdgeschoss bildet der offene Wohn-, Ess- und Kochbereich das Zentrum des Familienlebens. Gäste-WC, Hauswirtschaftsraum und ein Arbeitszimmer schaffen Ordnung. Im Obergeschoss liegen Elternschlafzimmer, zwei Kinderzimmer und das Familienbad.
Zwei Vollgeschosse, große Fensterflächen an drei Hausseiten und das zusätzliche Arbeitszimmer machen das Doppelhaus zum großzügigen und komfortablen Zuhause.
Bis zu 10 % sparen dank serieller Fertigung:
- Ausbauhaus: ab 262.971 € pro Haushälfte
- Technikfertig: ab 320.963 € pro Haushälfte
- Fast Fertig: ab 355.224 € pro Haushälfte
- Schlüsselfertig: ab 369.801 € pro Haushälfte
Ihr Vorteil:
Wir können garantieren, dass Ihr Fertighaus aus der QNG⁺-Line unter Einhaltung bestimmter Vorgaben eine QNG-Zertifizierung erhält. So ist die höchste Förderstufe der KfW-Förderung Wohneigentum für Familien – mit zinsgünstigen Krediten für eine erleichterte Finanzierung.
Info:
Abbildungen und Grundrisse enthalten Sonderausstattungen und Anbauten, die nicht im Grundpreis enthalten sind.
| Merkmale | |
|---|---|
| Dachform | Satteldach |
| Dachneigung | 25 |
| Kniestock | 24 cm |
| Wohnfläche je Einheit | 131,00 m² |
| Grundfläche je Einheit | 138,00 m² |
| Anzahl Geschosse | 2 |
Ihr Plus an Komfort
Serielle Fertigung mit Flexibilität – auch ohne individuelle Planung stehen Ihnen bei unseren Häusern aus der QNG⁺-Line einige Planungsoptionen offen:
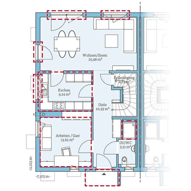
Erdgeschoss
- L-förmiges Haustürvordach
- Abstellraum unter der Treppe
- Duschbad statt Gäste-WC
- Größere Fenster
- Geschlossene Küche
- Mit Keller: Arbeits- oder Gästezimmer statt Technik- und Hauswirtschaftsraum
Dachgeschoss
- Größerer Dachüberstand
- Größere Dusche im Badezimmer
- Zusätzliche Fenster
Beispiel-
Grundrisse
Bekommen Sie durch die Grundrisse einen Eindruck von unserem Fertighaus aus der QNG⁺-Line.
Voraussetzung für die serielle, günstigere Fertigung ist, dass an den vordefinierten Grundrissen nur bestimmte Änderungen vorgenommen werden können. Entdecken Sie die möglichen Planungsoptionen für diesen Hausentwurf:

Fordern Sie jetzt ganz unverbindlich und kostenfrei unseren Fertighaus-Katalog mit ausführlichen Hinweisen zum Unternehmen sowie alle Hausentwürfe oder Bauleistungs- und Ausstattungsbeschreibungen an.















