Alles drin, clever verteilt – Wohnen ohne Kompromisse
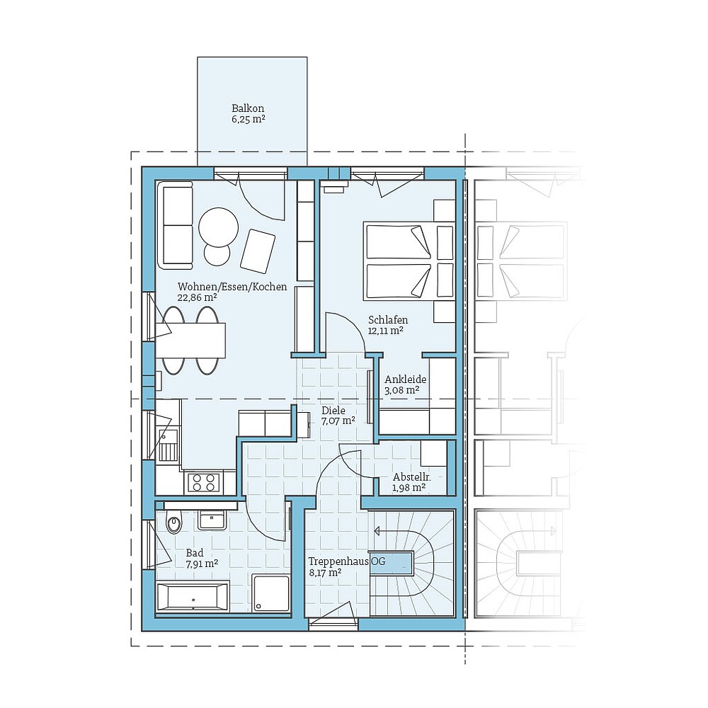
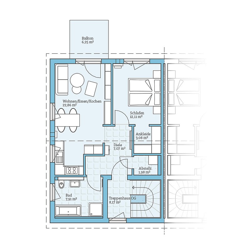
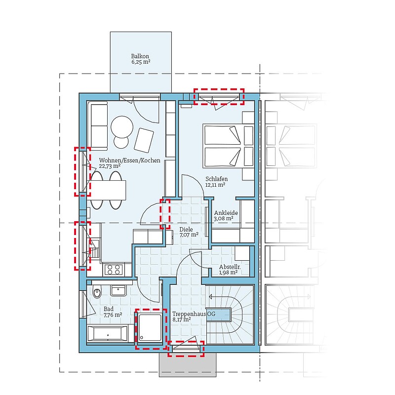
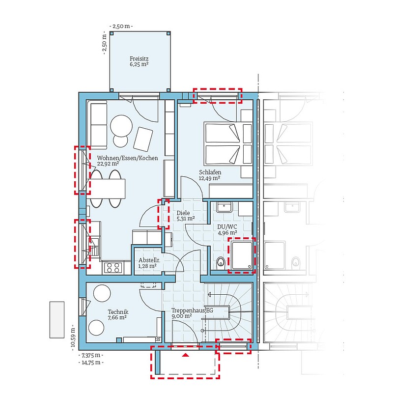
Das QNG⁺-Line Doppelhaus 126 bietet vier abgeschlossene Wohnungen – zwei je Doppelhaushälfte. Mit ca. 50 m² im Erdgeschoss und ca. 58 m² im Obergeschoss überzeugt das Haus durch kompakte Maße und durchdachte Aufteilung.
Praktisch geplant mit allem, was gebraucht wird: offener Wohn-, Ess- und Kochbereich, Schlafzimmer, Bad, Technik- und Abstellraum – je nach Etage mit Extras wie Ankleide oder Badewanne.
Dazu kommen überdachte Freisitze unten und Balkone oben – für modernes Wohnen mit allem, was wirklich zählt.
Bis zu 10 % sparen dank serieller Fertigung:
- Ausbauhaus: ab 282.879 € pro Haushälfte
- Technikfertig: ab 362.856 € pro Haushälfte
- Fast Fertig: ab 385.545 € pro Haushälfte
- Schlüsselfertig: ab 426.985 € pro Haushälfte
Ihr Vorteil:
Wir können garantieren, dass Ihr Fertighaus aus der QNG+-Line unter Einhaltung bestimmter Vorgaben eine QNG-Zertifizierung erhält. So ist die höchste Förderstufe der KfW-Förderung Wohneigentum für Familien möglich – mit zinsgünstigen Krediten für eine erleichterte Finanzierung.
Info:
Abbildungen und Grundrisse enthalten Sonderausstattungen und Anbauten, die nicht im Grundpreis enthalten sind.
| Merkmale | |
|---|---|
| Dachform | Satteldach |
| Dachneigung | 25 ° |
| Wohnfläche je Einheit | 118,98 m² |
| Grundfläche je Einheit | 139,43 m² |
| Anzahl Geschosse | 2 |
Ihr Plus an Komfort
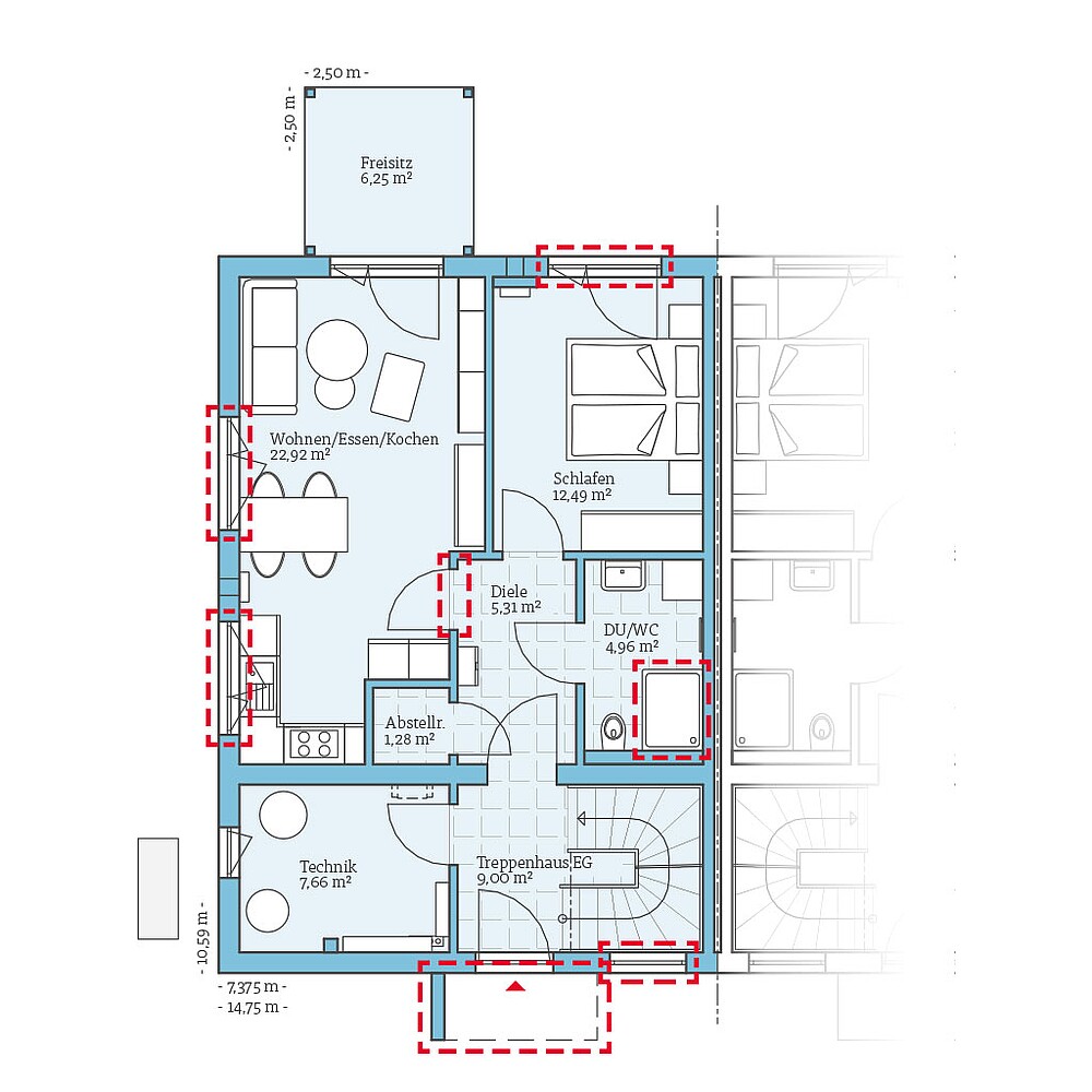
Serielle Fertigung mit Flexibilität – auch ohne individuelle Planung stehen Ihnen bei unseren Häusern aus der QNG+-Line einige Planungsoptionen offen:
Erdgeschoss
- Größere Dusche im Badezimmer
- Terrassentür statt Fenster im Schlafzimmer
- Größere Fenster im Wohn-, Ess- und Kochbereich
- Wohn-, Ess- und Kochbereich geschlossen
- Zusätzliches Fenster im Treppenhaus
- Haustürvordach
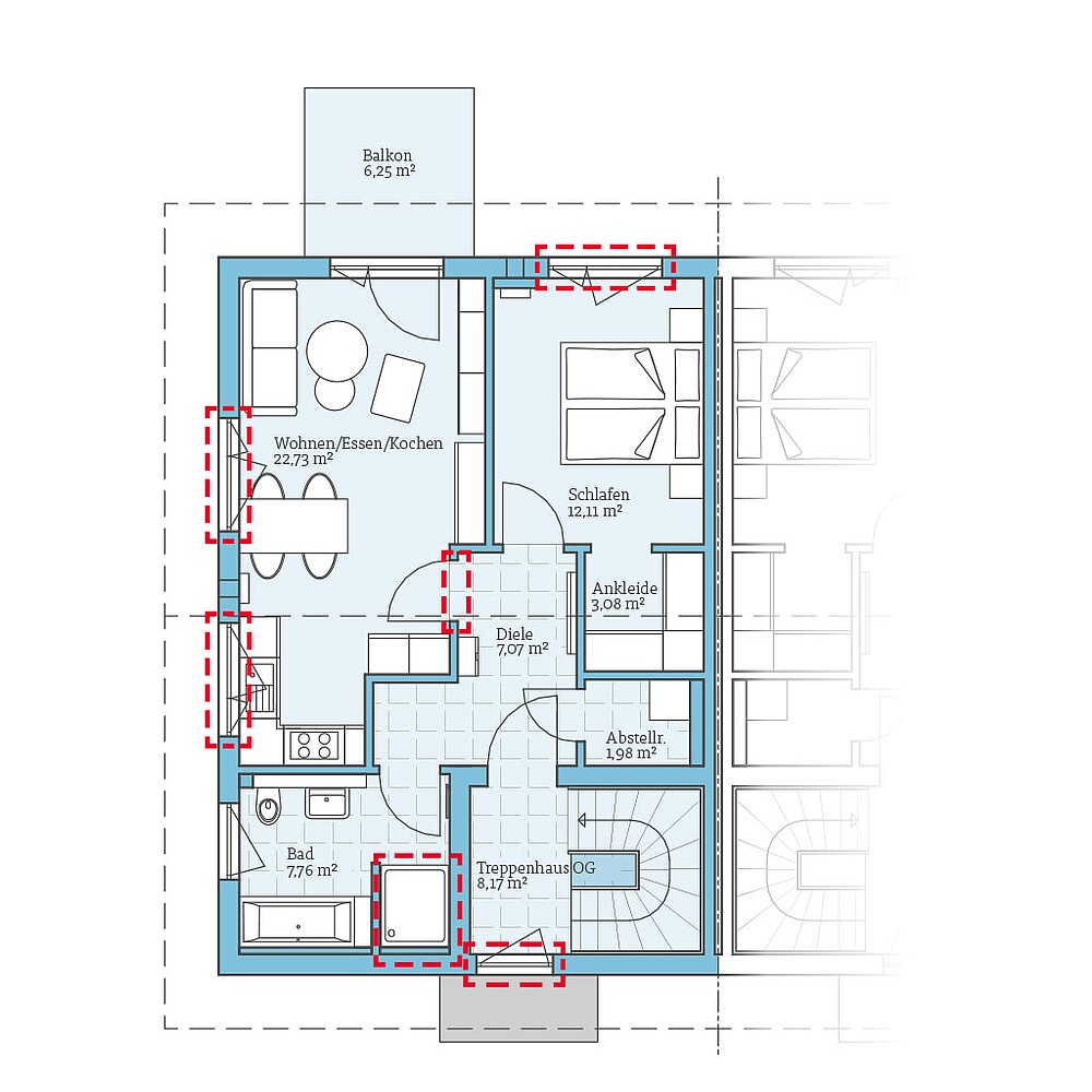
Obergeschoss
- Größere Dusche im Badezimmer
- Größere Fenster im Wohn-, Ess- und Kochbereich
- Wohn-, Ess- und Kochbereich geschlossen
- Bodentiefe Fenster statt Fenster im Schlafzimmer und Treppenhaus
- Größerer Dachüberstand
Beispiel-
Grundrisse
Bekommen Sie durch die Grundrisse einen Eindruck von unserem Fertighaus aus der QNG⁺-Line.
Voraussetzung für die serielle, günstigere Fertigung ist, dass an den vordefinierten Grundrissen nur bestimmte Änderungen vorgenommen werden können. Entdecken Sie die möglichen Planungsoptionen für diesen Hausentwurf:

Fordern Sie ganz unverbindlich & kostenfrei unser Fertighaus-Katalog mit ausführlichen Hinweisen zum Unternehmen sowie alle Hausentwürfe oder Bauleistungs- und Ausstattungsbeschreibungen an. Darüber hinaus erhalten Sie in unserer Aktionsbroschüre die Preise für unsere Aktionshäuser.













