Komfortabel bis unters Dach
Alle Cubus-Entwürfe haben eines gemeinsam: Durch die zwei Vollgeschosse unter dem modernen Flachdach ist die gesamte Grundfläche im Erdgeschoss und auch im Obergeschoss vollflächig nutzbar.
So finden z. B. im Obergeschoss neben dem Elternschlafzimmer auch noch zwei Kinderzimmer, zwei Bäder und ein Ankleidezimmer für die Eltern Platz.
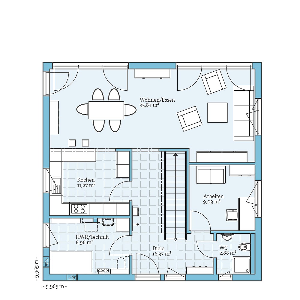
Das Erdgeschoss wird von den großen Glasfronten im Wohn- und Essbereich geprägt, die für ein lichtdurchflutetes Ambiente sorgen. Ein optionaler Anbau erweitert den Wohnbereich noch zusätzlich.
| Merkmale | |
|---|---|
| Dachform | Flachdach |
| Dachneigung | 2° |
| Wohnfläche | 160,73 m² |
| Grundfläche | 166,53 m² |
| Anzahl Geschosse | 2 |
Anbau
Möglichkeiten
- Erker mit Flachdach
Beispiel
Grundrisse
Bekommen Sie durch die Grundrisse einen Eindruck von diesem Haus. Wir zeigen Ihnen unsere Planungsvorschläge, die natürlich auf Wunsch individuell umgeplant werden können.
Zusätzlich haben wir für dieses Haus interessante Planungsoptionen vorbereitet. Klicken Sie sich durch und sehen Sie selbst, welche Varianten wir uns überlegt haben.


Fordern Sie ganz unverbindlich & kostenfrei unser Fertighaus-Katalog mit ausführlichen Hinweisen zum Unternehmen sowie alle Hausentwürfe oder Bauleistungs- und Ausstattungsbeschreibungen an. Darüber hinaus erhalten Sie in unserer Aktionsbroschüre die Preise für unsere Aktionshäuser.












