Klare Linien, cooler Look
Klare Linien und eine sachlich gegliederte Architektur bestimmen den Charakter des Cubus 162.
Auf 162 m² können Sie bei diesem Haus mit Flachdach Ihre Vorstellungen von Design und Wohnkultur ideal in Szene setzen. Optische Highlights wie die zweiläufige Podesttreppe ergänzen sich mit praktischen Details wie dem Windfang oder der Garderobennische.
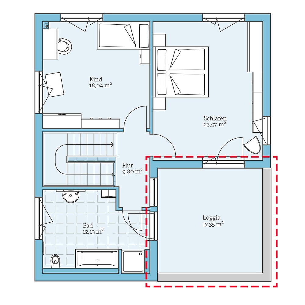
Den Cubus 162 können Sie auf Wunsch mit einem Erker an der Küche oder einer Loggia im Obergeschoss erweitern. Geschützt vor Wind und neugierigen Blicken, ist die Loggia der perfekte Platz für laue Sommerabende zu zweit oder mit Freunden.
| Merkmale | |
|---|---|
| Dachform | Flachdach |
| Dachneigung | 2° |
| Wohnfläche | 154,09 m² |
| Grundfläche | 161,78 m² |
| Anzahl Geschosse | 2 |
Anbau
Möglichkeiten
- Küchenerker mit Flachdach
- Loggia
Beispiel
Grundrisse
Bekommen Sie durch die Grundrisse einen Eindruck von diesem Haus. Wir zeigen Ihnen unsere Planungsvorschläge, die natürlich auf Wunsch individuell umgeplant werden können.
Zusätzlich haben wir für dieses Haus interessante Planungsoptionen vorbereitet. Klicken Sie sich durch und sehen Sie selbst, welche Varianten wir uns überlegt haben.


Fordern Sie ganz unverbindlich & kostenfrei unser Fertighaus-Katalog mit ausführlichen Hinweisen zum Unternehmen sowie alle Hausentwürfe oder Bauleistungs- und Ausstattungsbeschreibungen an. Darüber hinaus erhalten Sie in unserer Aktionsbroschüre die Preise für unsere Aktionshäuser.














