Ganz groß auf kleinen Grundstücken
Der Bungalow 92 ist so kompakt geplant, dass er bereits auf Grundstücken ab 300 m² realisiert werden kann. Das versetzte Pultdach verleiht dem Bungalow eine moderne Optik und lässt sich hervorragend mit einem abgeschleppten Carport kombinieren. So ist der Hauseingang vor Regen geschützt und man gelangt trockenen Fußes vom Auto zum Haus.
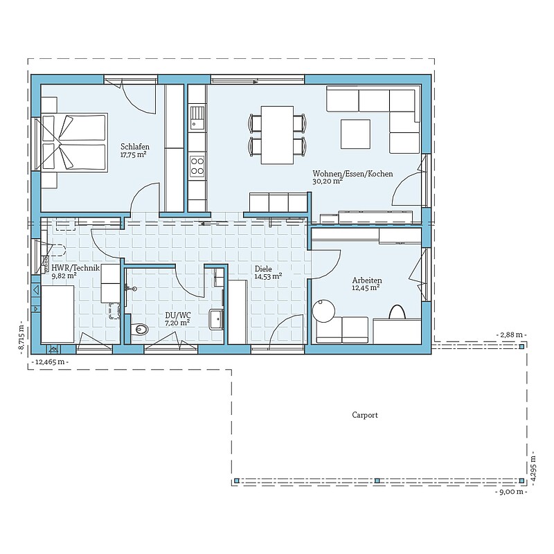
Der Bungalow eignet sich perfekt als Zuhause für ein bis zwei Personen. Er ist nach dem ready-Standard barrierefrei geplant und kann rollstuhlgerecht umgesetzt werden. Optimale Voraussetzungen dafür schaffen der offen gestaltete Wohn-, Ess- und Kochbereich, das großzügige Schlafzimmer mit viel Platz rund um das Bett sowie das Dusch-WC mit ausreichend Freiraum. Das zusätzlich eingeplante Zimmer kann ganz flexibel genutzt werden, zum Beispiel als Kinderzimmer, als Büro oder für Gäste.
| Merkmale | |
|---|---|
| Dachform | Walmdach |
| Dachneigung | 5°/13° |
| Wohnfläche | 91,95 m² |
| Grundfläche | 91,95 m² |
| Anzahl Geschosse | 1 |
Anbau
Möglichkeiten
- Carport
Beispiel
Grundrisse
Bekommen Sie durch die Grundrisse einen Eindruck von diesem Haus.
Wir zeigen Ihnen unsere Planungsvorschläge, die natürlich auf Wunsch individuell umgeplant werden können.


Fordern Sie ganz unverbindlich & kostenfrei unser Fertighaus-Katalog mit ausführlichen Hinweisen zum Unternehmen sowie alle Hausentwürfe oder Bauleistungs- und Ausstattungsbeschreibungen an. Darüber hinaus erhalten Sie in unserer Aktionsbroschüre die Preise für unsere Aktionshäuser.












