Clevere Planung für einen entspannten Alltag
So kommt man gerne nach Hause: Der Anbau mit Quergiebel ist nicht nur ein optisches Highlight des Bungalow 147, sondern dient auch als praktische Haustürüberdachung. Er erweitert den Technikraum, sodass dort Platz für Waschmaschine und Trockner sowie zusätzlicher Stauraum entsteht.
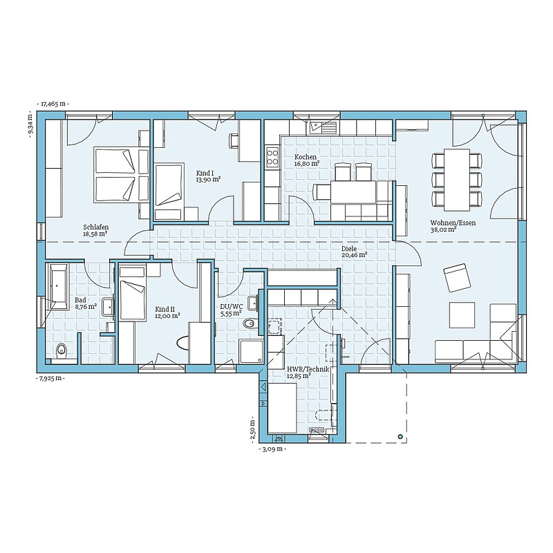
Der Hausentwurf ist optimal auf den Familienalltag zugeschnitten: Die große Küche verfügt über einen Essplatz, der sich perfekt für ein schnelles Frühstück eignet. Im offenen Wohnbereich schafft die großflächige, bodentiefe Verglasung eine besonders helle Ecke für einen weiteren Esstisch zum gemütlichen Zusammensitzen.
Damit die tägliche Badezimmerroutine entspannt abläuft, ist nahe der beiden Kinderzimmer ein Dusch-WC eingeplant. An das Schlafzimmer mit viel Schrankstellfläche schließt sich ein separates Elternbad an.
| Merkmale | |
|---|---|
| Dachform | Satteldach |
| Dachneigung | 25° |
| Wohnfläche | 146,92 m² |
| Grundfläche | 146,92 m² |
| Anzahl Geschosse | 1 |
Anbau
Möglichkeiten
- Anbau mit Quergiebel
Beispiel
Grundriss
Bekommen Sie durch die Grundrisse einen Eindruck von diesem Haus. Wir zeigen Ihnen unsere Planungsvorschläge, die natürlich auf Wunsch individuell umgeplant werden können.


Fordern Sie ganz unverbindlich & kostenfrei unser Fertighaus-Katalog mit ausführlichen Hinweisen zum Unternehmen sowie alle Hausentwürfe oder Bauleistungs- und Ausstattungsbeschreibungen an. Darüber hinaus erhalten Sie in unserer Aktionsbroschüre die Preise für unsere Aktionshäuser.












