Nach unserem flexiblen Variant zum Jahresauftakt stellen wir Ihnen aus unserem Format "Haus des Monats" ein Haus vor, das modernes Design und großzügiges Wohnen perfekt vereint.
Unser Highlight im Februar ist die Villa 178: Das Haus im Stil einer modernen Stadtvilla überzeugt mit klarer Architektur, einem eleganten Walmdach und zwei Vollgeschossen ohne Dachschräge.
Verwirklichen Sie Ihr persönliches Traumhaus
Große Fensterflächen und rund 169 m² Wohnraum machen die Villa 178 zu einem hellen, großzügigen Zuhause, das Komfort, Offenheit und flexible Raumlösungen vereint.
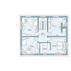
Erdgeschoss
- Heller Wohn- und Essbereich mit offener Küche
- HWR/Technik
- Büro/Gästezimmer
- Gäste-WC mit Duschmöglichkeit
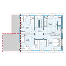
Obergeschoss
- Zwei Kinderzimmer
- Elternschlafzimmer mit Ankleide
- Modernes Bad mit Badewanne und Dusche
- Galerie
Förderung und Finanzierung
Mit der KfW-Förderung „Wohneigentum für Familien“ (WEF) haben Familien mit geringerem oder mittlerem Einkommen die Möglichkeit, zinsvergünstigte Kredite für den Hausbau zu beantragen.
Durch die vergünstigten Zinssätze können Familien beim Bau eines klimafreundlichen Hauses bis zu 42.500 Euro im Vergleich zu nicht staatlich geförderten Krediten sparen.
Wenn der Neubau zusätzlich mit dem Qualitätssiegel Nachhaltiges Gebäude (QNG) zertfiziert wird, steigt der mögliche Kreditbetrag und die Ersparnis erhöht sich auf rund 55.000 Euro.
Machen Sie einen virtuellen Rundgang durch unser Musterhaus Villa 178 im Musterhauspark Bayern.
Villa 178 in 360° ansehen
MERKMALE
| DACHFORM | Walmdach |
| DACHNEIGUNG | 25 ° |
| WOHNFLÄCHE | 169,13 m2 |
| GRUNDFLÄCHE | 176,83 m2 |
| ANZAHL GESCHOSSE | 2 |
Der Traum vom Eigenheim beginnt jetzt
Fordern Sie jetzt unverbindlich und kostenfrei alle Informationen zu Ihrem Traumhaus inklusive Grundrissen und Preisen an. Füllen Sie einfach das Formular aus und entdecken Sie Ihr zukünftiges Zuhause!










