Nach unserer stilvollen Villa 174 im Dezember freuen wir uns, Ihnen zum Jahresbeginn ein weiteres Highlight aus unserem neuen Format "Haus des Monats" vorzustellen.
Unser Highlight im Januar ist das Variant 35-160: Das Haus verbindet moderne Architektur mit maximaler Flexibilität, indem es über zwei Planungsvarianten im Erdgeschoss verfügt.
Verwirklichen Sie Ihr persönliches Traumhaus
Der Clou beim Grundrissentwurf des Variant 35-160 ist seine große Flexibilität.
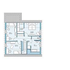
Erdgeschoss
- Heller Wohn- und Essbereich mit offener Küche
- Büro/Gästezimmer
- HWR/Technik
- Gäste-WC mit Duschmöglichkeit
Dachgeschoss
- Zwei Kinderzimmer
- Elternschlafzimmer mit Ankleide
- Modernes Bad mit Badewanne und Dusche
Weitere Planungsoptionen
Hier wurde das Haus um eine Garage und einen Haustechnikraum erweitert. Diese Planung können Sie als Musterhaus am Hanse Haus-Firmensitz in Oberleichtersbach besichtigen.
Der ausgelagerte Technikraum schafft im Haus Platz für ein größeres Arbeitszimmer. Die Garage ist direkt an den Technikraum angegliedert. Durch das Dach vor dem Technikraum und die Nebeneingangstür ergibt sich ein überdachter „Wirtschaftshof“.
Eigenleistung oder einzugsbereit
Der Preis für Ihr Variant 38-139 aus der QNG+-Line ist abhängig davon, für welche Ausbaustufe und welche Planungs- und Ausstattungsoptionen Sie sich entscheiden:
Ausbauhaus – ab 316.078 €
Ideal für Bauherren, die mit Eigenleistungen bares Geld sparen möchten und dennoch auf die bewährte Hanse Haus Qualität setzen. Fundierte handwerkliche Erfahrung der Bauherren ist aber notwendige Voraussetzung, um aus dem Ausbauhaus ein Wohlfühl-Zuhause zu schaffen.
Technikfertig – ab 375.393 €
Zusätzlich zu den beim Ausbauhaus erfolgten Leistungen wird der Estrich, die Elektro-, Wasser-/Abwasser- und Heizungsinstallation von Hanse Haus ausgeführt. Das Verfliesen der Bäder und die Montage der Sanitärobjekte sind noch nicht erfolgt.
Fast fertig – ab 400.515 €
Alle Gewerke wie beim Ausbauhaus und beim technikfertigen Haus sind erledigt. Zusätzlich sind bereits die Bäder inklusive Sanitärobjekten, Wand- und Bodenfliesen fertig. Nur Maler-/Spachtelarbeiten, Bodenbeläge und Innentüren sind beim fast fertigen Haus von Hanse Haus Eigenleistung.
Schlüsselfertig – ab 445.070 €
Komplett nach Ihren Wünschen einzugsbereit fertiggestellt. Nach der Schlüsselübergabe fehlen nur noch die passende Küche und Ihre individuelle Hauseinrichtung.
Förderung und Finanzierung
Mit der KfW-Förderung „Wohneigentum für Familien“ (WEF) haben Familien mit geringerem oder mittlerem Einkommen die Möglichkeit, zinsvergünstigte Kredite für den Hausbau zu beantragen.
Durch die vergünstigten Zinssätze können Familien beim Bau eines klimafreundlichen Hauses bis zu 42.500 Euro im Vergleich zu nicht staatlich geförderten Krediten sparen.
Wenn der Neubau zusätzlich mit dem Qualitätssiegel Nachhaltiges Gebäude (QNG) zertfiziert wird, steigt der mögliche Kreditbetrag und die Ersparnis erhöht sich auf rund 55.000 Euro.
MERKMALE
| DACHFORM | Satteldach |
| DACHNEIGUNG | 35 ° |
| KNIESTOCK | 120 cm |
| WOHNFLÄCHE | 143,89 m2 |
| GRUNDFLÄCHE | 160,22 m2 |
| ANZAHL GESCHOSSE | 1,5 |
Der Traum vom Eigenheim beginnt jetzt
Fordern Sie jetzt unverbindlich und kostenfrei alle Informationen zu Ihrem Traumhaus inklusive Grundrissen und Preisen an. Füllen Sie einfach das Formular aus und entdecken Sie Ihr zukünftiges Zuhause!








