Nach unserem Bungalow 127 im März präsentieren wir Ihnen im April aus unserem Format "Haus des Monats" ein Zuhause, das urbanes Wohnen und klare Architektur vereint.
Unser Highlight im April ist das Doppelhaus 144: Auf rund 137 m² schafft die kubische Architektur mit Flachdach und großzügigen Fensterflächen eine helle, offene Wohnatmosphäre.
Verwirklichen Sie Ihr persönliches Traumhaus
Klare Architektur, große Glasflächen und ein offener Grundriss sorgen für viel Licht und Raumgefühl – optional erweiterbar um ein zweites Obergeschoss mit Dachterrasse und Studio.
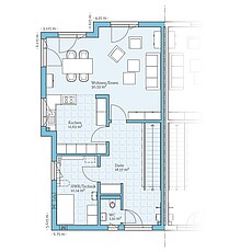
Erdgeschoss
- Heller Wohn- und Essbereich mit offener Küche
- HWR/Technik
- Gäste-WC
- Diele
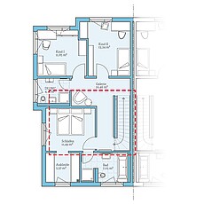
Obergeschoss
- Zwei Kinderzimmer
- Elternschlafzimmer mit Ankleide
- WC mit Duschmöglichkeit
- Modernes Bad mit Badewanne und Dusche
- Galerie
Förderung und Finanzierung
Mit der KfW-Förderung „Wohneigentum für Familien“ (WEF) haben Familien mit geringerem oder mittlerem Einkommen die Möglichkeit, zinsvergünstigte Kredite für den Hausbau zu beantragen.
Durch die vergünstigten Zinssätze können Familien beim Bau eines klimafreundlichen Hauses bis zu 42.500 Euro im Vergleich zu nicht staatlich geförderten Krediten sparen.
Wenn der Neubau zusätzlich mit dem Qualitätssiegel Nachhaltiges Gebäude (QNG) zertfiziert wird, steigt der mögliche Kreditbetrag und die Ersparnis erhöht sich auf rund 55.000 Euro.
MERKMALE
| DACHFORM | Flachdach |
| DACHNEIGUNG | 2 ° |
| WOHNFLÄCHE | 136,92 m2 |
| GRUNDFLÄCHE | 142,70 m2 |
| ANZAHL GESCHOSSE | 2 |
Der Traum vom Eigenheim beginnt jetzt
Fordern Sie jetzt unverbindlich und kostenfrei alle Informationen zu Ihrem Traumhaus inklusive Grundrissen und Preisen an. Füllen Sie einfach das Formular aus und entdecken Sie Ihr zukünftiges Zuhause!









