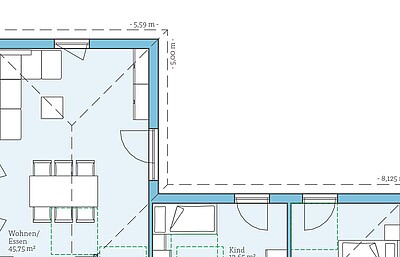
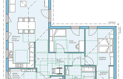
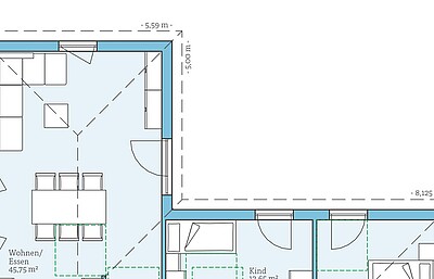
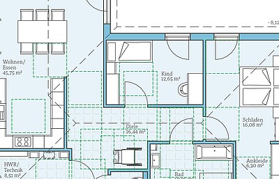
Bungalow 118 Barrierefrei
Ausbaustufe

Bei unserer QNG+-Line können Sie zwischen unterschiedlichen Ausbaustufen wählen. Definieren Sie selbst, welche Leistungen Hanse Haus übernehmen soll und welche Arbeiten Sie in Eigenleistung erbringen möchten.
Bungalow 118 Barrierefrei
Wände

Wenn Sie die Maler- und Spachtelarbeiten in Ihrem Fertighaus selbst übernehmen möchten, haben Sie mit dem Materialpaket Wände die Möglichkeit, das benötigte Material in den passenden Mengen ganz bequem zu Ihrem Grundstück liefern zu lassen.
- Materialpaket WändeWir möchten das notwendige Material (ohne Werkzeug) für bauseitige Spachtel-, Schleif-, Streich- und Tapezierarbeiten im Erd- und Dachgeschoss von Hanse Haus beziehen.
NUR LIEFERUNG (ohne Lohn)3.600 €3.600 € - Kein Material benötigtWir besorgen das Material für den Ausbau (Wände) selbst.
Bitte beachten Sie: Hierdurch ist keine QNG-Zertifizierung möglich!
Bungalow 118 Barrierefrei
Böden

Das Materialpaket Bodenbeläge enthält die Bodenbeläge für Ihr Haus, die Sie bei der Bemusterung ausgewählt haben, und zusätzlich das Material, das Sie zum Verlegen benötigen.
- Materialpaket BodenbelägeWir möchten das notwendige Material (ohne Werkzeug) für den bauseitigen Bodenbelag von Hanse Haus beziehen.
NUR LIEFERUNG (ohne Lohn)6.700 €6.700 € - Keine BodenbelägeWir besorgen Bodenbeläge und Zubehör selbst.
Bitte beachten Sie: Hierdurch ist keine QNG-Zertifizierung möglich!
Bungalow 118 Barrierefrei
Türen

Auch Ihre in der Bemusterung ausgewählten Innentüren bringen wir Ihnen gerne vorbei – zusammen mit dem benötigten Material für den Einbau.
- Materialpaket TürenWir möchten das notwendige Material (ohne Werkzeug) für die bauseitigen Innentüren von Hanse Haus beziehen.
NUR LIEFERUNG (ohne Lohn)1.710 €1.710 € - Keine TürenWir besorgen unsere Türen und das Zubehör selbst.
Bitte beachten Sie: Für eine QNG-Zertifizierung (und somit die höchstmögliche Fördersumme) sind alle drei Materialpakete notwendig!
Bungalow 118 Barrierefrei
Dachform

Walmdach oder Satteldach? Bei unseren Bungalows aus der QNG+-Line können Sie aus diesen beiden Dachformen Ihren Favoriten wählen.
Bungalow 118 Barrierefrei
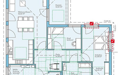
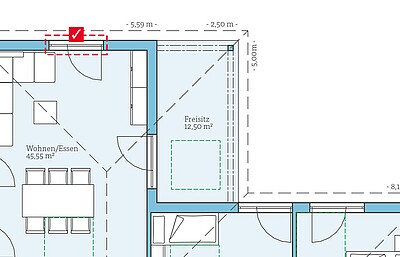
Freisitz (V1)
Erweitern Sie Ihren Bungalow 118 um einen Freisitz – ideal für entspannte Stunden in der Natur, direkt bei Ihnen zu Hause.
-
StandardoptionWir entscheiden uns für die Standard-Grundrissoption ohne Freisitz. -
Freisitz (Walmdach)Wir wollen einen überdachten Freisitz angrenzend an unseren Wohn- und Essbereich.10.287 €10.287 €
Bungalow 118 Barrierefrei
Freisitz (V2)
Erweitern Sie Ihren Bungalow 118 um einen Freisitz – ideal für entspannte Stunden in der Natur, direkt bei Ihnen zu Hause.
-
StandardoptionWir entscheiden uns für die Standard-Grundrissoption ohne Freisitz. -
FreisitzWir entscheiden uns für einen überdachten Freisitz angrenzend an unseren Wohn- und Essbereich.11.312 €11.312 €
Bungalow 118 Barrierefrei
Nachhaltigkeit (V1)
Die Häuser aus unserer QNG+-Line können mit einer Photovoltaik-Anlage und einer Dämmung unterhalb der Fundamentplatte geplant werden. Diese Maßnahmen sorgen nicht nur für eine günstige, nachhaltige und umweltfreundliche Energieversorgung, sondern ermöglicht auch die QNG-Zertifizierung Ihres Hauses. Um von der höchsten Förderstufe der KfW-Neubauförderung zu profitieren, wird diese Zertifizierung benötigt.
- QNG-FörderpaketWir möchten ein Förderpaket, das alles beinhaltet, was für eine QNG-Zertifizierung und somit für die höchste Förderkreditsumme notwendig ist:
1. "Qualitätssiegel Nachhaltiges Gebäude (QNG)"
2. PV-Anlage mit 7,36 KWp und 6,3 kWh Batterie
3. Dämmung 140 mm unter der Fundamentplatte28.903 €28.903 € - PV-AnlageWir möchten eine PV-Anlage mit Speicher bestehend aus:
1. 7,36 KWp Photovoltaik-Anlage
2. 6,3 kWh Batteriesystem
ohne zusätzliche Dämmung unter der Fundamentplatte und keine QNG-Zertifizierung15.750 €15.750 € - StandardausführungWir benötigen keine PV-Anlage, keine zusätzliche Dämmung und keine QNG-Zertifizierung.
Bitte beachten: Dadurch ist es nicht möglich ein Energieeffizienzhaus 40 zu bauen und Sie können nicht von der höchsten Förderstufe der KfW-Neubauförderung profitieren.
Bungalow 118 Barrierefrei
Nachhaltigkeit (V1 + Freisitz)

Die Häuser aus unserer QNG+-Line können mit einer Photovoltaik-Anlage und einer Dämmung unterhalb der Fundamentplatte geplant werden. Diese Maßnahmen sorgen nicht nur für eine günstige, nachhaltige und umweltfreundliche Energieversorgung, sondern ermöglicht auch die QNG-Zertifizierung Ihres Hauses. Um von der höchsten Förderstufe der KfW-Neubauförderung zu profitieren, wird diese Zertifizierung benötigt.
- QNG-FörderpaketWir möchten ein Förderpaket, das alles beinhaltet, was für eine QNG-Zertifizierung und somit für die höchste Förderkreditsumme notwendig ist:
1. "Qualitätssiegel Nachhaltiges Gebäude (QNG)"
2. PV-Anlage mit 6,9 KWp und 6,5 kWh Batterie
3. Dämmung 140 mm unter der Fundamentplatte28.573 €28.573 € - PV-AnlageWir möchten eine PV-Anlage mit Speicher bestehend aus:
1. 6,9 KWp Photovoltaik-Anlage
2. 6,5 kWh Batteriesystem
ohne zusätzliche Dämmung unter der Fundamentplatte und keine QNG-Zertifizierung15.420 €15.420 € - StandardausführungWir benötigen keine PV-Anlage, keine zusätzliche Dämmung und keine QNG-Zertifizierung.
Bitte beachten: Dadurch ist es nicht möglich ein Energieeffizienzhaus 40 zu bauen und Sie können nicht von der höchsten Förderstufe der KfW-Neubauförderung profitieren.
Bungalow 118 Barrierefrei
Nachhaltigkeit (V2)

Die Häuser aus unserer QNG+-Line können mit einer Photovoltaik-Anlage und einer Dämmung unterhalb der Fundamentplatte geplant werden. Diese Maßnahmen sorgen nicht nur für eine günstige, nachhaltige und umweltfreundliche Energieversorgung, sondern ermöglicht auch die QNG-Zertifizierung Ihres Hauses. Um von der höchsten Förderstufe der KfW-Neubauförderung zu profitieren, wird diese Zertifizierung benötigt.
- QNG-FörderpaketWir möchten ein Förderpaket, das alles beinhaltet, was für eine QNG-Zertifizierung und somit für die höchste Förderkreditsumme notwendig ist:
1. "Qualitätssiegel Nachhaltiges Gebäude (QNG)"
2. PV-Anlage mit 7,36 KWp und 6,3 kWh Batterie
3. Dämmung 140 mm unter der Fundamentplatte28.903 €28.903 € - PV-AnlageWir möchten eine PV-Anlage mit Speicher bestehend aus:
1. 7,36 KWp Photovoltaik-Anlage
2. 6,3 kWh Batteriesystem
ohne zusätzliche Dämmung unter der Fundamentplatte und keine QNG-Zertifizierung15.750 €15.750 € - StandardausführungWir benötigen keine PV-Anlage, keine zusätzliche Dämmung und keine QNG-Zertifizierung.
Bitte beachten: Dadurch ist es nicht möglich ein Energieeffizienzhaus 40 zu bauen und Sie können nicht von der höchsten Förderstufe der KfW-Neubauförderung profitieren.
Bungalow 118 Barrierefrei
Dämmung unterhalb der Fundamentplatte (V1)

Die Effizienzhaus-Stufe ist ein Maßstab für die Energieeffizienz von Wohnhäusern, die am Gesamtenergiebedarf und an der Wärmedämmung festgemacht wird. Die Effizienzhaus-Stufe 40 ist Voraussetzung für die Neubauförderung der KfW.
- Energieeffizienzhaus 40Wir möchten eine 140 mm Dämmung unter der Fundamentplatte zur Erfüllung der Vorgaben eines Energieeffizienzhauses 40 oder höher.10.153 €10.153 €
- Standard-BodenplatteWir möchten ein Haus auf einer Fundamentplatte errichten, um die Werte eines Energieeffizienzhaus 55 zu erreichen.
Bungalow 118 Barrierefrei
Dämmung unterhalb der Fundamentplatte (V1 + Freisitz)

Die Effizienzhaus-Stufe ist ein Maßstab für die Energieeffizienz von Wohnhäusern, die am Gesamtenergiebedarf und an der Wärmedämmung festgemacht wird. Die Effizienzhaus-Stufe 40 ist Voraussetzung für die Neubauförderung der KfW.
- EnergieeffizienzhausWir möchten eine 140 mm Dämmung unter der Fundamentplatte zur Erfüllung der Vorgaben eines Energieeffizienzhauses 40 oder höher.10.153 €10.153 €
- Standard-BodenplatteWir möchten ein Haus auf einer Fundamentplatte errichten, um die Werte eines Energieeffizienzhaus 55 zu erreichen.
Bungalow 118 Barrierefrei
Dämmung unterhalb der Fundamentplatte (V2)

Die Effizienzhaus-Stufe ist ein Maßstab für die Energieeffizienz von Wohnhäusern, die am Gesamtenergiebedarf und an der Wärmedämmung festgemacht wird. Die Effizienzhaus-Stufe 40 ist Voraussetzung für die Neubauförderung der KfW.
Bungalow 118 Barrierefrei
Dachanpassungen

Um Ihr Bungalow 118 ganz nach Ihren Vorstellungen zu gestalten, haben Sie die Möglichkeit Sonderdacheindeckungen zu wählen. Die Bilder dienen der Veranschaulichung.
-
Standarddach & DacheindeckungWir wählen die Standard-Dacheindeckung mit hochwertigen Betondachsteinen in verschiedenen Farben nach Muster und den standardmäßigen Dachüberstand. -
SonderdacheindeckungWir entscheiden uns für die Sonderdacheindeckung (Aktion) mit Taunus Pfanne Star matt statt der Standard-Dacheindeckung.400 €400 €
Bungalow 118 Barrierefrei
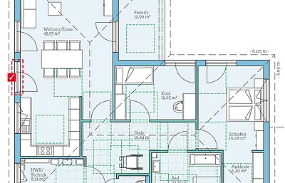
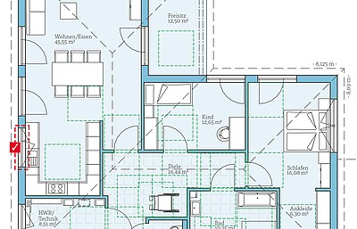
Fensteroptionen im Wohn-Ess-Kochbereich
Praktische Grundrisse und eine helle, freundliche Wohnatmosphäre – das ist unsere QNG+-Line. Wer noch mehr Sonne ins Haus lassen möchte, kann optional zusätzliche oder größere Fenster einplanen.
-
Keine AnpassungenWir behalten die Anzahl und die Größe der Fenster bei, die im Standard-Grundriss eingeplant sind. -
Grösseres Fenster in der KücheWir möchten das im Standard-Grundriss eingeplante Fenster in der Küche vergrößern.827 €827 € -
Grösseres Fenster im Essbereich (1/2)Wir möchten das im Standard-Grundriss eingeplante Fenster im Essbereich vergrößern.827 €827 € -
Terrassentüre anstelle eines Fensters im Essbereich (1/2)Wir möchten das im Standard-Grundriss eingeplante Fenster im Essbereich durch eine Terrassentür ersetzten.1.280 €1.280 € -
Grösseres Fenster im Essbereich (2/2)Wir möchten das im Standard-Grundriss eingeplante Fenster im Essbereich vergrößern.827 €827 € -
Terrassentüre anstelle eines Fensters im Essbereich (2/2)Wir möchten das im Standard-Grundriss eingeplante Fenster im Essbereich durch eine Terrassentür ersetzten.1.280 €1.280 € -
Grösseres Fenster im WohnbereichWir möchten das im Standard-Grundriss eingeplante Fenster im Wohnbereich vergrößern.827 €827 € -
Terrassentüre anstelle eines Fensters im WohnbereichWir möchten das im Standard-Grundriss eingeplante Fenster im Wohnbereich durch eine Terrassentür ersetzten.1.280 €1.280 €
Bungalow 118 Barrierefrei
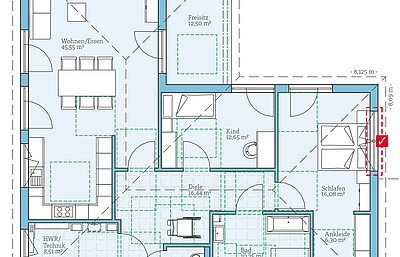
Fensteroptionen im Schlafzimmer
Praktische Grundrisse und eine helle, freundliche Wohnatmosphäre – das ist unsere QNG+-Line. Wer noch mehr Sonne ins Haus lassen möchte, kann optional zusätzliche oder größere Fenster einplanen.
-
Keine Anpassungen im SchlafzimmerWir behalten die Anzahl und die Größe der Fenster bei, die im Standard-Grundriss eingeplant sind. -
Grösseres Fenster statt Terrassentür im SchlafzimmerWir möchten die im Standard-Grundriss eingeplante Terrassentür im Schlafzimmer durch ein größeres Fenster austauschen.333 €333 € -
Grössere Terrassentür im SchlafzimmerWir möchten die im Standard-Grundriss eingeplante Terrassentür im Schlafzimmer vergrößern.709 €709 € -
Zusätzliches Fenster im SchlafzimmerWir entschieden uns für ein zusätzliches Fenster im Schlafzimmer.2.694 €2.694 € -
Größeres Fenster + zusätzliches Fenster im SchlafzimmerWir möchten die im Standard-Grundriss eingeplante Terrassentür im Schlafzimmer durch ein größeres Fenster austauschen und ein zusätzliches Fenster.3.027 €3.027 € -
Größere Terrassentür + zusätzliches Fenster im SchlafzimmerWir möchten die im Standard-Grundriss eingeplante Terrassentür im Schlafzimmer vergrößern und ein zusätzliches Fenster.3.403 €3.403 €
Bungalow 118 Barrierefrei
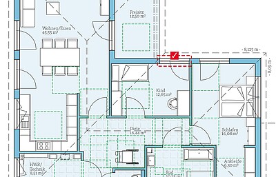
Fensteroptionen im Kinderzimmer
Praktische Grundrisse und eine helle, freundliche Wohnatmosphäre – das ist unsere QNG+-Line. Wer noch mehr Sonne ins Haus lassen möchte, kann optional zusätzliche oder größere Fenster einplanen.
-
Keine Anpassung im KinderzimmerWir behalten die Anzahl und die Größe der Fenster bei, die im Standard-Grundriss eingeplant sind. -
Grössere Terrassentür im KinderzimmerWir möchten die im Standard-Grundriss eingeplante Terrassentür im Kinderzimmer vergrößern.709 €709 €
Bungalow 118 Barrierefrei
Küche

Sie möchten beim Hausbau so viel wie möglich aus einer Hand? Dann kümmern wir uns gerne auch um Ihre Küche.
-
Keine Küche benötigtWir besorgen unsere Küche selbst. -
Küche gemäß BeschreibungWir möchten eine Küchenzeile mit:
- einer Länge von 4,25 m
- einer Kochinsel B 1,85 × T 1,10 m
- 43 Fronten (matt/glänzend) zur Auswahl
- Markenelektrogeräten von Bosch
LIEFERUNG & MONTAGE13.500 €13.500 €
Bungalow 118 Barrierefrei
Smarthome

Optional können Sie Ihr Fertighaus mit einem Smarthome-System von Loxone ausstatten. So sorgen Sie für noch mehr Wohnkomfort, Sicherheit und eine besonders effiziente Energienutzung in Ihrem Haus. Die Bilder dienen der Veranschaulichung.
Bereits im Standard sind im Erdgeschoss zehn elektronische Rolladenantriebe mit je einer Schaltersteuerung enthalten.
-
Loxone Paket: Rollladen/RaffstoreWir wählen das Loxone-Paket, mit dem sich Rollläden/Raffstores intelligent steuern lassen.5.941 €5.941 € -
Loxone Paket: Rollladen/Raffstore + Heizung, LichtWir wählen das Loxone-Paket, mit dem sich neben Rollläden/Raffstores auch Heizung und Licht intelligent steuern lassen.13.298 €13.298 € -
Kein SmarthomeWir haben kein Interesse an einem Smarthome-Paket und entscheiden uns für die Standard-Ausstattung wie oben beschrieben.
Bungalow 118 Barrierefrei
Sicherheitspakete

Zuhause möchte man sich rundum sicher fühlen. Deshalb werden für unsere Fenster und Terrassentüren standardmäßig einbruchhemmende Bauteile nach DIN EN 1627 eingesetzt, die alle mindestens die Widerstandsklasse RC1N besitzen, die Terrassentüren im EG sogar RC2.
Optional können Sie sich bei Fenstern, Hebe-Schiebetüren und Terrassentüren (OG) auch für einen noch stärkeren Einbruchschutz nach der Widerstandsklasse RC2 nach DIN EN 1627-1630 (Sicherheitsglas P4A mit Flügelrahmen verklebt, mit abschließbarer Griffolive) entscheiden.
-
Standard-Fenster und -TürenWir möchten Standard-Fenster und -Türen wie oben beschrieben einplanen. -
RC2 für FensterWir entscheiden uns bei den Fenstern im Erdgeschoss für die Widerstandsklasse R2C.1.536 €1.536 €
Bungalow 118 Barrierefrei
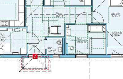
Hauseingangsbereich (V1)

Wie wäre es mit einem Haustürvordach für Ihr Fertighaus? Es schützt den Hauseingang vor Regen, während es gleichzeitig zu einem optischen Highlight wird. Die Bilder dienen der Veranschaulichung.
-
Keine Anpassungen im EingangsbereichWir möchten den Hauseingang ohne Haustürvordach und ohne den integrierten Briefkasten wie im Standard planen. -
HaustürvordachWir möchten ein Haustürvordach, 2,70 m x 1,15 m mit Satteldach.7.489 €7.489 €
Bungalow 118 Barrierefrei
Hauseingangsbereich (V2)
Wie wäre es mit einem Haustürvordach für Ihr Fertighaus? Es schützt den Hauseingang vor Regen, während es gleichzeitig zu einem optischen Highlight wird. Die Bilder dienen der Veranschaulichung.
- Keine Anpassungen im EingangsbereichWir möchten den Hauseingang ohne Haustürvordach und ohne den integrierten Briefkasten wie im Standard planen.
-
HaustürvordachWir möchten ein Haustürvordach, 2,70 m x 1,15 m mit Satteldach.6.979 €6.979 €