
| Merkmale | |
|---|---|
| Dachform | Satteldach |
| Dachneigung | 30° |
| Kniestock | 200 cm |
| Wohnfläche | 131,40 m² |
| Grundfläche | 141,00 m² |
| Anzahl Geschosse | 1,5 |
Das QNG⁺‑Line Variant 30‑141 bietet auf rund 132 m² Wohnfläche eine moderne Architektur, viel Tageslicht und eine durchdachte Raumaufteilung – ideal für Familien mit zwei Kindern. Im Erdgeschoss überzeugt der offene Wohn‑, Ess‑ und Kochbereich mit direktem Gartenzugang, ergänzt durch ein Gäste-/Arbeitszimmer, einen Technikraum und eine halbgewendelte Treppe.
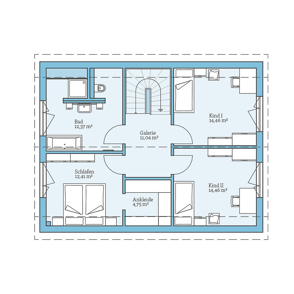
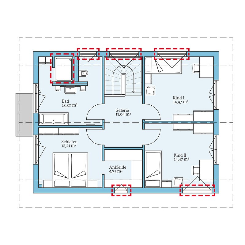
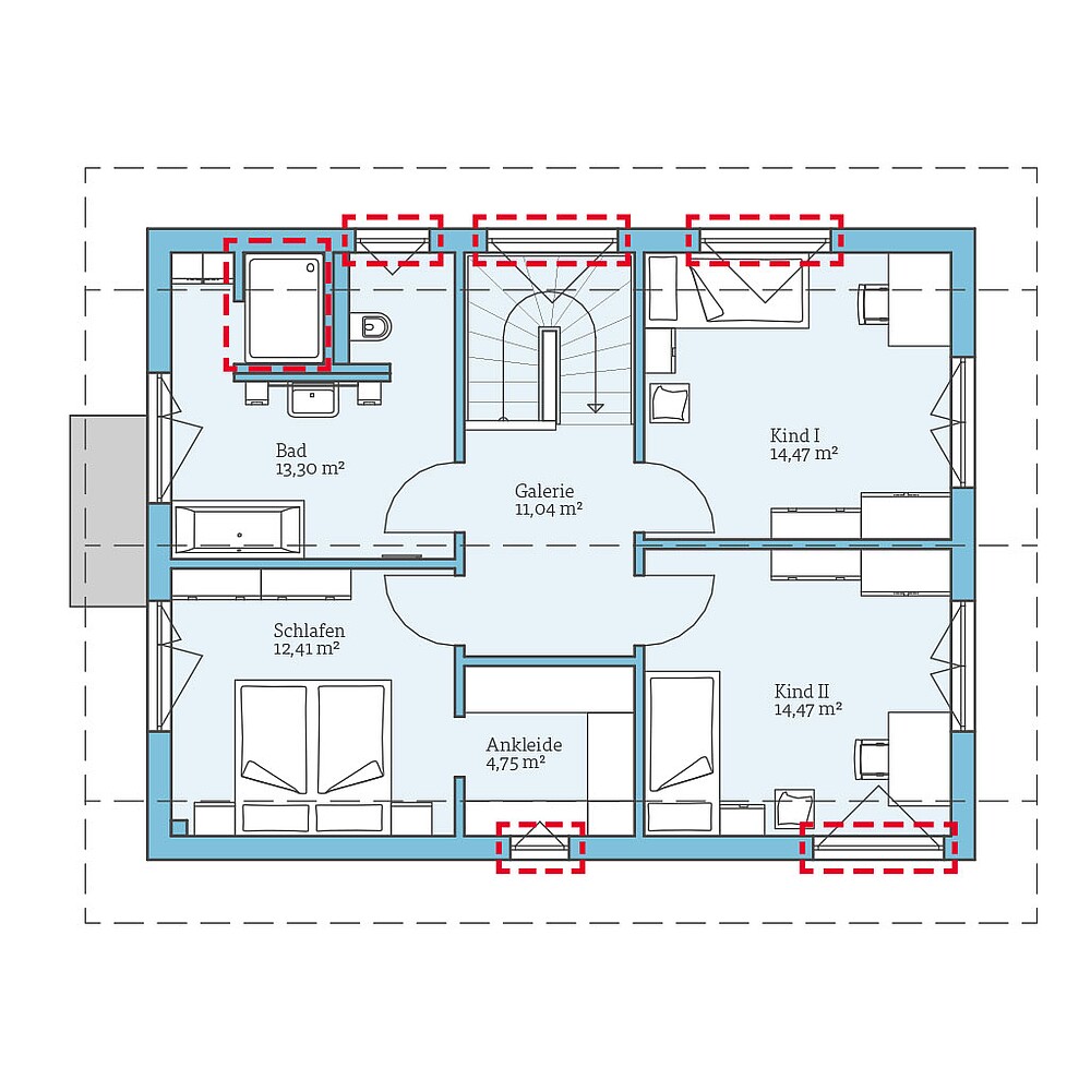
Das Dachgeschoss umfasst zwei gleich große Kinderzimmer, ein Elternschlafzimmer mit Ankleide, ein Familienbad und eine großzügige Galerie.
Hinweis: Bitte beachten Sie, dass die Informationen und Preise in unserem Konfigurator nur für einen Bauort in Deutschland gültig sind.
Grundrisse
Im Dachgeschoss unter dem Satteldach mit 30° Dachneigung und einem Kniestock von 200 cm findet jedes Familienmitglied seinen Rückzugsort.
Erdgeschoss
- Großzügiger Wohn-, Ess- und Kochbereich mit Zugang zum Garten
- Büro/Gästezimmer
- Gäste-WC (optional mit Duschmöglichkeit)
- Abstellraum unter der Treppe
Dachgeschoss
- Zwei Kinderzimmer
- Elternschlafzimmer mit Ankleide
- Modernes Familienbad mit Badewanne und Dusche (optional mit größerer Dusche)
HINWEIS: Unveränderbarer Grundriss, Ansichten, Dachform
Dem Auftraggeber / der Auftraggeberin („Bauherren“) ist bewusst, dass der vereinbarte Festpreis nur gewährleistet werden kann, wenn an dem Bauvorhaben keine konstruktiven Veränderungen mehr erfolgen. Das Haus wird vom Auftraggeber ( Auftraggeberin) hinsichtlich der Anordnung der Wände, der Abmessungen, der Raumaufteilung, Treppengestaltung, Anordnung der Fenster und Türen, Dachform so gewünscht, wie es hier abgebildet ist. Änderungen haben zur Folge, dass neben einer reinen Änderung von Massen und Arbeitsstunden zur Herstellung ggf. der Bauantrag, der Wärmeschutznachweis, die Statik, die Produktionspläne sowie Bestellmengen überarbeitet werden müssen. Dies hat zur Folge, dass neben den Änderungen von Massen und Arbeitszeiten zusätzlich ca. 10 % Preiserhöhung entstehen, die durch den Verlust der Vorteile einer Serienfertigung bedingt sind. Die Ausstattung, die im Rahmen der Bemusterung erfolgt, ist von dieser Einschränkung nicht betroffen.




