Viel Raum für Familienleben und gemeinsame Momente
Mit ca. 151 m² Wohnfläche pro Haushälfte bietet das QNG⁺-Line Doppelhaus 179 großzügige Raumverhältnisse – ideal für die Vermietung an Familien mit gehobenem Anspruch oder zur Kombination von Wohnen und Arbeiten.
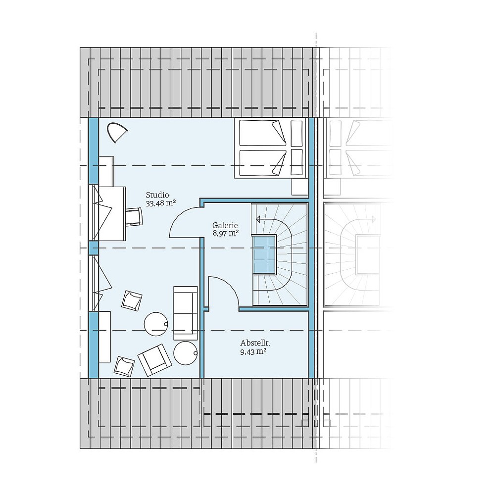
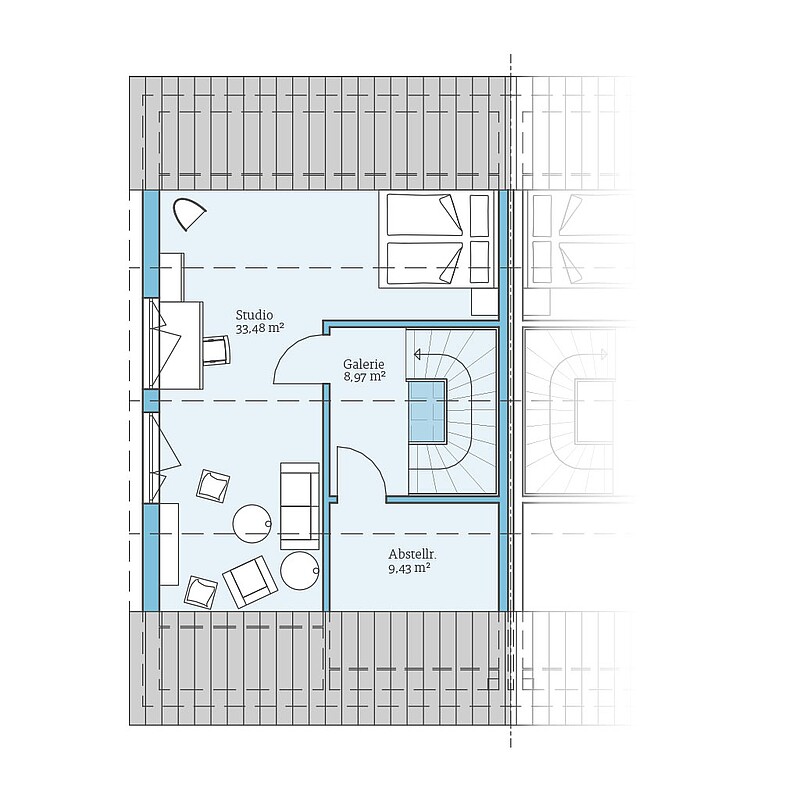
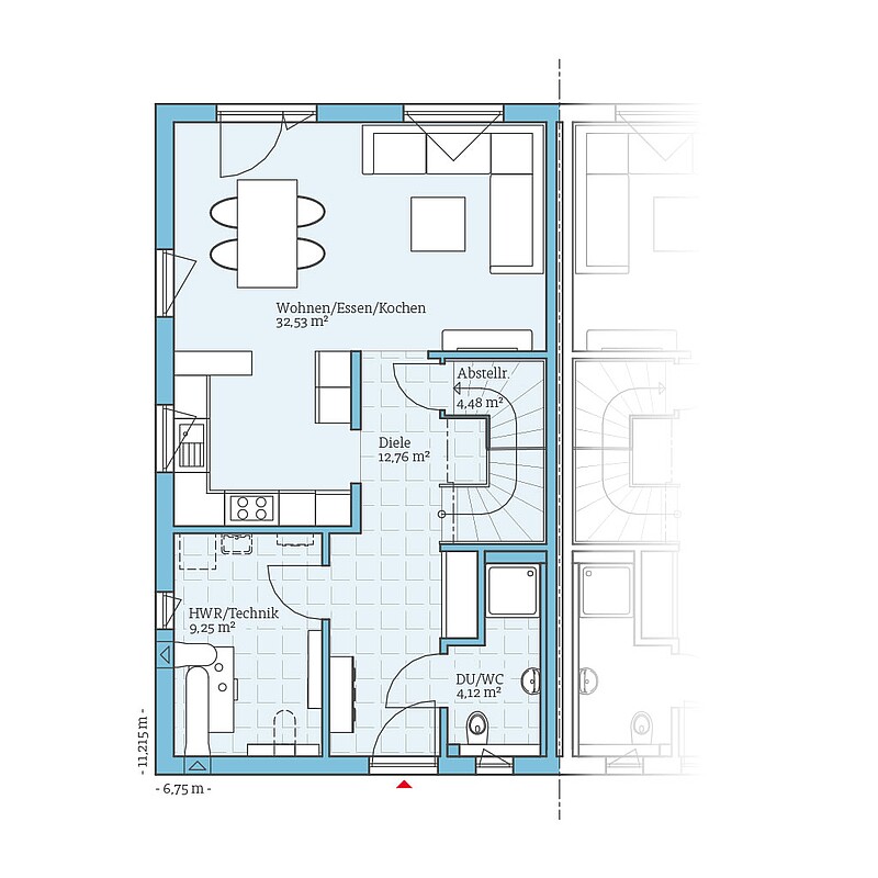
Zwei helle Vollgeschosse und ein ca. 33 m² großes Studio im Dachgeschoss schaffen vielseitige Nutzungsmöglichkeiten – z. B. als Home Office, Gäste- oder Hobbybereich. Ein zusätzlicher Abstellraum sowie ein optionales Duschbad im Erdgeschoss erhöhen den Wohnkomfort.
PV-Anlage, QNG-Zertifikat und zusätzliche Dämmung sorgen für niedrige Betriebskosten und hohe Energieeffizienz – eine nachhaltige Lösung mit langfristigem Vermietungspotenzial.
Hinweis:
Abbildungen und Grundrisse enthalten Sonderausstattungen und Anbauten, die nicht im Grundpreis enthalten sind.
| Merkmale | |
|---|---|
| Dachform | Satteldach |
| Dachneigung | 35° |
| Kniestock | 24 cm |
| Wohnfläche je Einheit | 151,14 m² |
| Grundfläche je Einheit | 176,92 m² |
| Anzahl Geschosse | 2,5 |
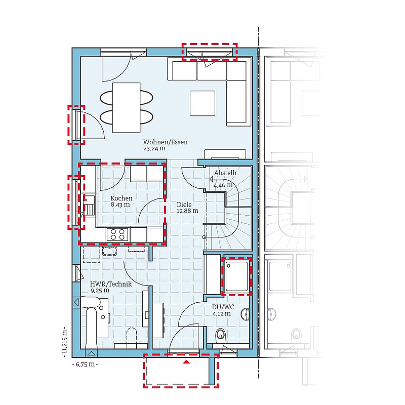
Ihr Plus an Komfort
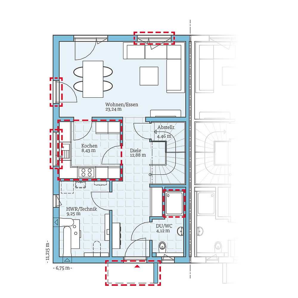
Serielle Fertigung mit Flexibilität – auch ohne individuelle Planung stehen Ihnen bei unseren Häusern aus der QNG+-Line einige Planungsoptionen offen:
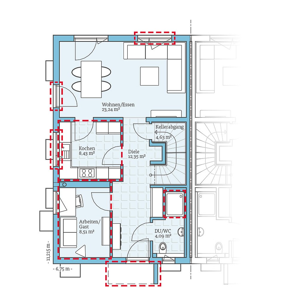
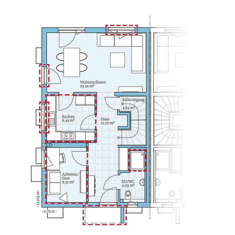
Erdgeschoss
- Größere Fenster im Wohn-, Ess- und Kochbereich
- Terrassentür statt Fenster im Wohn-, Ess- und Kochbereich
- Küche geschlossen
- Größere Dusche im Badezimmer
- Haustürvordach
- Mit Keller: Gäste- oder Arbeitszimmer statt Hauswirtschafts- und Technikraum
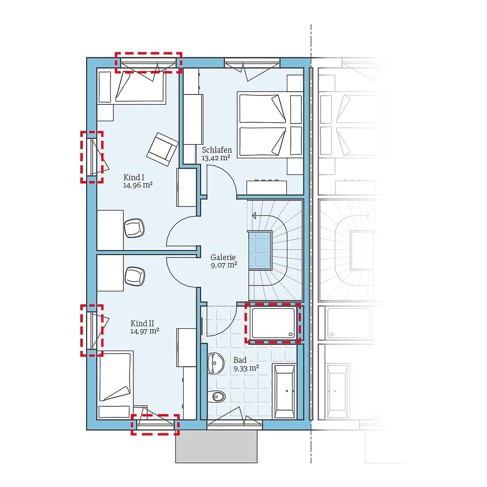
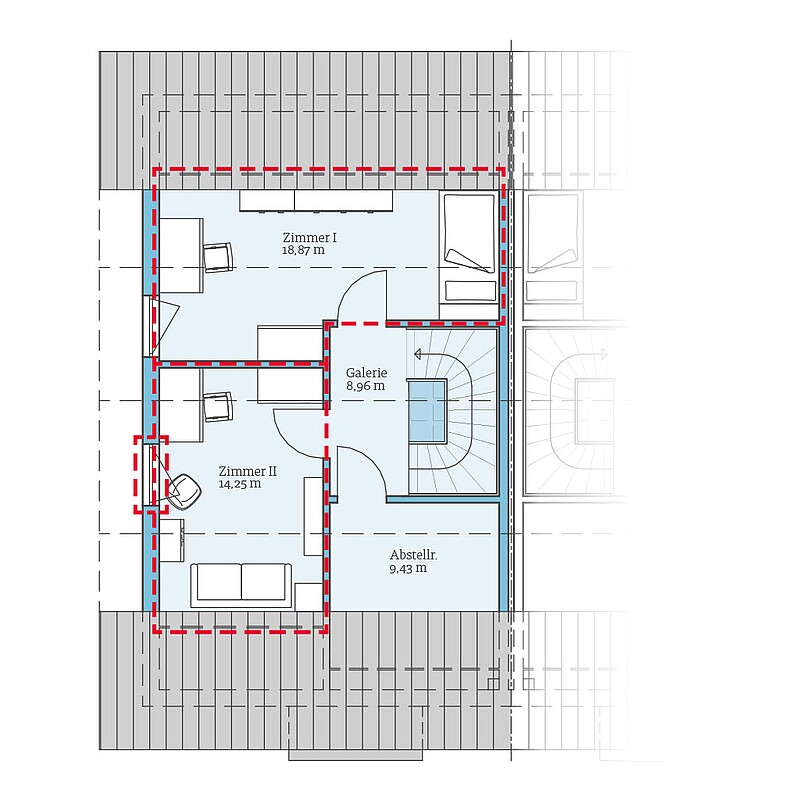
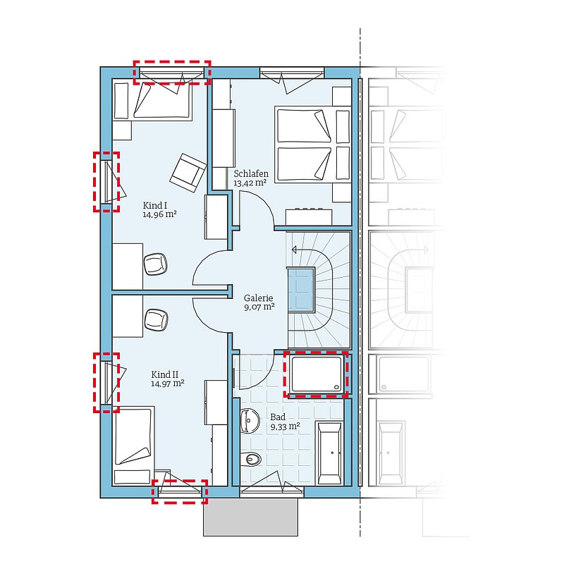
Obergeschoss
- Größere Dusche im Badezimmer
- Bodentiefe Fenster statt Fenster in den Kinderzimmern
- Zusätzliche Fenster in den Kinderzimmern
Dachgeschoss
- Bodentiefe Fenster statt Fenster im Studio
- Zwei Zimmer statt Studio
- Größerer Dachüberstand
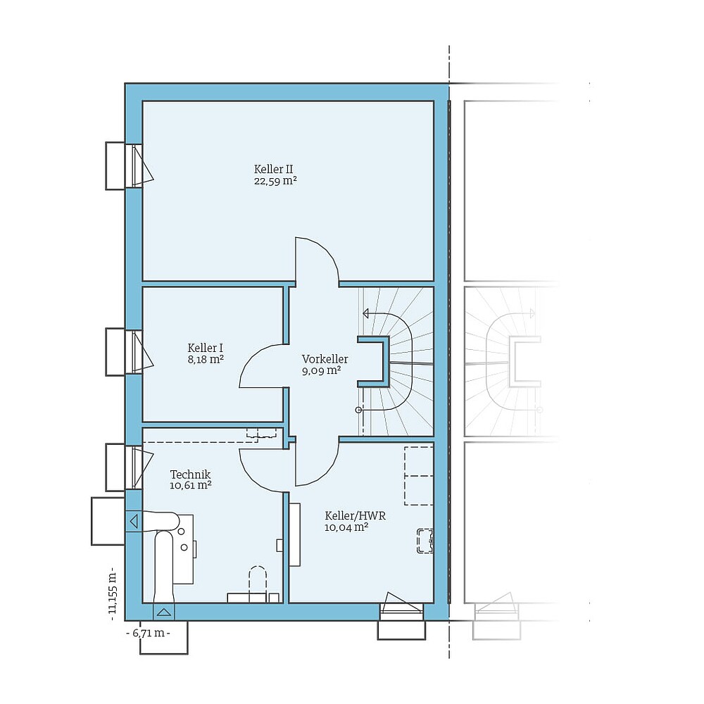
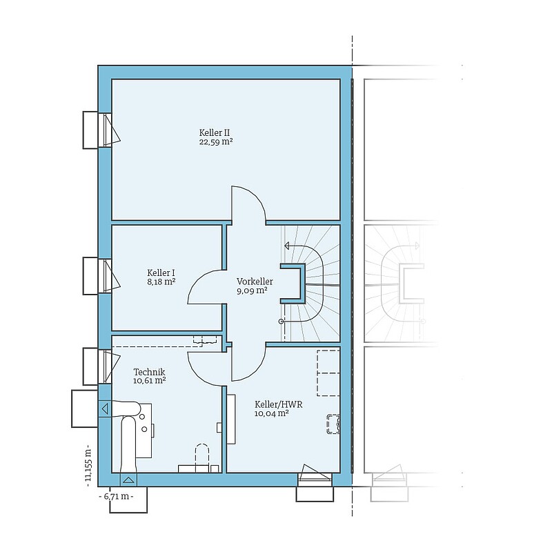
Optionales Kellergeschoss
- Mit zwei Kellerräumen, Vorkeller, Technikraum sowie einem Hauswirtschafts- oder Kellerraum
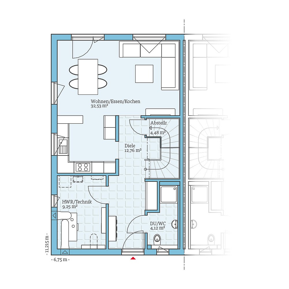
Beispiel-
Grundrisse
Bekommen Sie durch die Grundrisse einen Eindruck von unserem Fertighaus aus der QNG⁺-Line.
Voraussetzung für die serielle, günstigere Fertigung ist, dass an den vordefinierten Grundrissen nur bestimmte Änderungen vorgenommen werden können. Entdecken Sie die möglichen Planungsoptionen für diesen Hausentwurf:
Auch Sie interessieren sich für Immobilien als Kapitalanlage? Vereinbaren Sie noch heute einen Termin für eine individuelle Beratung und erhalten Sie vorab ganz unverbindlich & kostenfrei unsere Broschüre mit allen Hausentwürfen und Preisen.













