Raum zum Leben für alle, die mehr Platz schätzen
Das QNG⁺-Line Doppelhaus 174 bietet vier großzügige Wohneinheiten mit ca. 75 m² im Erdgeschoss und ca. 77 m² im Obergeschoss – ideal für die Vermietung an Paare und kleine Familien.
Jede Wohnung überzeugt mit offener Wohnstruktur, separatem Arbeitszimmer, Schlafzimmer, Bad mit Wanne und Dusche sowie Technik- und Abstellraum.
PV-Anlage, QNG-Zertifikat und zusätzliche Dämmung senken die Betriebskosten und erhöhen die Wirtschaftlichkeit – inklusive Balkon oder überdachtem Freisitz als gefragtes Extra.
Info:
Abbildungen und Grundrisse enthalten Sonderausstattungen und Anbauten, die nicht im Grundpreis enthalten sind.
| Merkmale | |
|---|---|
| Dachform | Satteldach |
| Dachneigung | 25 ° |
| Wohnfläche je Einheit | 160,67 m² |
| Grundfläche je Einheit | 187,56 m² |
| Anzahl Geschosse | 2 |
Ihr Plus an Komfort
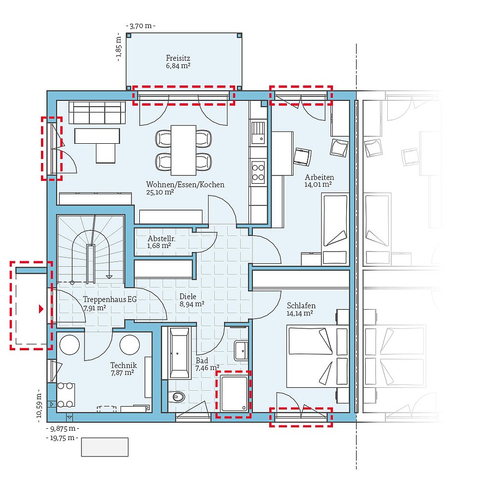
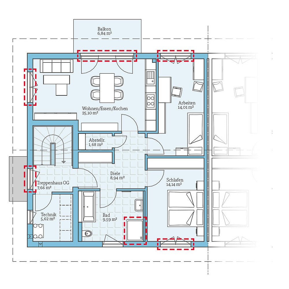
Serielle Fertigung mit Flexibilität – auch ohne individuelle Planung stehen Ihnen bei unseren Häusern aus der QNG+-Line einige Planungsoptionen offen:
Erdgeschoss
- Größere Dusche im Badezimmer
- Terrassentür statt Fenster im Wohn-, Ess- und Kochbereich sowie Arbeits- und Schlafzimmer
- Größere Terrassentür im Wohn-, Ess- und Kochbereich
- Haustürvordach
Obergeschoss
- Größere Dusche im Badezimmer
- Größere Terrassentür im Wohn-, Ess- und Kochbereich
- Bodentiefe Fenster statt Fenster im Wohn-, Ess- und Kochbereich sowie Arbeits- und Schlafzimmer
- Größerer Dachüberstand
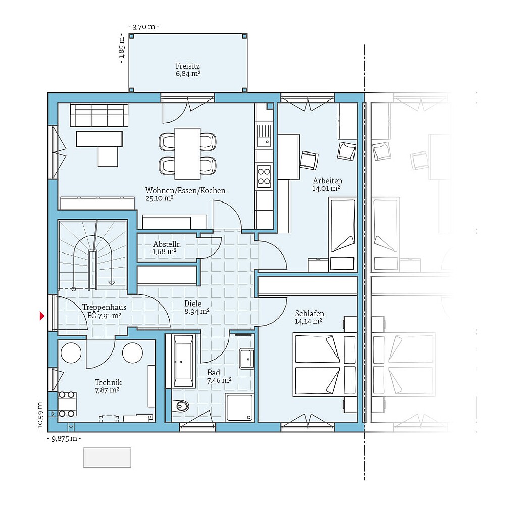
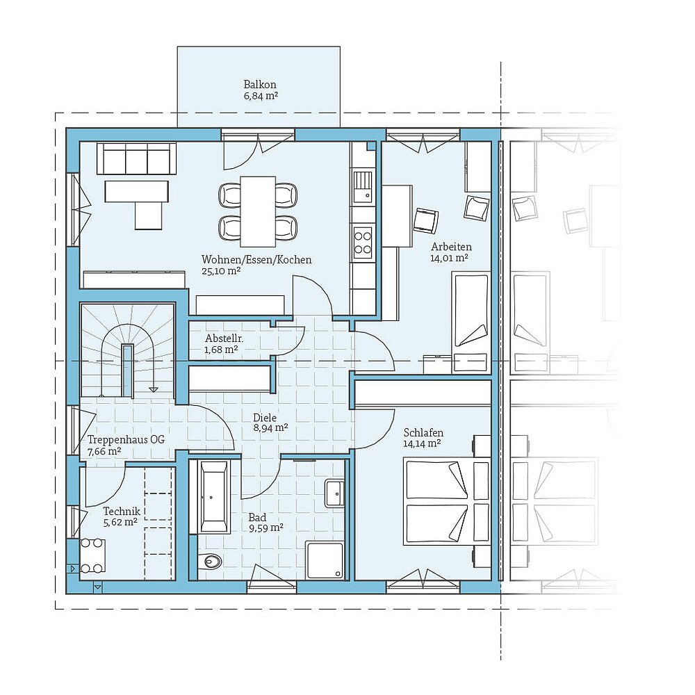
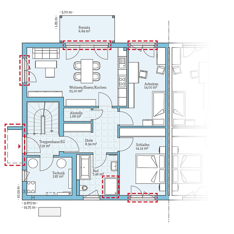
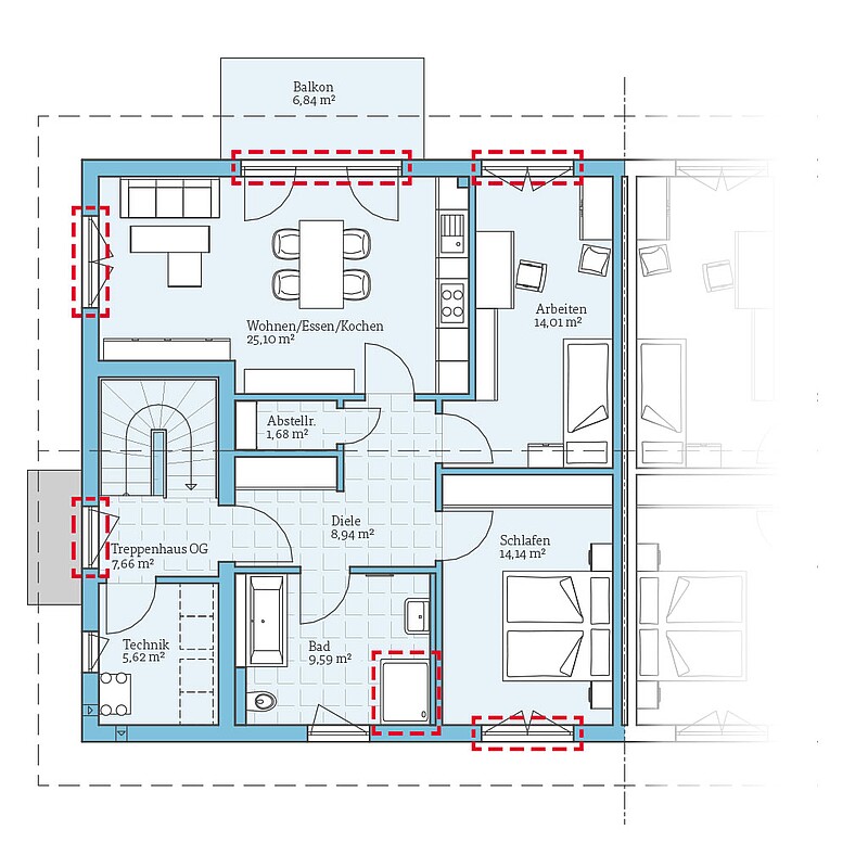
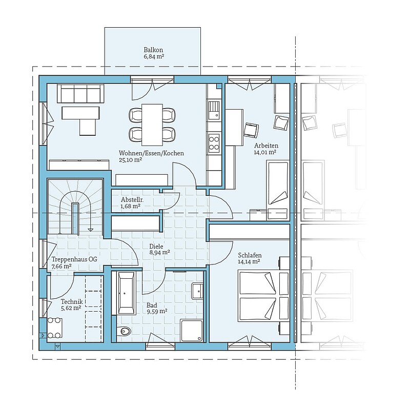
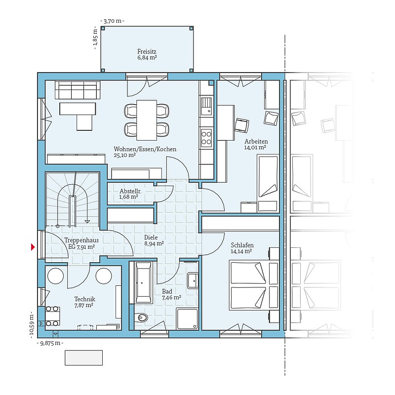
Beispiel-
Grundrisse
Bekommen Sie durch die Grundrisse einen Eindruck von unserem Fertighaus aus der QNG⁺-Line.
Voraussetzung für die serielle, günstigere Fertigung ist, dass an den vordefinierten Grundrissen nur bestimmte Änderungen vorgenommen werden können. Entdecken Sie die möglichen Planungsoptionen für diesen Hausentwurf:
Auch Sie interessieren sich für Immobilien als Kapitalanlage? Vereinbaren Sie noch heute einen Termin für eine individuelle Beratung und erhalten Sie vorab ganz unverbindlich & kostenfrei unsere Broschüre mit allen Hausentwürfen und Preisen.









