Vielfalt unter einem Dach für modernes Wohnen
Das DUO 269 bietet zwei großzügige Wohneinheiten – mit rund 115 m² in der linken und 110 m² in der rechten Haushälfte. Gut konzipierte Grundrisse und die Option auf einen ausgebauten Spitzboden machen das Haus besonders attraktiv und schaffen Flexibilität für die Vermietung an Familien.
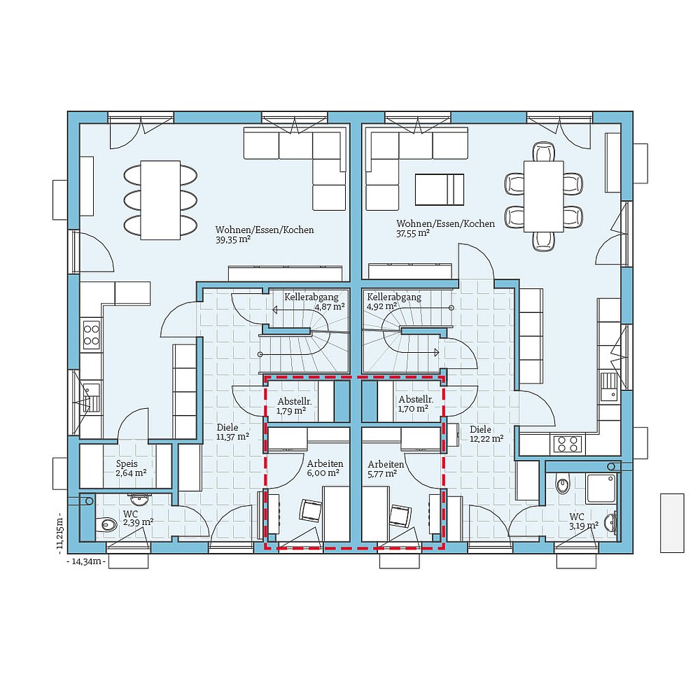
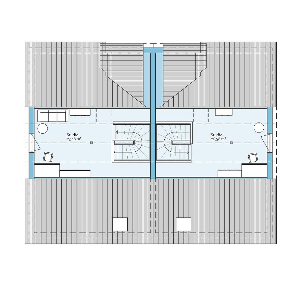
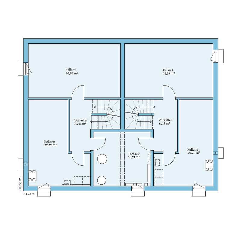
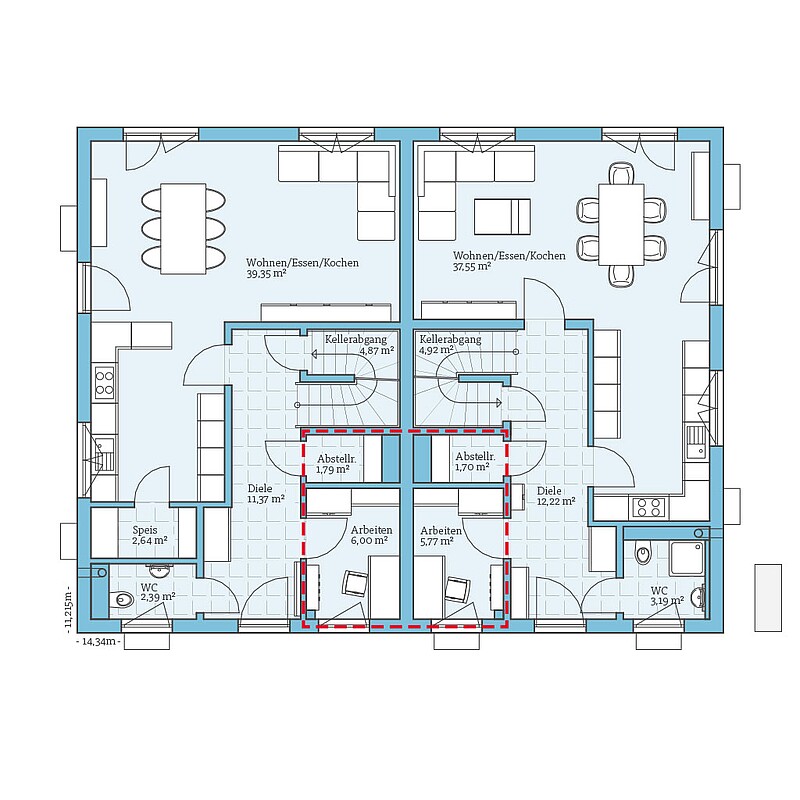
Ein offener Wohn-, Ess- und Kochbereich sowie ein Technikraum gehören in beiden Haushälften zur Grundausstattung. Links kommen Speisekammer und Gäste-WC hinzu, rechts ein Dusch-bad. Oben ergänzen zwei Kinderzimmer, ein Schlafzimmer, ein Bad mit Wanne und Dusche sowie eine Galerie das Raumangebot. Mit ausgebautem Spitzboden entsteht ein großes Studio, bei Kellerausführung ein Gäste- oder Arbeitszimmer und ein Abstellraum im Erdgeschoss.
Mit PV-Anlage, QNG-Zertifikat und zusätzlicher Dämmung erfüllt das Haus höchste Effizienzstandards – wirtschaftlich im Betrieb, stark im Bestand.
| Merkmale | |
|---|---|
| Dachform | Satteldach |
| Dachneigung | 35° |
| Kniestock | 120 cm |
| Wohnfläche Einheit Links | 114,80 m² |
| Wohnfläche Einheit Rechts | 109,88 m² |
| Grundfläche Einheit Links | 129,73 m² |
| Grundfläche Einheit Rechts | 124,43 m² |
| Gemeinsam genutzte Fläche | 15,38 m² |
| Anzahl Geschosse | 1,5 |
Ihr Plus an Komfort
Wir planen Ihr individuelles Fertighaus ganz nach Ihren Wünschen. Hier finden Sie einige Planungsoptionen für diesen Hausentwurf:
- Bei Ausführung mit Keller: Arbeits- oder Gästezimmer und Abstellraum statt Technikraum im Erdgeschoss
- Studio im ausgebauten Spitzboden
- Optionales Kellergeschoss mit zwei Kellerräumen und einem Technikraum
Beispiel-
Grundrisse
Bekommen Sie durch die Hanse Haus-Grundrisse einen Eindruck von diesem Haus. Wir zeigen Ihnen unsere Planungsoptionen, die natürlich auf Wunsch individuell umgeplant werden können.
Auch Sie interessieren sich für Immobilien als Kapitalanlage? Vereinbaren Sie noch heute einen Termin für eine individuelle Beratung und erhalten Sie vorab ganz unverbindlich & kostenfrei unsere Broschüre mit allen Hausentwürfen und Preisen.










