Zwei Einheiten durchdacht auf Erd- und Obergeschoss
Mit rund 200 m² Wohnfläche bietet das DUO 208 zwei komfortable Wohnungen – ca. 90 m² im Erdgeschoss und ca. 100 m² im Obergeschoss. Dank der durchdachten Grundrisse lässt sich das Haus flexibel vermieten – ideal für Singles, Paare oder kleine Familien.
Beide Einheiten verfügen über einen offenen Wohn-, Ess- und Kochbereich, ein Schlafzimmer, ein Arbeits- und/oder Gästezimmer, ein Bad mit Wanne und Dusche sowie mehrere Nebenräume. Bei Kellerausführung entstehen zusätzliche Gäste-WCs und separate Arbeitszimmer – ein Plus für Mieter mit hohem Komfortanspruch.
PV-Anlage, QNG-Zertifikat und zusätzliche Dämmung sorgen für niedrige Betriebskosten und hohe Energieeffizienz – die ideale Grundlage für eine nachhaltige Kapitalanlage.
| Merkmale | |
|---|---|
| Dachform | Zeltdach |
| Dachneigung | 25° |
| Wohnfläche Einheit Erdgeschoss | 89,75 m² |
| Wohnfläche Einheit Obergeschoss | 100,23 m² |
| Gemeinsam genutzte Fläche | 9,57 m² |
| Grundfläche Einheit Erdgeschoss | 93,75 m² |
| Grundfläche Einheit Obergeschoss | 104,23 m² |
| Gemeinsam genutzte Fläche | 25,61 m² |
| Anzahl Geschosse | 2 |
Ihr Plus an Komfort
Wir planen Ihr individuelles Fertighaus ganz nach Ihren Wünschen. Hier finden Sie einige Planungsoptionen für diesen Hausentwurf:
- Bei Ausführung mit Keller: Arbeitszimmer und Gäste-WC statt Technikraum im Erdgeschoss
- Bei Ausführung mit Keller: Arbeitszimmer und Gäste-WC statt Hauswirtschafts- und Abstellraum im Obergeschoss
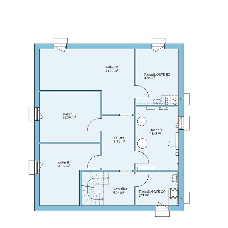
- Optionales Kellergeschoss mit vier Kellerräumen, einem Technikraum sowie je einen Technik- und Hauswirtschaftsraum für das Erdgeschoss und Obergeschoss
Beispiel-
Grundrisse
Bekommen Sie durch die Hanse Haus-Grundrisse einen Eindruck von diesem Haus. Wir zeigen Ihnen unsere Planungsoptionen, die natürlich auf Wunsch individuell umgeplant werden können.
Auch Sie interessieren sich für Immobilien als Kapitalanlage? Vereinbaren Sie noch heute einen Termin für eine individuelle Beratung und erhalten Sie vorab ganz unverbindlich & kostenfrei unsere Broschüre mit allen Hausentwürfen und Preisen.










